This calculator provides a guide to the amount of residential stamp duty you may pay and does not guarantee this will be the actual cost. This calculation is based on the Stamp Duty Land Tax Rates for residential properties purchased from 23rd September 2022 and second homes from 31st October 2024. For more information on Stamp Duty Land Tax, click here.
3 bedroom Detached House for sale, Parr Fold Avenue, Worsley, Greater Manchester, M28
Features and Description
- True Bungalow
- Three Double Bedrooms
- Detached
- Conservatory
- Stunning Rear Garden
- Popular Location
- Detached Garage
- Freehold
- EPC Rating D
- Council Tax Band D
***Immaculately Presented*** This beautifully presented, three double bedroom detached bungalow offers excellent size rooms throughout and a stunning, open plan kitchen and living room. With excellent access to local schools, Walkden train station and regular bus services, this property is ideal for families and people looking to downsize!
The property features a porch and entrance hall, the fantastic size living room, with ample space for a dining area, which opens into the fitted kitchen with integrated appliances and the conservatory at the rear. There are three excellent size double bedrooms, all benefitting from fitted wardrobes and a contemporary family bathroom fitted with a four piece suite.
Externally, there is a front garden with driveway for multiple vehicles leading to the garage. At the rear is a stunning, landscaped garden, with raised decked seating area off the conservatory, lawn and mature flower beds.
Ideally located for all amenities, walking distance to the excellent James Brindley Primary school and with easy access to secondary schools in the area. The shops, supermarkets and restaurants at Walkden Town Centre are a short distance away, as is Walkden train station and regular bus routes to the city centre and surrounding areas. There is excellent access to the guided bus route, the main commuter routes to the city centre and the motorway network.
Book your viewing today to avoid disappointment!
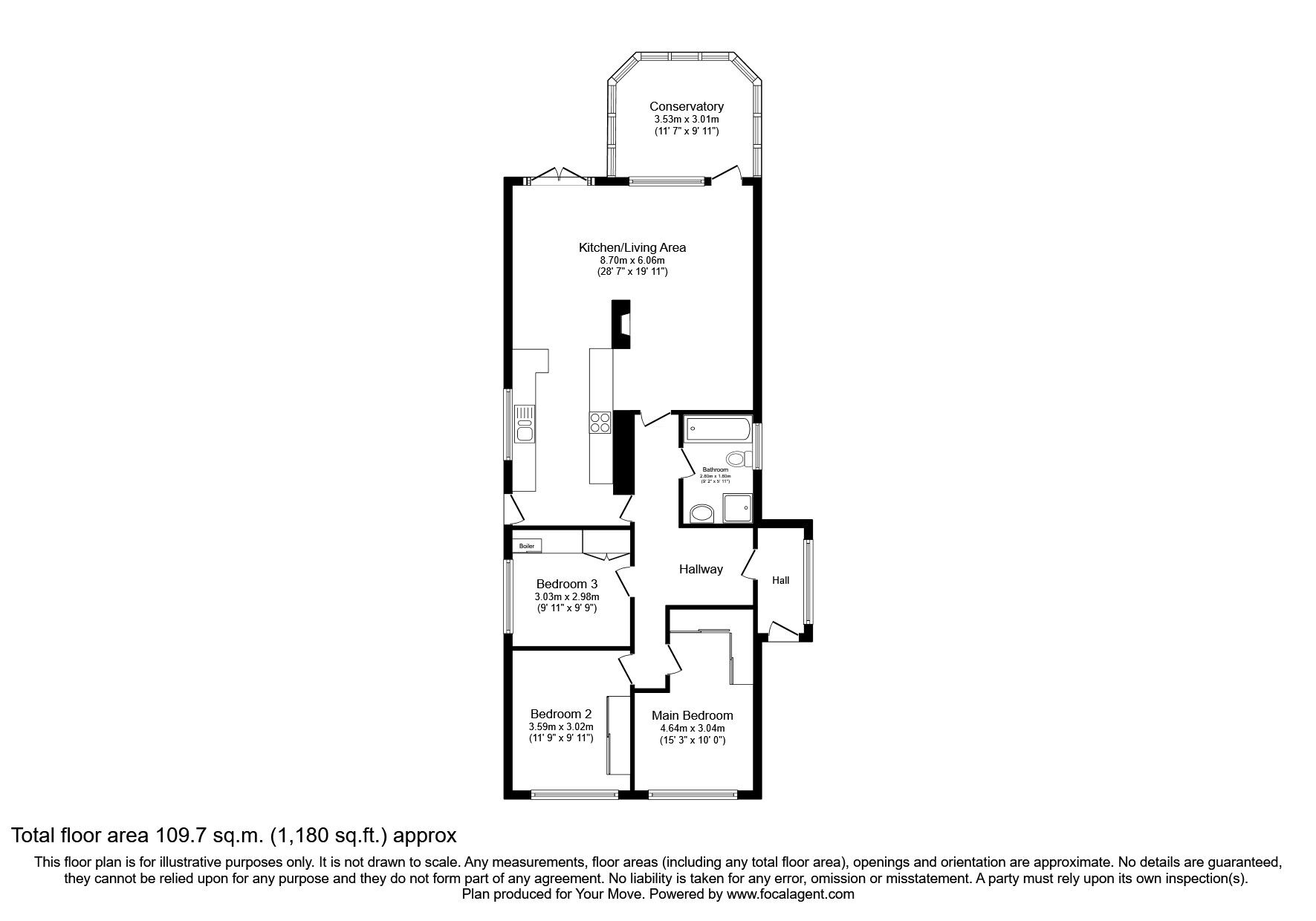
Open Plan Kitchen Living Area
28'7" x 19'11" (8.70m x 6.06m)
Conservatory
11'7" x 9'11" (3.53m x 3.01m)
Bedroom
15'3" x 9'12" (4.64m x 3.04m)
Bedroom
11'9" x 9'11" (3.59m x 3.02m)
Bedroom
9'11" x 9'6" (3.03m x 2.90m)
Bathroom
9'11" x 9'9" (3.03m x 2.98m)
Tenure
Leasehold999 Year lease commencing 29th March 1977Ground Rent £16.50 per annum
EPC
D
IMPORTANT NOTE TO POTENTIAL PURCHASERS:
We endeavour to make our particulars accurate and reliable, however, they do not constitute or form part of an offer or any contract and none is to be relied upon as statements of representation or fact. The services, systems and appliances listed in this specification have not been tested by us and no guarantee as to their operating ability or efficiency is given. All photographs and measurements have been taken as a guide only and are not precise. Floor plans where included are not to scale and accuracy is not guaranteed. If you require clarification or further information on any points, please contact us, especially if you are travelling some distance to view. Fixtures and fittings other than those mentioned are to be agreed with the seller.
Parr Fold Avenue, Worsley, Greater Manchester, M28
Additional Information
-
Property refWAK260042
-
EPCD
-
TenureLeasehold
-
Lease length950 years
-
Council TaxD
-
Ground RentContact the branch
-
Ground Rent ReviewContact the branch
-
Service ChargeContact the branch
The pin shows the exact address of the property
Energy Efficiency Rating
Very energy efficient - lower running costs
Not energy efficient - higher running costs
Current
66Potential
81CO2 Rating
Very energy efficient - lower running costs
Not energy efficient - higher running costs
