This calculator provides a guide to the amount of residential stamp duty you may pay and does not guarantee this will be the actual cost. This calculation is based on the Stamp Duty Land Tax Rates for residential properties purchased from 23rd September 2022 and second homes from 31st October 2024. For more information on Stamp Duty Land Tax, click here.
3 bedroom Detached House for sale, Cherry Tree Avenue, Belper, Derbyshire, DE56
Features and Description
- Three Bedrooms
- Detached
- Off Street Parking and Garage
- Scope for Improvement
- Close to Amenities
- Front and Rear Gardens
- Viewings Recommended
- NO UPWARD CHAIN
This well-presented three-bedroom detached home offers comfortable and practical family living in a convenient and sought-after setting. The property benefits from off-street parking, a detached garage, and gardens to both the front and rear, providing ample outdoor space and excellent versatility. Ideally positioned close to well-regarded schools, local transport links, and Belper town centre, this home combines a peaceful residential location with easy access to everyday amenities, making it an ideal choice for families and commuters alike.
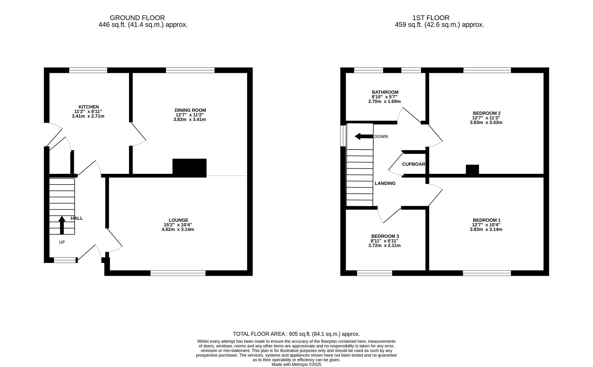
Hallway
Access is gained via a front facing door. Here there are stairs rising to the first floor accommodation, access to lounge and kitchen.
Kitchen
11'5" x 9'1" (3.48m x 2.78m)
A fitted kitchen featuring wood-effect units complemented by coordinating work surfaces. The room benefits from a rear-facing window providing natural light and includes integrated appliances, along with designated space and plumbing for a washing machine and tumble dryer. Additional features include access to a useful built-in store cupboard beneath the stairs, direct access to the dining room, and an external door leading to the driveway.
Dining Room
14'6" x 12'7" (4.41m x 3.83m)
A well proportioned and light-filled dining room featuring wood-effect flooring and a large window overlooking the garden. Neutral décor creates a warm, inviting atmosphere, with a radiator fitted. The room also benefits from direct access to the lounge, making it ideal for family dining and entertaining.
Lounge
10'4" x 15'2" (3.14m x 4.62m)
A generously sized and comfortable lounge featuring a large front-facing window allowing plenty of natural light. Finished in neutral décor with soft carpeting, the room offers a welcoming atmosphere and flexible layout. Additional features include an electric fire set on a marble hearth with a wooden surround, along with a central ceiling light and radiator.
Landing
Providing access to all three bedrooms and the loft space via a ceiling hatch. The area benefits from a side-facing window allowing natural light, along with a built-in cupboard housing the property’s combination boiler.
Bedroom 1
10'4" x 12'8" (3.14m x 3.85m)
A bright and well-proportioned bedroom featuring a large window that allows ample natural light and offers afar reaching views over Belper. Features include ceiling-mounted spot lighting and a fitted radiator beneath the window.
Bedroom 2
11'3" x 12'7" (3.43m x 3.83m)
A generously sized and light-filled bedroom featuring a large window that provides an attractive outlook over the rear garden. Features include a fitted radiator positioned beneath the window and a practical layout that offers flexibility for a range of uses.
Bedroom 3
6'11" x 8'11" (2.11m x 2.72m)
A bright and versatile room featuring a window to the front elevation. A practical environment suitable for use as a bedroom, home office, or study. Additional benefits include a fitted radiator beneath the window and a well-proportioned layout that can easily adapt to a variety of needs.
Bathroom
5'7" x 8'10" (1.69m x 2.70m)
A well-appointed and functional bathroom comprising a panelled bath, separate shower enclosure, wash hand basin, and WC. The room is fully tiled in light, neutral tones, creating a bright and clean finish, and benefits from frosted windows that allow natural light while maintaining privacy.
External
A generously sized rear garden arranged mainly to lawn, offering an excellent outdoor space for relaxation and recreation. Established hedging and boundary fencing offer a good degree of privacy, while a paved area to one side provides a practical spot for seating or storage. This attractive garden is well suited for families, keen gardeners, or those seeking a peaceful outdoor retreat.
IMPORTANT NOTE TO POTENTIAL PURCHASERS:
We endeavour to make our particulars accurate and reliable, however, they do not constitute or form part of an offer or any contract and none is to be relied upon as statements of representation or fact. The services, systems and appliances listed in this specification have not been tested by us and no guarantee as to their operating ability or efficiency is given. All photographs and measurements have been taken as a guide only and are not precise. Floor plans where included are not to scale and accuracy is not guaranteed. If you require clarification or further information on any points, please contact us, especially if you are travelling some distance to view. Fixtures and fittings other than those mentioned are to be agreed with the seller.
Cherry Tree Avenue, Belper, Derbyshire, DE56
Additional Information
-
Property refQBP250341
-
TenureFreehold
-
Council TaxC
-
Local authorityAmber Valley Borough Council
The pin shows the exact address of the property
Energy Efficiency Rating
Very energy efficient - lower running costs
Not energy efficient - higher running costs
Current
N/APotential
N/ACO2 Rating
Very energy efficient - lower running costs
Not energy efficient - higher running costs
