This calculator provides a guide to the amount of residential stamp duty you may pay and does not guarantee this will be the actual cost. This calculation is based on the Stamp Duty Land Tax Rates for residential properties purchased from 23rd September 2022 and second homes from 31st October 2024. For more information on Stamp Duty Land Tax, click here.
2 bedroom Detached House for sale, Churchill Drive, Moresby Parks, Cumbria, CA28
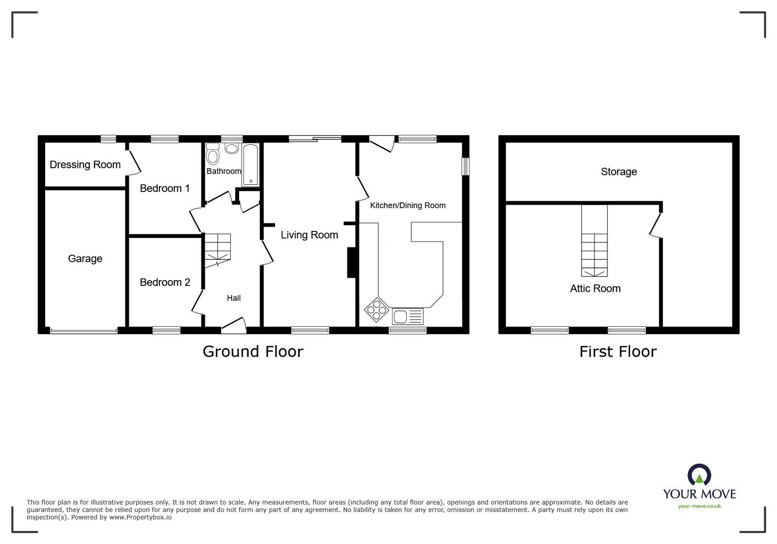
Features and Description
Positioned in a larger than usual plot, this two bedroom detached dormer bungalow, with attic room, is not to be missed! Offering spacious and versatile accommodation throughout, with a light and airy living room, large kitchen/dining room and two generous double bedrooms, viewing is highly recommended to truly appreciate the sizeable, yet well proportioned, accommodation this home offers.
The property briefly comprises: Entrance hall, Living room, Kitchen/dining room and modern family bathroom. There are two generous double bedroom, with the primary benefitting from it's own dressing room. To the first floor, is a versatile attic room, with convenient access to the partially boarded loft space, providing ideal storage. Outside to the rear, is the large enclosed garden to lawn. Bordered by a range of established plants and trees, a good-sized patio area provides an ideal space for outdoor entertaining. To the front of the property, is a low maintenance, gravelled garden, with a driveway leading to the integral, single garage.
Entrance Hall
Spacious and welcoming entrance to the home, with stairs leading to the first floor. A convenient integral cupboard provides storage space.
Living Room
26'11" x 15'0" (8.21m x 4.58m)
Large living room, with dual aspect windows filling the room with natural light. Divided into two zones and connected by a large archway, the main living area is cantered by a feature fireplace with gas fire. The second living area offers versatile living, and would make an ideal play area or dining area, with space to accommodate a six seater dining table. Sliding, glass patio doors lead out to the rear garden.
Kitchen / Dining room
23'9" x 13'0" (7.23m x 3.97m)
Generous kitchen/dining room, offering a range of fitted units, with stone effect countertop. The kitchen benefits from recessed lighting, integrated electric oven and countertop mounted gas hob. The dining area would comfortably accommodate a six seater dining table, but is currently styled as a light and airy snug/family room, with glass external door leading out to the rear garden.
Bedroom 1
12'11" x 12'7" (3.94m x 3.83m)
Large double bedroom, benefitting from a dressing room.
Dressing Room
9'5" x 6'11" (2.86m x 2.11m)
Providing ample room for fitted wardrobes.
Bedroom 2
14'1" x 12'10" (4.30m x 3.92m)
Good-sized double bedroom.
Bathroom
7'4" x 5'5" (2.23m x 1.64m)
Modern family bathroom, benefitting from a bath with shower over, w/c, wash hand basin and recessed lighting.
First Floor
With stairs leading to the attic room.
Attic Room
20'3" x 9'11" (6.16m x 3.02m)
Generous attic room, with dormer windows, creating a versatile space. A door provides access to the loft space.
Loft Space
Partially boarded, creating ideal storage space.
Garage
Single garage, with up and over door.
Outside
To the rear of the property is the large rear garden to lawn, bordered by a range of established plants and trees. A spacious patio are creates an ideal space for outdoor entertaining, with a gate located to the side of the property providing external rear access. To the front of the property, is a good-sized, low maintenance gravelled garden, with a range of established plants. A driveway, leading to the garage, provides off-street parking for two cars.
Agents Notes
The property benefits from gas heating and double glazing.Due to the circumstances of the sale, we have been unable to obtain detailed information about the property. Buyers are advised to make their own enquiries and satisfy themselves, as well as their mortgage lender, regarding all aspects of the property. Please speak to a member of the team for further clarification.
IMPORTANT NOTE TO POTENTIAL PURCHASERS:
We endeavour to make our particulars accurate and reliable, however, they do not constitute or form part of an offer or any contract and none is to be relied upon as statements of representation or fact. The services, systems and appliances listed in this specification have not been tested by us and no guarantee as to their operating ability or efficiency is given. All photographs and measurements have been taken as a guide only and are not precise. Floor plans where included are not to scale and accuracy is not guaranteed. If you require clarification or further information on any points, please contact us, especially if you are travelling some distance to view. Fixtures and fittings other than those mentioned are to be agreed with the seller.
Agents are required by law to conduct Anti-Money Laundering checks on all buyers. Your Move Carlisle, Whitehaven and Wigton charge £30 including VAT per buyer. The charge covers the cost of obtaining and retaining relevant data from a third party. This fee is payable in advance prior to issuing a memorandum of sale and before the property can be sale agreed.
Churchill Drive, Moresby Parks, Cumbria, CA28
Additional Information
-
Property refWHV260155
-
TenureFreehold
-
Council TaxC
-
Local authorityCumberland Council
Similar properties for sale by Your Move Whitehaven
Spacious and welcoming entrance to the home, with stairs leading to the first floor. A convenient integral cupboard provides storage space.
Large living room, with dual aspect windows filling the room with natural light. Divided into two zones and connected by a large archway, the main living area is cantered by a feature fireplace with gas fire. The second living area offers versatile living, and would make an ideal play area or dining area, with space to accommodate a six seater dining table. Sliding, glass patio doors lead out to the rear garden.
Large double bedroom, benefitting from a dressing room.
Providing ample room for fitted wardrobes.
Good-sized double bedroom.
Modern family bathroom, benefitting from a bath with shower over, w/c, wash hand basin and recessed lighting.
Generous attic room, with dormer windows, creating a versatile space. A door provides access to the loft space.
To the rear of the property is the large rear garden to lawn, bordered by a range of established plants and trees. A spacious patio are creates an ideal space for outdoor entertaining, with a gate located to the side of the property providing external rear access. To the front of the property, is a good-sized, low maintenance gravelled garden, with a range of established plants. A driveway, leading to the garage, provides off-street parking for two cars.
The pin shows the exact address of the property
Energy Efficiency Rating
Very energy efficient - lower running costs
Not energy efficient - higher running costs
Current
N/APotential
N/ACO2 Rating
Very energy efficient - lower running costs
Not energy efficient - higher running costs
