This calculator provides a guide to the amount of residential stamp duty you may pay and does not guarantee this will be the actual cost. This calculation is based on the Stamp Duty Land Tax Rates for residential properties purchased from 23rd September 2022 and second homes from 31st October 2024. For more information on Stamp Duty Land Tax, click here.
5 bedroom Detached House for sale, Claremont Road, Whitley Bay, Tyne and Wear, NE26
Features and Description
- Detached house with land & development opportunities
- Five bedrooms, Three detached garages and gardens
- Sought after location. In catchment for popular schools
- Total floor area space 196 sq. mts. approx.
- Freehold, EPC Rating D
- Council Tax Band F
A unique five bedroom detached property offered with no upper chain, occupying a generous plot with private surrounding gardens. The home benefits from detached garages, outbuildings and a substantial driveway providing extensive parking. Offering versatile accommodation ideal for multi generational living, the property requires some modernisation, reflected in the asking price, and presents an excellent opportunity to personalise and enhance.
Ideally located in a highly sought-after area, this home offers easy access to excellent schools, a variety of local amenities, and the stunning Links seafront. Just a short distance from Whitley Bay Golf Course and popular family attractions, it combines convenience with the charm of coastal living and has easy access to transport links and connecting main roads.
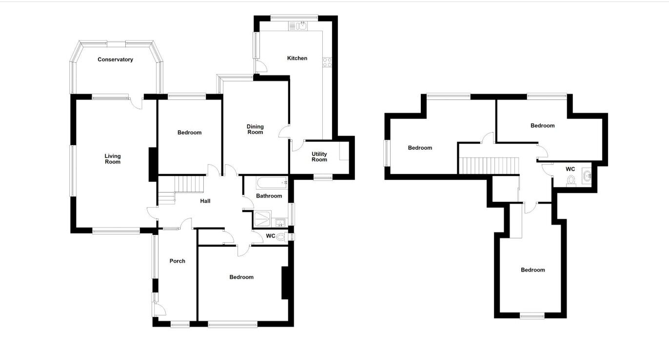
The property offers versatile accommodation over two floors and would benefit from cosmetic improvements, benefiting from double glazing, gas central heating and briefly comprising: Entrance porch, large hallway, spacious lounge leading to sun room, dining room leading into breakfasting kitchen with separate utility room, two double bedrooms and a family bathroom/WC. To the first floor there is a further three bedrooms and a cloaks WC. Externally there are surrounding gardens to the front and rear with a large built potting shed, leading to three detached garages, with a long extended driveway with turning point and access to the main street.
Viewing is essential to appreciate such a generous plot and family residence.
Please call our branch on 0191-2534117 to arrange an appointment.
Freehold
EPC Rating D
Council Tax Band F
Location
Ideally located in a highly sought-after area, this home offers easy access to excellent schools, a variety of local amenities, and the stunning Links seafront. Just a short distance from Whitley Bay Golf Course and popular family attractions, it combines convenience with the charm of coastal living and has easy access to transport links and connecting main roads.
Entrance porch
4.57mx 3.05m
Double glazed door and windows, tiled flooring and wood door leading into:
Entrance Hallway
14'10" x 8'11" (4.52m x 2.72m)
Stairs to first floor, cloaks cupboard, two radiators, and doors off to:
Lounge
21'12" x 13'10" (6.70m x 4.22m)
Double glazed windows to the front and side, feature fireplace with fitted gas fire, three radiators, glazed door leading into:
Conservatory
Tiled flooring, windows to rear and sides, and doors leading out to the rear.
Dining Room
15'5" x 11'1" (4.70m x 3.38m)
Double glazed window to the rear, radiator.
Dining kitchen
19'8" x 12'8" (6.00m x 3.86m)
L- Shaped. Fitted with a range of white wood wall and base units with contrasting work surfaces, one and a half bowl sink and drainer, dish washer, hob with extractor chimney above, built in electric oven, radiator, tiled flooring, two double glazed windows and double glazed door to the rear garden and door to utility room.
Utility Room
Wall mounted boiler, plumbing for washing machine and tiled walls.
Bathroom
Panelled bath, vanity wash hand basin, shower cubicle, tiled walls, tiled flooring, heated towel rail, double glazed frosted window.
Separate WC
Low level WC, tiled walls, tiled flooring, double glazed frosted window.
Bedroom 1
12'5" x 8'10" (3.78m x 2.70m)
Double glazed window to the rear, fitted wardrobes and radiator.
Bedroom 2
14'10" x 12'10" (4.52m x 3.90m)
Double glazed window to the front, feature fireplace with gas fire, and radiator.
First floor landing
Built in storage cupboard with sliding doors, and access to loft storage space, doors off to:
Bedroom 3
18'8" x 10'7" (5.70m x 3.23m)
Fitted wardrobes, double glazed window to the front and radiator.
Bedroom 4
17'11" x 13'4" (5.46m x 4.06m)
Double glazed window, fitted wardrobes, and radiator.
Bedroom 5
18'0" x 7'2" (5.49m x 2.18m)
Fitted wardrobes, radiator and double glazed window.
Cloaks WC
Vanity wash basin, tiled flooring, low level WC.
External
Front garden- walled and gate to front, shrubs and planting, gravelled area and pathways.Rear garden- Paved patio area, laid to lawn with shrubs, access to brick built potting shed and open to rear garage area and driveway.
Garages and drive
Garage 1- 17'11" x 23'10" up and over garage door. Garage 2- 16'11 x 8'4" up and over garage door. Garage / carport- 18'5" x 16'3"- power and lighting. Driveway- double gates to the front with tarmac area and return point to the end.
IMPORTANT NOTE TO POTENTIAL PURCHASERS:
We endeavour to make our particulars accurate and reliable, however, they do not constitute or form part of an offer or any contract and none is to be relied upon as statements of representation or fact. The services, systems and appliances listed in this specification have not been tested by us and no guarantee as to their operating ability or efficiency is given. All photographs and measurements have been taken as a guide only and are not precise. Floor plans where included are not to scale and accuracy is not guaranteed. If you require clarification or further information on any points, please contact us, especially if you are travelling some distance to view. Fixtures and fittings other than those mentioned are to be agreed with the seller.
Claremont Road, Whitley Bay, Tyne and Wear, NE26
Additional Information
-
Property refWBA250382
-
EPCD
-
TenureFreehold
-
Council TaxF
-
Local authorityNorth Tyneside Council
Similar properties for sale by Your Move Whitley Bay
The pin shows the exact address of the property
Energy Efficiency Rating
Very energy efficient - lower running costs
Not energy efficient - higher running costs
Current
66Potential
72CO2 Rating
Very energy efficient - lower running costs
Not energy efficient - higher running costs
