This calculator provides a guide to the amount of residential stamp duty you may pay and does not guarantee this will be the actual cost. This calculation is based on the Stamp Duty Land Tax Rates for residential properties purchased from 23rd September 2022 and second homes from 31st October 2024. For more information on Stamp Duty Land Tax, click here.
2 bedroom Detached House for sale, Forest Road, Hartwell, Northampton, NN7
Features and Description
- Brand New Barn Conversion
- High Quality Finish Throughout
- Popular Village Location
- Off Road Parking
- En-Suite to Principal Room
- Versatile Downstairs Space
- Separate Study Area
- Bi-Fold Doors Overlooking Garden
Presented to the market is this exceptional brand new barn conversion, currently under construction and set within the sought-after village of Hartwell. Being finished to a high specification throughout, this unique home offers a superb opportunity to secure a contemporary property with character features, designed for modern living.
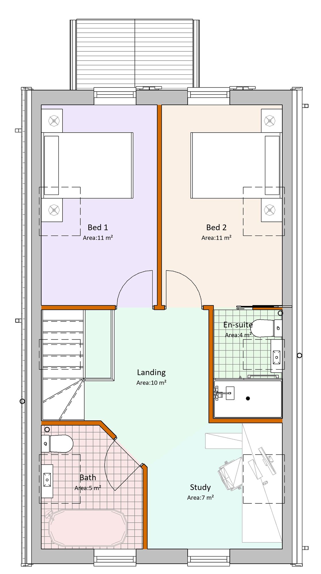
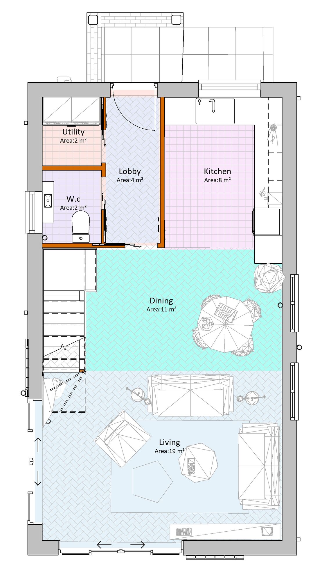
The accommodation will comprise a spacious open plan lounge/kitchen area to the ground floor, creating a versatile and sociable living space. This level will also benefit from a separate utility room and a convenient downstairs WC. To the first floor, there will be two well-proportioned double bedrooms, including a principal bedroom with en-suite, alongside a stylish family bathroom. A further area provides flexibility for use as a home office or study. Vaulted ceilings upstairs will enhance the sense of space and light, creating a bright and airy atmosphere throughout.
Externally, the property will offer off-road parking. Hartwell is a desirable village location, well regarded for its proximity to Salcey Forest and surrounding countryside, while still offering good access to nearby amenities and transport links. This is an exciting opportunity to acquire a bespoke home nearing completion.
Agent's Note: The imagery used has been enhanced with AI and the property is under construction. Further images of the build will be added in due course.
IMPORTANT NOTE TO POTENTIAL PURCHASERS:
We endeavour to make our particulars accurate and reliable, however, they do not constitute or form part of an offer or any contract and none is to be relied upon as statements of representation or fact. The services, systems and appliances listed in this specification have not been tested by us and no guarantee as to their operating ability or efficiency is given. All photographs and measurements have been taken as a guide only and are not precise. Floor plans where included are not to scale and accuracy is not guaranteed. If you require clarification or further information on any points, please contact us, especially if you are travelling some distance to view. Fixtures and fittings other than those mentioned are to be agreed with the seller.
Forest Road, Hartwell, Northampton, NN7
Additional Information
-
Property refQNT260169
-
TenureFreehold
-
Council TaxNA
Similar properties for sale by Your Move Northampton
The pin shows the exact address of the property
Energy Efficiency Rating
Very energy efficient - lower running costs
Not energy efficient - higher running costs
Current
N/APotential
N/ACO2 Rating
Very energy efficient - lower running costs
Not energy efficient - higher running costs
