This calculator provides a guide to the amount of residential stamp duty you may pay and does not guarantee this will be the actual cost. This calculation is based on the Stamp Duty Land Tax Rates for residential properties purchased from 23rd September 2022 and second homes from 31st October 2024. For more information on Stamp Duty Land Tax, click here.
3 bedroom Detached House for sale, Lower Farm Way, Nuneaton, Warwickshire, CV10
Features and Description
- End Plot Detached House
- Three Bedrooms
- Lounge and Kitchen Dining Room
- Main Bedroom and En Suite Shower Room
- Family Shower Room and Downstairs Wc
- Driveway and Detached Garage with Rear Garden
- Double Glazed and Gas Central Heating
- Freehold
- Must Be Viewed
- EPC Rating B
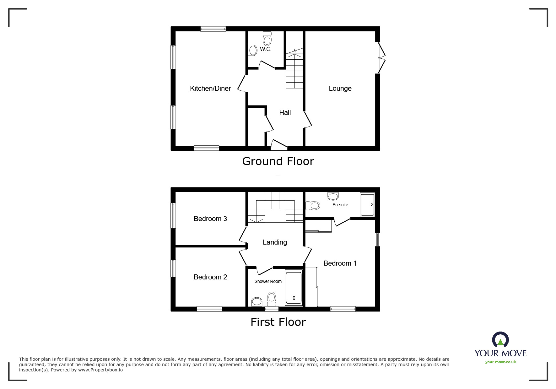
WHAT A PLOT IN WEDDINGTON !!! Your Move are delighted to offer For Sale this Superb Three Bedroom Detached House in which a viewing is strongly recommended to appreciate the size and accommodation on offer. In brief the property consists of to the Ground Floor an Entrance Hall , Lounge, Kitchen/Dining Room and Downstairs Wc whilst to the First Floor there are Three Well Proportioned Bedrooms and a Family Shower Room with the Main Bedroom having an En Suite Shower Room. To the outside there is a Driveway to the side leading to the Detached Garage and an Enclosed Rear Garden. The property also benefits from Double Glazing and Gas Central Heating. Freehold, EPC Rating B.
Entrance Hall 6'10" x 10'2" (2.08m x 3.1m)
With Wood Flooring.
Lounge 10' x 16'9" (3.05m x 5.1m)
With French Doors and Wood Flooring.
Kitchen Dining Room 9'11" x 16'9" (3.02m x 5.1m)
With Range of Wall and Base Units. Integrated Oven,Gas Hob and Extractor Over , Inset Sink and Washing Machine.
Downstairs Wc 3'4" x 6'2" (1.02m x 1.88m)
With Low Level Wc and Wash Hand Basin.
Stairs To
Main Bedroom 10'2" x 12'6" (3.1m x 3.8m)
With Fitted Wardrobes and Door to En Suite.
En Suite Shower 4' x 10'2" (1.22m x 3.1m)
With Double Shower Cubicle, Low Level Wc, Wash Hand Basin and Tiled Flooring.
Bedroom 10'2" x 9'6" (3.1m x 2.9m)
Bedroom 10'1" x 7'1" (3.07m x 2.16m)
Shower Room 5'7" x 6'9" (1.7m x 2.06m)
With Double Rainfall Shower Cubicle, Low Level Wc,Wash Hand Basin , Tiled Flooring and Spotlights to the Ceiling.
Detached Garage
With Up and Door , Power and Lighting.
Outside
Wirth Driveway leading to the Detached Garage and an Enclosed Rear Garden.
Nuneaton and Bedworth Borough Council
Council Tax Band C
Freehold
Lower Farm Way is located in Weddington on the new development and has all the amenities you require. There are many highly rated schools nearby to include Higham Lane . Within 2 miles of Nuneaton Town Centre. which boasts a Shopping Centre,Train Station and Bus Station,Supermarkets etc. Also within easy reach of the M6,M69,A5 which is ideal for commuting.
Location
Lower Farm Way is located in Weddington on the new development and has all the amenities you require. There are many highly rated schools nearby to include Higham Lane . Within 2 miles of Nuneaton Town Centre. which boasts a Shopping Centre,Train Station and Bus Station,Supermarkets etc. Also within easy reach of the M6,M69,A5 which is ideal for commuting.
Entrance Hall
6'10" x 10'2" (2.09m x 3.09m)
With Wood Flooring.
Lounge
10'0" x 16'9" (3.05m x 5.10m)
With French Doors and Wood Flooring.
Kitchen Dining Room
9'11" x 16'9" (3.01m x 5.10m)
With Range of Wall and Base Units. Integrated Oven,Gas Hob and Extractor Over , Inset Sink and Washing Machine.
Downstairs Wc
3'4" x 6'2" (1.02m x 1.89m)
With Low Level Wc and Wash Hand Basin.
Main Bedroom
10'2" x 12'6" (3.09m x 3.80m)
With Fitted Wardrobes and Door to En Suite.
En-Suite Shower
4'0" x 10'2" (1.23m x 3.10m)
With Double Shower Cubicle, Low Level Wc, Wash Hand Basin and Tiled Flooring.
Bedroom
10'2" x 9'6" (3.09m x 2.89m)
Bedroom
10'1" x 7'1" (3.08m x 2.16m)
Shower Room
5'7" x 6'9" (1.71m x 2.07m)
With Double Rainfall Shower Cubicle, Low Level Wc,Wash Hand Basin , Tiled Flooring and Spotlights to the Ceiling.
Detached Garage
With Up and Door , Power and Lighting.
Outside
Wirth Driveway leading to the Detached Garage and an Enclosed Rear Garden.
IMPORTANT NOTE TO POTENTIAL PURCHASERS:
We endeavour to make our particulars accurate and reliable, however, they do not constitute or form part of an offer or any contract and none is to be relied upon as statements of representation or fact. The services, systems and appliances listed in this specification have not been tested by us and no guarantee as to their operating ability or efficiency is given. All photographs and measurements have been taken as a guide only and are not precise. Floor plans where included are not to scale and accuracy is not guaranteed. If you require clarification or further information on any points, please contact us, especially if you are travelling some distance to view. Fixtures and fittings other than those mentioned are to be agreed with the seller.
Lower Farm Way, Nuneaton, Warwickshire, CV10
Additional Information
-
Property refNUN260069
-
EPCB
-
TenureFreehold
-
Council TaxC
-
Local authorityNuneaton & Bedworth Borough Council
With Wood Flooring.
With French Doors and Wood Flooring.
With Range of Wall and Base Units. Integrated Oven,Gas Hob and Extractor Over , Inset Sink and Washing Machine.
With Fitted Wardrobes and Door to En Suite.
With Double Shower Cubicle, Low Level Wc, Wash Hand Basin and Tiled Flooring.
With Double Rainfall Shower Cubicle, Low Level Wc,Wash Hand Basin , Tiled Flooring and Spotlights to the Ceiling.
The pin shows the exact address of the property
Energy Efficiency Rating
Very energy efficient - lower running costs
Not energy efficient - higher running costs
Current
84Potential
93CO2 Rating
Very energy efficient - lower running costs
Not energy efficient - higher running costs
