This calculator provides a guide to the amount of residential stamp duty you may pay and does not guarantee this will be the actual cost. This calculation is based on the Stamp Duty Land Tax Rates for residential properties purchased from 23rd September 2022 and second homes from 31st October 2024. For more information on Stamp Duty Land Tax, click here.
4 bedroom Detached House for sale, Rosevilla Farm, Main Road, Northampton, NN5
Features and Description
- Individual Detached Property
- Four Bedrooms
- Duston Village
- Snooker/Family Room
- Lounge And Separate Dining Room
- Viewing Recommended
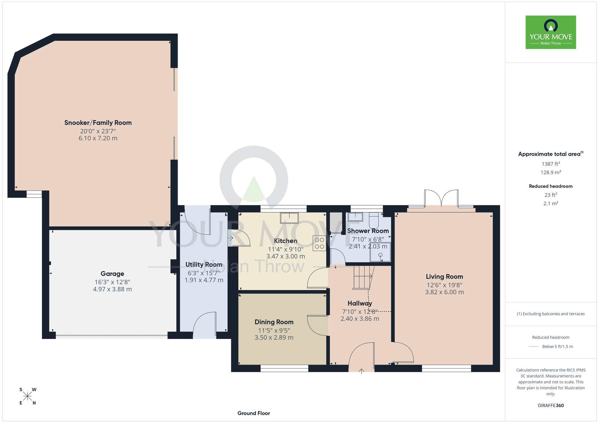
An individual four-bedroom detached property uniquely situated in a quiet location in Duston village. The property is approached via a lane and is set back from the road behind a stone wall and enjoys a good degree of privacy. The property has features to include gas radiator heating, double glazing where specified, and two separate reception rooms in addition to a fantastic snooker/family room.
The property is entered into the spacious entrance hall with doors to the lounge, which has double-glazed windows to both front and rear aspects. The dining room has a double-glazed window to the front aspect. The kitchen has a range of base and wall-mounted units and leads through to the utility room. There is a ground floor shower room with a WC, and to the first floor, the landing leads to all four bedrooms, three of which are good size double rooms, and the family bathroom. The snooker/family room provides a fantastic, versatile space for entertaining.
Outside to the front of the property, the driveway provides off-road parking and leads to the garage. There is a good size lawned area with various mature trees and shrubs with gated pedestrian side access to the rear garden, which is mainly block paved and also has a covered seating area.
Viewing is recommended to fully appreciate this individual property.
IMPORTANT NOTE TO POTENTIAL PURCHASERS:
We endeavour to make our particulars accurate and reliable, however, they do not constitute or form part of an offer or any contract and none is to be relied upon as statements of representation or fact. The services, systems and appliances listed in this specification have not been tested by us and no guarantee as to their operating ability or efficiency is given. All photographs and measurements have been taken as a guide only and are not precise. Floor plans where included are not to scale and accuracy is not guaranteed. If you require clarification or further information on any points, please contact us, especially if you are travelling some distance to view. Fixtures and fittings other than those mentioned are to be agreed with the seller.
Rosevilla Farm, Main Road, Northampton, NN5
Additional Information
-
Property refQDU260028
-
EPCC
-
TenureFreehold
-
Council TaxE
-
Local authorityWest Northamptonshire Council
The pin shows the exact address of the property
Energy Efficiency Rating
Very energy efficient - lower running costs
Not energy efficient - higher running costs
Current
73Potential
79CO2 Rating
Very energy efficient - lower running costs
Not energy efficient - higher running costs
