This calculator provides a guide to the amount of residential stamp duty you may pay and does not guarantee this will be the actual cost. This calculation is based on the Stamp Duty Land Tax Rates for residential properties purchased from 23rd September 2022 and second homes from 31st October 2024. For more information on Stamp Duty Land Tax, click here.






















3 bedroom Detached Property for sale, Bay Willow Road, Burton Waters, Lincolnshire, LN1
Features and Description
- IMPECCABLE 3 BEDROOM DETACHED Over 55's Lodge
- FLAWLESS OPEN PLAN LIVING
- High Specification Throughout
- Composite Raised Decking with Fantastic Plot
- Ample Parking and Stunning Lake Views
- Quaint and Idyllic Location
- A MUST VIEW HOME!!!
Welcome to 19 Bay Willow Road, Burton Waters, LN1
Asking Price: £325,000
Flawless 3 Bedroom Detached Park Home | Gated Marina Development | Beautifully Presented | Tranquil Waterside Setting | Fantastic Plot
Discover the perfect blend of lifestyle and location at this beautifully presented three-bedroom, two bathroom detached, high specification park home, located in the highly desirable and secure Burton Waters development. Set within an exclusive gated marina community, this stylish and low-maintenance property offers peace, privacy, and immediate access to lakeside walks, local amenities, and excellent travel connections.
Key Features;
* Detached two-bedroom park home
* Spacious dual-aspect lounge/diner with feature fireplace
* Modern fitted kitchen with integrated appliances
* Three bedrooms with fitted wardrobes
* Stylish 4 Piece Bathroom and Ensuite to Master
* Wraparound low-maintenance gardens
* Private driveway parking
* Fully residential with gated security
The Location – Burton Waters!!
Burton Waters is one of Lincolnshire’s premier residential marina developments — offering a unique waterside lifestyle just 3 miles west of Lincoln city centre. This private gated community features:
* 24-hour security and CCTV
* A variety of restaurants, cafes, a wine bar and shops
* On-site David Lloyd Health Club (membership available)
* Scenic walks along the Fossdyke Canal
* Marina access with boating facilities and moorings
A MUST VIEW - BOOK TO VIEW NOW - EPC EXEMPT
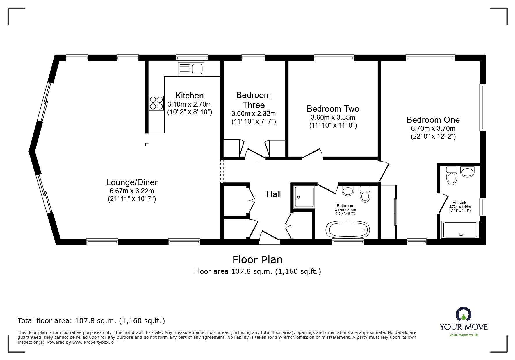
Entrance Hall
Spacious and inviting entrance hall comprising hard wood flooring, composite entrance door to the side aspect, wall lights, radiator, loft access, ceiling spotlights, storage cupboard, low level storage cupboard and a built in utility cupboard with space and plumbing for a washing machine.
Open Plan Living
21'11" x 10'7" (6.67m x 3.22m)
This stunning and tastefully finished open plan kitchen-lounge-diner truly offers it all and is complimented by the expanse of space on offer and the idyllic lake and private views to the rear aspect through the two sets of uPVC double glazed sliding doors and high level windows with perfect fit blinds. This stunning space further offers a television aerial point, wall mounted air conditioning unit, two radiators, feature fire surround and four double glazed windows to the side aspects with fitted blinds.
Kitchen
10'2" x 8'10" (3.10m x 2.70m)
Modern, impeccable and high spec fitted kitchen comprising a range of soft close wall and base units with contrasting work surfaces, a sink and drainer unit, integral fridge-freezer, integrated oven with a four ring induction hob and overhead extractor hood, integral dishwasher, tile splashbacks and a double glazed window to the side aspect with fitted blinds.
Bedroom 1
21'12" x 12'2" (6.70m x 3.70m)
Flawless master bedroom suite comprising carpet flooring, radiator, double glazed windows to the side and rear aspects with fitted blinds, television aerial point. This master bedroom further offers a dressing area with fitted wardrobes and access to the ensuite.
En-Suite
8'11" x 4'11" (2.72m x 1.50m)
Modern ensuite comprising a mains shower unit, low level WC, radiator rail, tiled flooring, vanity unit wash hand basin, extractor fan and a double glazed window to the rear aspect.
Bedroom 2
11'10" x 10'12" (3.60m x 3.35m)
Double bedroom hosting carpet flooring, radiator, fitted wardrobe and a double glazed window to the side aspect with fitted blinds.
Bedroom 3
11'10" x 7'7" (3.60m x 2.32m)
Generously sized third bedroom comprising carpet flooring, two fitted wardrobes, radiator and a double glazed window to the side aspect with fitted blinds.
Bathroom
10'4" x 9'2" (3.15m x 2.80m)
Simply sensational bathroom suite which has been upgraded beautifully and comprises a free standing bath with mixer taps and attached shower hose, low level WC, floating vanity unit wash hand basin, walk in shower unit with a mains shower, radiator rail, extractor fan, tiled flooring and a double glazed window to the side aspect with fitted blinds.
Gardens
The front aspect of the property offers multiple space off street parking with the block paved driveway which is complimented by a variety of mature and vibrant plants and shrubs. This brilliant and beautifully maintained full wrap around plot stretches down the left hand side of the property and is laid to lawn and approached the beautifully private lawn rear garden which overlooks the fishing lake. With a raised composite decking directly off the properties rear doors this is a perfect spot to enjoy the peace and tranquillity this site offers. To the other side aspect of the property there is a secure free standing shed providing more than ample additional storage.
Tenure
LeaseholdWest Lindsey District CouncilTax Band A
Charges
Annual Pitch Fee of Circa £2,308.44 per annum. For any more information please contact your local Your Move branch.
IMPORTANT NOTE TO POTENTIAL PURCHASERS:
We endeavour to make our particulars accurate and reliable, however, they do not constitute or form part of an offer or any contract and none is to be relied upon as statements of representation or fact. The services, systems and appliances listed in this specification have not been tested by us and no guarantee as to their operating ability or efficiency is given. All photographs and measurements have been taken as a guide only and are not precise. Floor plans where included are not to scale and accuracy is not guaranteed. If you require clarification or further information on any points, please contact us, especially if you are travelling some distance to view. Fixtures and fittings other than those mentioned are to be agreed with the seller.
Bay Willow Road, Burton Waters, Lincolnshire, LN1

Additional Information
-
Property refLIN250597
-
TenureFreehold
-
Council TaxA
-
Local authorityWest Lindsey District Council


Spacious and inviting entrance hall comprising hard wood flooring, composite entrance door to the side aspect, wall lights, radiator, loft access, ceiling spotlights, storage cupboard, low level storage cupboard and a built in utility cupboard with space and plumbing for a washing machine.


This stunning and tastefully finished open plan kitchen-lounge-diner truly offers it all and is complimented by the expanse of space on offer and the idyllic lake and private views to the rear aspect through the two sets of uPVC double glazed sliding doors and high level windows with perfect fit blinds. This stunning space further offers a television aerial point, wall mounted air conditioning unit, two radiators, feature fire surround and four double glazed windows to the side aspects with fitted blinds.




Modern, impeccable and high spec fitted kitchen comprising a range of soft close wall and base units with contrasting work surfaces, a sink and drainer unit, integral fridge-freezer, integrated oven with a four ring induction hob and overhead extractor hood, integral dishwasher, tile splashbacks and a double glazed window to the side aspect with fitted blinds.

Flawless master bedroom suite comprising carpet flooring, radiator, double glazed windows to the side and rear aspects with fitted blinds, television aerial point. This master bedroom further offers a dressing area with fitted wardrobes and access to the ensuite.


Modern ensuite comprising a mains shower unit, low level WC, radiator rail, tiled flooring, vanity unit wash hand basin, extractor fan and a double glazed window to the rear aspect.

Double bedroom hosting carpet flooring, radiator, fitted wardrobe and a double glazed window to the side aspect with fitted blinds.

Generously sized third bedroom comprising carpet flooring, two fitted wardrobes, radiator and a double glazed window to the side aspect with fitted blinds.


Simply sensational bathroom suite which has been upgraded beautifully and comprises a free standing bath with mixer taps and attached shower hose, low level WC, floating vanity unit wash hand basin, walk in shower unit with a mains shower, radiator rail, extractor fan, tiled flooring and a double glazed window to the side aspect with fitted blinds.

The front aspect of the property offers multiple space off street parking with the block paved driveway which is complimented by a variety of mature and vibrant plants and shrubs. This brilliant and beautifully maintained full wrap around plot stretches down the left hand side of the property and is laid to lawn and approached the beautifully private lawn rear garden which overlooks the fishing lake. With a raised composite decking directly off the properties rear doors this is a perfect spot to enjoy the peace and tranquillity this site offers. To the other side aspect of the property there is a secure free standing shed providing more than ample additional storage.







The pin shows the exact address of the property
Energy Efficiency Rating
Very energy efficient - lower running costs
Not energy efficient - higher running costs
Current
N/APotential
N/ACO2 Rating
Very energy efficient - lower running costs
Not energy efficient - higher running costs