This calculator provides a guide to the amount of residential stamp duty you may pay and does not guarantee this will be the actual cost. This calculation is based on the Stamp Duty Land Tax Rates for residential properties purchased from 23rd September 2022 and second homes from 31st October 2024. For more information on Stamp Duty Land Tax, click here.
1 bedroom Flat for sale, Abbey Road, London, SE2
Features and Description
- Elizabeth Line location Abbey Wood
- One bedroom maisonette
- Kitchen/diner
- Large Lounge
- EPC Grade D
- Refurbishment required
- Period conversion flat
- No chain involved
We are acting in the sale of the above property and have received an offer of £ 150,000.
Any interested parties must submit their offer in writing to the selling agent within 14 days of the date of this notice. If no further acceptable offers are received during this period, the property will be marked as Sold Subject to Contract (SSTC) and no further offers will be accepted while under this status.
Date of Notice:10th April 2026
A one bedroom first floor split level maisonette
Cash buyers only. Situated next to the Elizabeth line in Abbey Wood. Refurbishment required.
The property has its own entrance with stairs to the first floor and offering large kitchen/diner, large lounge, bathroom/w.c. A very spacious
victorian conversion flat. Close to shops,
supermarket and Abbey Woods and Lessness Abbey. No chain involved. Please note this property is not mortgageable due to the low lease.
EPC Grade D
London Borough of Bexley
Council tax grade C
Lease 59 years unexpired
ground rent £15.00 per annum
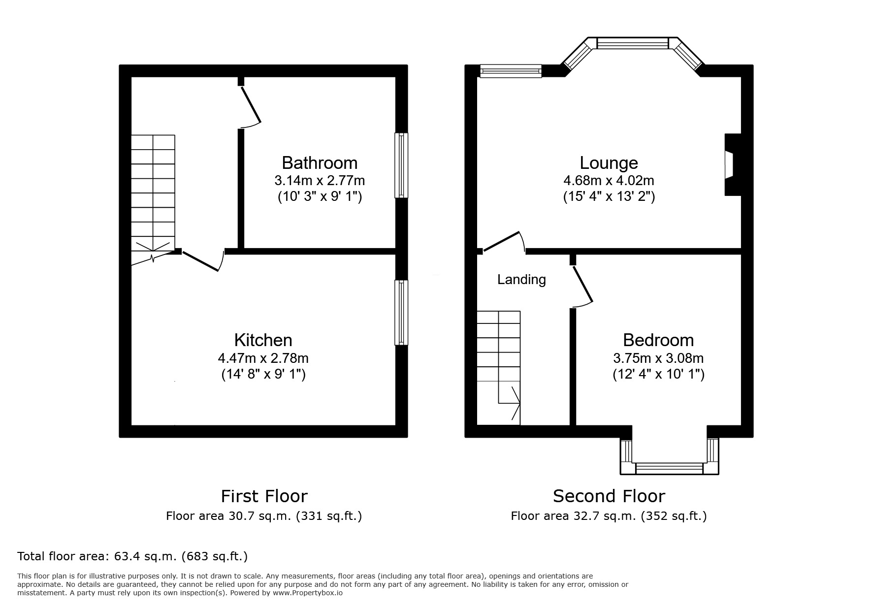
Kitchen / diner
4.47 x 2.78
Bathroom / WC
1.95 x 1.74
Lounge
4.68 x 4.02
Bedroom
3.75 x 3.08
IMPORTANT NOTE TO POTENTIAL PURCHASERS:
We endeavour to make our particulars accurate and reliable, however, they do not constitute or form part of an offer or any contract and none is to be relied upon as statements of representation or fact. The services, systems and appliances listed in this specification have not been tested by us and no guarantee as to their operating ability or efficiency is given. All photographs and measurements have been taken as a guide only and are not precise. Floor plans where included are not to scale and accuracy is not guaranteed. If you require clarification or further information on any points, please contact us, especially if you are travelling some distance to view. Fixtures and fittings other than those mentioned are to be agreed with the seller.
Abbey Road, London, SE2
Additional Information
-
Property refABB250406
-
EPCD
-
TenureLeasehold
-
Lease length59 years
-
Council TaxB
-
Local authorityBexley Borough Council
-
Ground Rent£15
-
Ground Rent ReviewContact the branch
-
Service ChargeContact the branch
Similar properties for sale by Your Move Abbey Wood
The pin shows the exact address of the property
Energy Efficiency Rating
Very energy efficient - lower running costs
Not energy efficient - higher running costs
Current
64Potential
73CO2 Rating
Very energy efficient - lower running costs
Not energy efficient - higher running costs
