This calculator provides a guide to the amount of residential stamp duty you may pay and does not guarantee this will be the actual cost. This calculation is based on the Stamp Duty Land Tax Rates for residential properties purchased from 23rd September 2022 and second homes from 31st October 2024. For more information on Stamp Duty Land Tax, click here.
3 bedroom End Terrace House for sale, Ashbury Gardens, Chadwell Heath, RM6
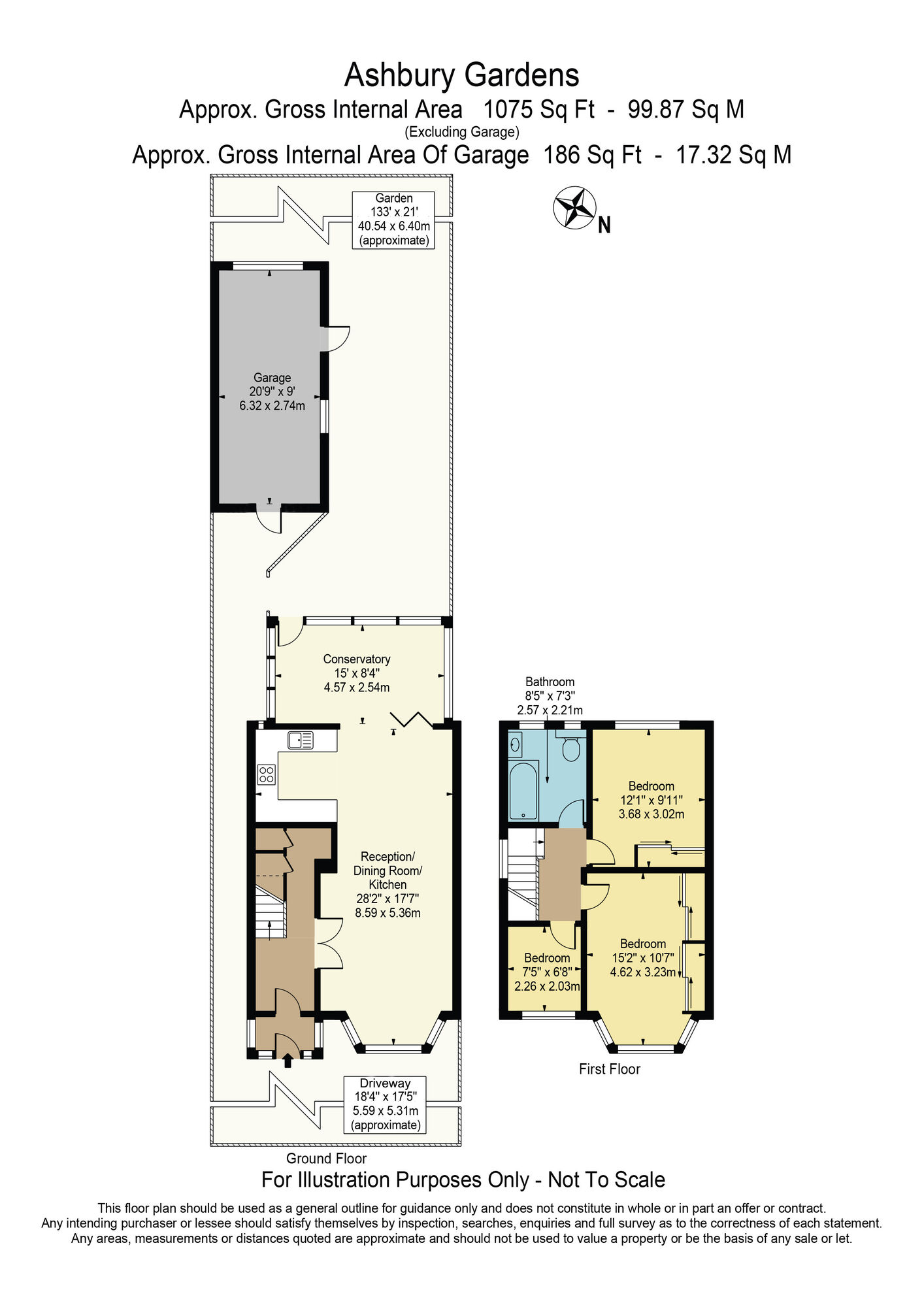
Features and Description
- End-Of-Terrace House
- Three Bedrooms
- Off-Street Parking
- Approximately 133ft Rear Garden
- 20ft Garage
- Within the London Borough of Redbridge
- Within Approximately 0.2 Miles of Park
- Within Approximately 0.6 Miles of High Road Shops
- Within Approximately 0.7 Miles of Golf Course
- Within Approximately 0.8 Miles of Train Station
- Within Approximately 0.8 Miles of College
- Within Approximately 1.1 Miles of Hospital
- Entrance Porch
- 28ft Open Plan Reception/Dining Room/Kitchen
- 15ft Conservatory
- 8ft Bathroom/WC
- Council Tax Band- D
- EPC Rating- D
Your Move Glenwood estate agents are pleased to offer for sale this three-bedroom end-of-terrace house in the Redbridge side of Chadwell Heath.
The property comprises: entrance porch, 28ft open plan reception/dining room/kitchen, 15ft conservatory, 15ft bedroom, 12ft bedroom, 7ft bedroom, and 8ft bathroom/WC.
The property also benefits from driveway (providing off-street parking), approximately 133ft rear garden, and 20ft garage.
The property is located within the London Borough of Redbridge, which is renowned for its award-winning parks, excellent transport links, thriving shopping areas, and high-performing schools.
Ashbury Gardens is within approximately 0.2 miles of St Chad's Park and within approximately 0.6 miles of the High Road shops. The nearest train station is Chadwell Heath station (Elizabeth Line - Zone 5), which is approximately 0.8 miles away. Other facilities include King George Hospital and New City College, which are within approximately 1.1 miles and 0.8 miles, respectively.
Golf Kingdom (an 18-hole Masters Golf Course and driving range) and Moby Golf (an 18-hole 'crazy golf' course) are within approximately 0.7 miles of the property.
The Council Tax Band is D. The EPC rating is D.
IMPORTANT NOTE TO POTENTIAL PURCHASERS:
We endeavour to make our particulars accurate and reliable, however, they do not constitute or form part of an offer or any contract and none is to be relied upon as statements of representation or fact. The services, systems and appliances listed in this specification have not been tested by us and no guarantee as to their operating ability or efficiency is given. All photographs and measurements have been taken as a guide only and are not precise. Floor plans where included are not to scale and accuracy is not guaranteed. If you require clarification or further information on any points, please contact us, especially if you are travelling some distance to view. Fixtures and fittings other than those mentioned are to be agreed with the seller.
Ashbury Gardens, Chadwell Heath, RM6
Additional Information
-
Property refQCH250174
-
EPCD
-
TenureFreehold
-
Council TaxD
-
Local authorityLondon Borough Of Redbridge
Similar properties for sale by Your Move Chadwell Heath
The pin shows the exact address of the property
Energy Efficiency Rating
Very energy efficient - lower running costs
Not energy efficient - higher running costs
Current
62Potential
86CO2 Rating
Very energy efficient - lower running costs
Not energy efficient - higher running costs
