This calculator provides a guide to the amount of residential stamp duty you may pay and does not guarantee this will be the actual cost. This calculation is based on the Stamp Duty Land Tax Rates for residential properties purchased from 23rd September 2022 and second homes from 31st October 2024. For more information on Stamp Duty Land Tax, click here.
3 bedroom End Terrace House for sale, Balfour Street, Kettering, Northamptonshire, NN16
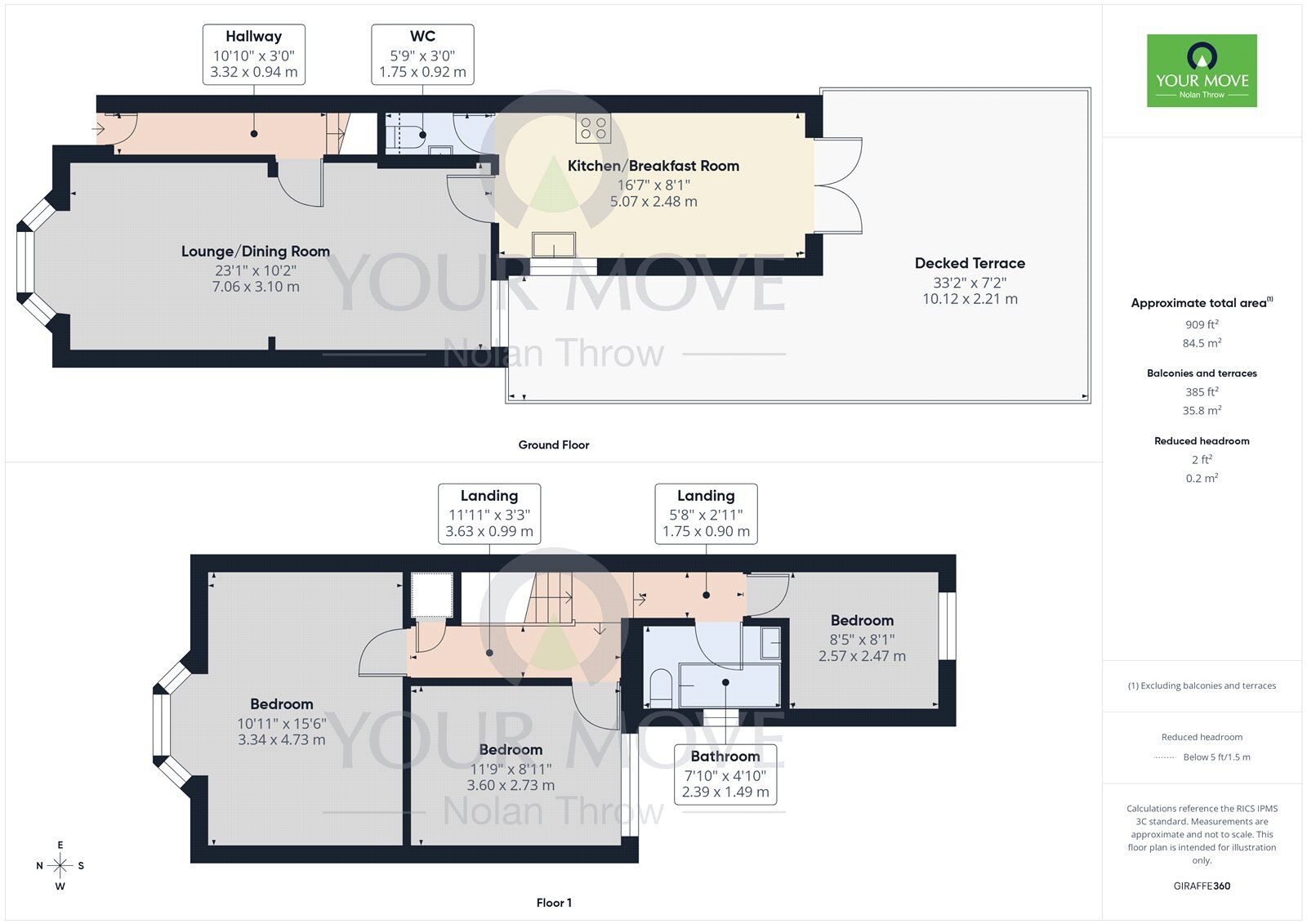
Features and Description
- No onward chain – ready for a smooth purchase
- Spacious bay-fronted end terrace property
- Three well-proportioned bedrooms
- Scope to improve and add value
- Large open-plan living and dining area
- Modern kitchen with space for breakfast dining
- Generous rear garden with lawn and decking
- Guest WC and family bathroom
- Radiator heating and double glazing
- Convenient location close to town centre and transport links
** SPACIOUS THREE-BEDROOM BAY-FRONTED END TERRACE – NO ONWARD CHAIN **
Your Move Nolan Throw are delighted to offer this particularly spacious three-bedroom bay-fronted end terrace home, situated on the ever-popular Balfour Street in Kettering.
Offered to the market with NO ONWARD CHAIN this property presents a fantastic opportunity for first-time buyers, families, investors or developers looking for a well-proportioned home with scope to add value.
The property is well presented throughout, however, having been unoccupied for a period, there are some areas requiring attention most notably minor water ingress and a leak from the bathroom that caused cosmetic damage to the kitchen ceiling. These are reflected in the pricing and offer an excellent opportunity for a buyer to enhance and personalise the property to their own taste.
Externally, the home benefits from a low-maintenance front garden retained by a brick wall, leading to a storm porch and into a welcoming entrance hall.
Inside, the property boasts a generous open-plan living space, offering ample room for both lounge and dining furniture, perfect for modern living and entertaining.
The kitchen is a good size and is fitted with a range of modern base and wall units, integrated appliances, and space for additional white goods. There is also room for a breakfast table, ideal for more informal dining. From here, you’ll find access to a convenient guest WC, as well as doors leading out to the rear garden.
The rear garden is fully enclosed and of a particularly generous size, featuring a lawned area and a raised decking space it's ideal for outdoor dining, relaxing and entertaining.
Upstairs, the property continues to impress with three well-proportioned bedrooms. The principal bedroom is especially spacious and benefits from a bay window, while the second bedroom is a comfortable double. The third bedroom is larger than average for a single, making it versatile as a bedroom, nursery, or home office.
The family bathroom is fitted with a modern white suite but would benefit from some cosmetic updating.
Location-wise, Balfour Street is ideally positioned within easy reach of Kettering town centre, offering a wide range of shops, restaurants, everyday amenities and popular schools.
The property also benefits from excellent transport links, including Kettering train station providing direct services to London St Pancras in under an hour, as well as good road access via the A14 and A43.
This is a superb opportunity to acquire a spacious home with huge potential to add value with minimal input in a convenient and well-connected location.
Take a look at our high definition virtual tour for an immersive preview of all on offer and then contact our friendly team to arrange a viewing today!
IMPORTANT NOTE TO POTENTIAL PURCHASERS:
We endeavour to make our particulars accurate and reliable, however, they do not constitute or form part of an offer or any contract and none is to be relied upon as statements of representation or fact. The services, systems and appliances listed in this specification have not been tested by us and no guarantee as to their operating ability or efficiency is given. All photographs and measurements have been taken as a guide only and are not precise. Floor plans where included are not to scale and accuracy is not guaranteed. If you require clarification or further information on any points, please contact us, especially if you are travelling some distance to view. Fixtures and fittings other than those mentioned are to be agreed with the seller.
Balfour Street, Kettering, Northamptonshire, NN16
Additional Information
-
Property refQKE250358
-
EPCE
-
TenureFreehold
-
Council TaxB
-
Local authorityNorth Northamptonshire Council
Similar properties for sale by Your Move Kettering
The pin shows the exact address of the property
Energy Efficiency Rating
Very energy efficient - lower running costs
Not energy efficient - higher running costs
Current
52Potential
83CO2 Rating
Very energy efficient - lower running costs
Not energy efficient - higher running costs
