This calculator provides a guide to the amount of residential stamp duty you may pay and does not guarantee this will be the actual cost. This calculation is based on the Stamp Duty Land Tax Rates for residential properties purchased from 23rd September 2022 and second homes from 31st October 2024. For more information on Stamp Duty Land Tax, click here.




































3 bedroom End Terrace House for sale, Barley Close, Little Eaton, Derbyshire, DE21
Features and Description
- Three Bedrooms
- Dual Aspect Lounge
- Two Toilets
- Popular Location
- Enclosed Rear Garden with Outbuilding
- Easy Access to Derby Centre and the A38
- Viewings Advised
- NO VENDOR CHAIN
OFFERED FOR SALE WITH NO UPWARD CHAIN.
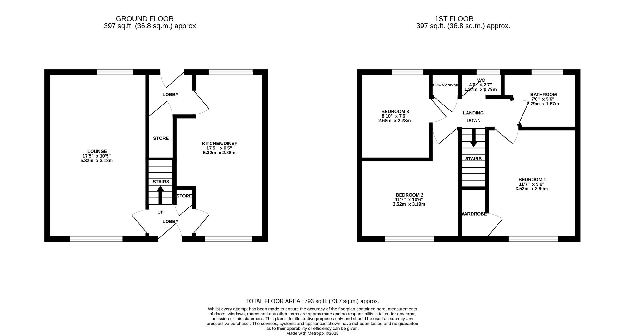
This light and spacious three bedroom house is located in the popular village of Little Eaton, boasting an easy commute to Derby centre and is within the catchment of Ecclesbourne School. In brief the accommodation consists of an entrance lobby, dual aspect lounge, kitchen diner, rear lobby with built in storage, two double bedrooms, a single bedroom, bathroom and additional WC. Externally there are gardens both the front and rear.
Entrance Lobby
Access is gained via a partially double glazed, upvc door. Allowing access to the dual aspect lounge, kitchen diner and stairs to the first floor, the lobby also features a useful in-built storage cupboard.
Lounge
17'5" x 10'5" (5.32m x 3.18m)
A well proportioned dual aspect living area that boasts windows to both the front and rear elevation, has a centrally heated radiator and wood effect floor coverings.
Kitchen Diner
5.32m x 2.88m max
This dual aspect kitchen diner boasts a range of wood effect wall, base and drawer units with complementary rolled edge laminate countertops that house the 1.5 bowl sink with mixer tap and side drainer. Here there is space for a freestanding gas cooker, space for a dishwasher, plumbing and point for an automatic washing machine and space for a fridge freezer. The room further benefits from windows to the front and rear elevation, centrally heated radiator, would effect floor coverings and ample space for a dining table.
Rear Lobby
Having a useful under-stairs storage cupboard, wood effect floor coverings, centrally heated radiator and a part double glazed upvc door that opens onto the rear garden.
Landing
Allowing access to all three bedrooms, family bathroom and the convenient additional WC. Here is access to the loft space via a ceiling hatch and a deep cupboard that houses the property's combination boiler.
Bedroom 1
3.52m x2.90m
A front facing double bedroom that benefits from a upvc double glazed to the front aspect, a central heating radiator and a walk-in style wardrobe space.
Bedroom 2
3.52m x 3.19m max
A further double bedroom located to the front aspect of the property. Here there is a upvc double glazed window, a centrally heated radiator and wood effect laminate floor coverings.
Bedroom 3
8'10" x 7'6" (2.68m x 2.28m)
A rear facing single bedroom with wood effect laminate floor coverings, a upvc double glazed window with views over the rear garden and the central heating radiator.
Bathroom
Comprising of a white suite that includes a low level wc, hand wash basin and bath with shower over. Have partially tiled walls, a modern heated towel rail and an obscured double glazed window to the rear elevation.
Additional Wc
Having a low level toilet with integrated hand wash basin built into the cistern and a double glazed upvc window to the rear aspect.
External
To the front of the property is a lawn garden with well stocked planted boarders. To the rear there is a charming enclosed garden consisting of a lawn, planted boarders, a decked seating area, outbuilding and hardstanding (the fence would need adapting for use as a parking space).
IMPORTANT NOTE TO POTENTIAL PURCHASERS:
We endeavour to make our particulars accurate and reliable, however, they do not constitute or form part of an offer or any contract and none is to be relied upon as statements of representation or fact. The services, systems and appliances listed in this specification have not been tested by us and no guarantee as to their operating ability or efficiency is given. All photographs and measurements have been taken as a guide only and are not precise. Floor plans where included are not to scale and accuracy is not guaranteed. If you require clarification or further information on any points, please contact us, especially if you are travelling some distance to view. Fixtures and fittings other than those mentioned are to be agreed with the seller.
Barley Close, Little Eaton, Derbyshire, DE21

Additional Information
-
Property refQBP240241
-
EPCD
-
TenureFreehold
-
Council TaxB
-
Local authorityAmber Valley Borough Council





































The pin shows the exact address of the property
Energy Efficiency Rating
Very energy efficient - lower running costs
Not energy efficient - higher running costs
Current
68Potential
86CO2 Rating
Very energy efficient - lower running costs
Not energy efficient - higher running costs