Main image of 3 bedroom End Terrace House for sale, Newcombe Road, St James, Northamptonshire, NN5
Image 2
Play property trailer
Image 3
Image 4
Image 5
Image 6
Image 7
Image 8
Image 9
Image 10
Image 11
Image 12
£230,000 Asking price

3 bedroom End Terrace House for sale,
Newcombe Road, St James, Northamptonshire, NN5

Jonathan Wilson Branch Manager
Jonathan Wilson
Branch Manager
Arrange a viewingSave
Virtual tours

Features and Description

  • Three Bedrooms
  • End Of Terrace
  • Garage
  • No Upward Chain
  • Two Reception Rooms

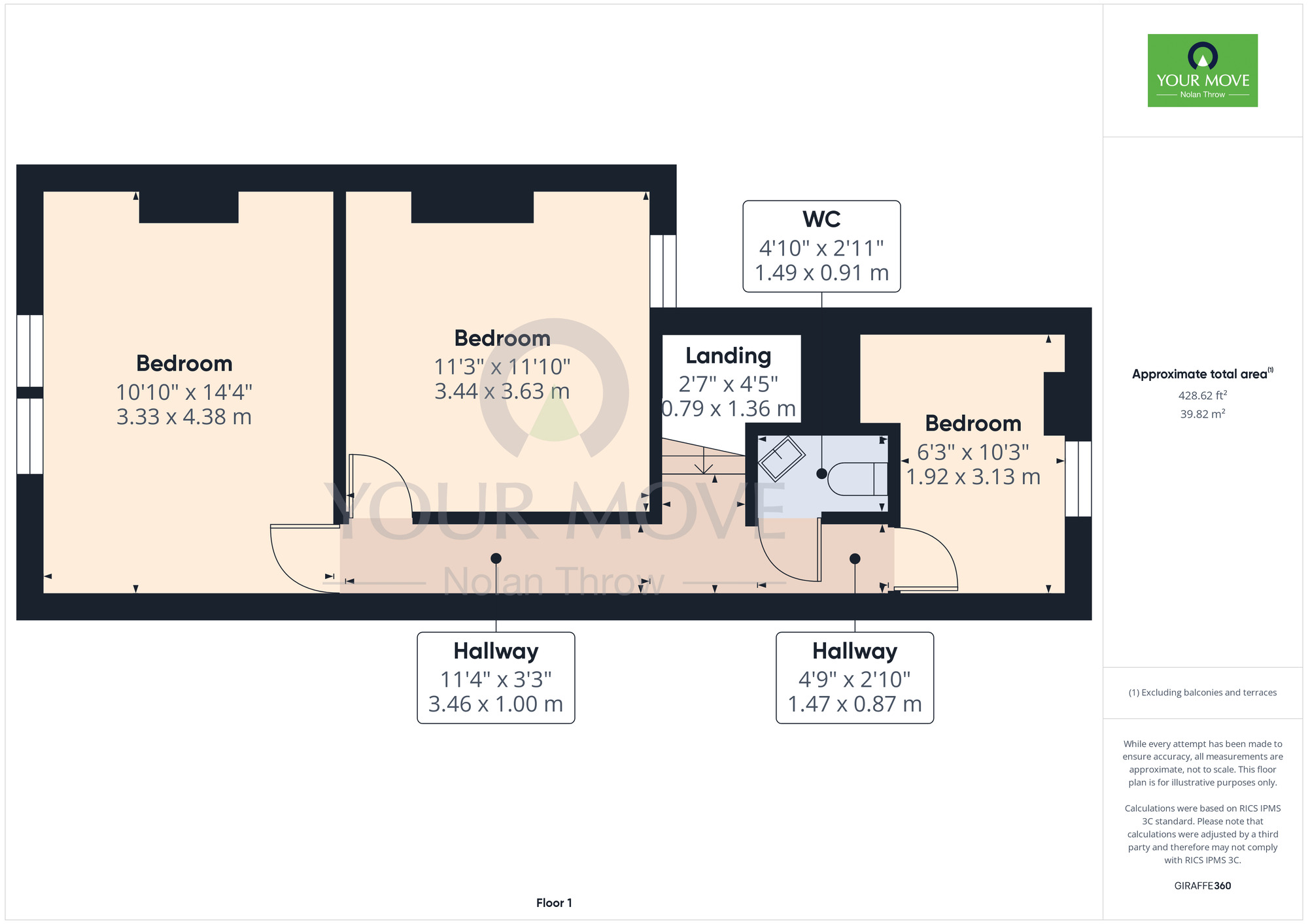
A spacious three bedroom end of terrace property situated in St James. The property has features to include two reception rooms, a bathroom and additional WC, double glazing where specified and a larger than average rear garage. The property is entered via a double glazed door which leads into the entrance hall which has stairs rising to the first floor, a door to the bathroom, and also leads into the kitchen which in turn has a double gazed door leading to the courtyard. The dining room has double glazed French doors to the rear and a door into the lounge. To the first floor are three bedrooms and the WC.

The accommodation briefly comprises of entrance hall, lounge, dining room, kitchen, bathroom, first floor landing, three bedrooms and WC.

Outside is a courtyard and a larger than average garage.

IMPORTANT NOTE TO POTENTIAL PURCHASERS:
We endeavour to make our particulars accurate and reliable, however, they do not constitute or form part of an offer or any contract and none is to be relied upon as statements of representation or fact. The services, systems and appliances listed in this specification have not been tested by us and no guarantee as to their operating ability or efficiency is given. All photographs and measurements have been taken as a guide only and are not precise. Floor plans where included are not to scale and accuracy is not guaranteed. If you require clarification or further information on any points, please contact us, especially if you are travelling some distance to view. Fixtures and fittings other than those mentioned are to be agreed with the seller.

Newcombe Road, St James, Northamptonshire, NN5

Additional Information

  • Property ref
    QNT260002
  • EPC
    D
  • Tenure
    Freehold
  • Council Tax
    A
  • Local authority
    West Northamptonshire
Jonathan Wilson Branch Manager
Jonathan Wilson
Branch Manager

Do you have a property you need to sell?

Book a free valuation to get an accurate valuation of how much your home is worth.

Your Move Estate Agents Duston

Duston Branch Manager
Your Move Duston
60 Main Road, Duston, Northampton, NN5 6JF
Mon - Fri9:00 - 17:30Saturday09:00 - 17:00Sunday10:00 - 13:00

Buyer Tools

Mortgage Calculator

Monthly payment

£

Borrowing £207,000 and repaying over 25 years with a 2.5% interest rate.

Now you know what you could be paying, book an appointment with our partners Embrace Financial Services to find the right mortgage for you.

Stamp duty calculator

Calculate

You would pay

This calculator provides a guide to the amount of residential stamp duty you may pay and does not guarantee this will be the actual cost. This calculation is based on the Stamp Duty Land Tax Rates for residential properties purchased from 23rd September 2022 and second homes from 31st October 2024. For more information on Stamp Duty Land Tax, click here.

Nearby locations
Photos
Virtual tours
Floorplan
Map view
Street view

The pin shows the exact address of the property

Energy Efficiency Rating

Very energy efficient - lower running costs

(92 plus) A
(81 - 91) B
(69 - 80) C
(55 - 68) D
(39 - 54) E
(21 - 38) F
(1 - 20) G

Not energy efficient - higher running costs

Current

60

Potential

85

CO2 Rating

Very energy efficient - lower running costs

(92 plus) A
(81 - 91) B
(69 - 80) C
(55 - 68) D
(39 - 54) E
(21 - 38) F
(1 - 20) G

Not energy efficient - higher running costs

Current

N/A

Potential

N/A