This calculator provides a guide to the amount of residential stamp duty you may pay and does not guarantee this will be the actual cost. This calculation is based on the Stamp Duty Land Tax Rates for residential properties purchased from 23rd September 2022 and second homes from 31st October 2024. For more information on Stamp Duty Land Tax, click here.
3 bedroom End Terrace House for sale, Newtown Road, Carlisle, Cumbria, CA2
Features and Description
- Three Bedrooms
- Courtyard with Storage Area and Utility Room
- Living Room
- Dining Room
- Open Plan Kitchen with Bifold Doors
- Four Piece Family Bathroom
- Close to Cumberland Infirmary and City Centre
- Many amenities and schools nearby
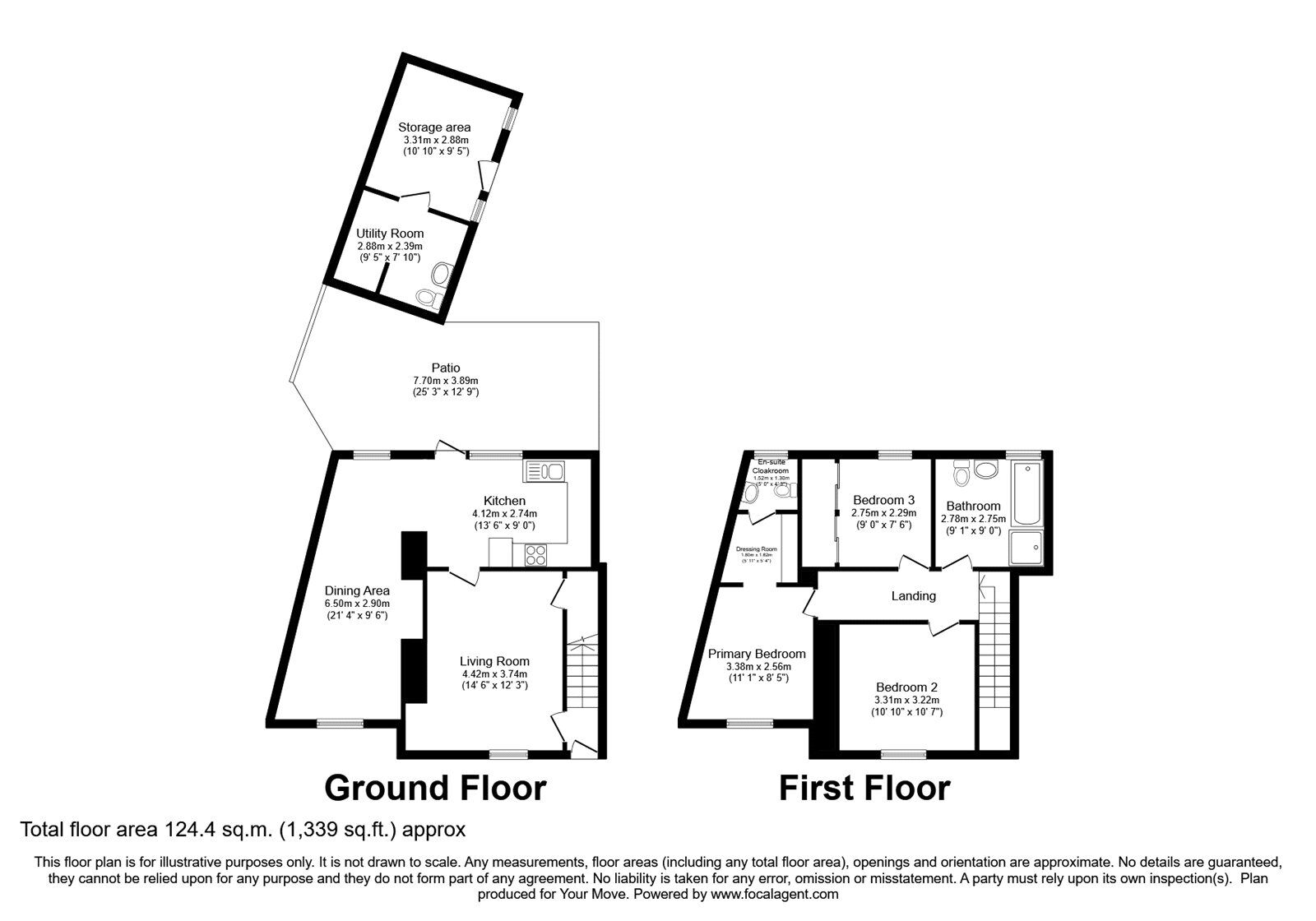
Ideally located on Newtown Road, close to Cumberland Infirmary, is a well presented three bedroom, two reception end terrace property. The accommodation offers entrance hallway, living room, kitchen and dining room. The first floor has three bedrooms, one with dressing and cloakroom, and a family bathroom. Externally is a forecourt. To the rear is a low maintenance courtyard and outbuilding. There is on street permit parking, where available.
Entrance Hall
Providing access to living room and first floor.
Living Room
14'6" x 12'3" (4.42m x 3.74m)
Well presented living room with storage cupboard. Leads to kitchen.
Kitchen
13'6" x 8'12" (4.12m x 2.74m)
Open plan kitchen, leading to dining area, with bi-fold doors opening onto rear courtyard. Fitted with a range of wall and base units, contrasting worktops, electric oven, induction hob, stainless steel extractor hood, partial wall tiling, one and a half bowl sink with mixer tap, space for fridge/freezer, downlighters, under pelmet lighting and floor tiles.
Dining Area
21'4" x 9'6" (6.50m x 2.90m)
Open plan dining room, with dual aspect windows, downlighter and laminate flooring. Could be used as a family room.
Primary Bedroom
11'1" x 8'5" (3.38m x 2.56m)
Positioned at the front of the property, with separate dressing area and en-suite cloakroom.
En-Suite Cloakroom
Accessed via primary bedroom, incorporating WC and sink.
Bedroom 2
10'10" x 10'7" (3.30m x 3.23m)
Positioned at the front of the property.
Bedroom 3
9'0" x 7'6" (2.75m x 2.29m)
Positioned at the rear of the property, with fitted wardrobes housing the gas boiler.
Bathroom
9'1" x 8'12" (2.78m x 2.74m)
Generous sized four piece white suite bathroom with bath, separate shower cubicle, wall tiling, sink and WC.
External
To the front of the property is a walled, low maintenance forecourt, accessed via a gate. To the rear is a tiered courtyard with garden, seating area, gazebo, access via steps to gravel area and outbuilding, and gate providing access to shared lane. Parking is residential on street, where available - permit available via Cumberland Council, subject to conditions.
Storage Area
10'10" x 9'5" (3.30m x 2.87m)
Situated in outbuilding, accessed via rear garden. Leads to utility room.
Utility Room
9'5" x 7'10" (2.87m x 2.40m)
Situated in outbuilding, accessed via storage area, with plumbing for washing machine, space for tumble dryer and separate area comprising sink and WC.
Additional
This property benefits from double glazing and gas heating.
Agent's Note
Part of the bathroom is situated above the kitchen of No. 39 and is therefore subject to a flying freehold.Rear access has been enjoyed by the present owner; however, we do not hold formal documentation confirming a right of way. Buyers should satisfy themselves that this arrangement meets their individual needs.
IMPORTANT NOTE TO POTENTIAL PURCHASERS:
We endeavour to make our particulars accurate and reliable, however, they do not constitute or form part of an offer or any contract and none is to be relied upon as statements of representation or fact. The services, systems and appliances listed in this specification have not been tested by us and no guarantee as to their operating ability or efficiency is given. All photographs and measurements have been taken as a guide only and are not precise. Floor plans where included are not to scale and accuracy is not guaranteed. If you require clarification or further information on any points, please contact us, especially if you are travelling some distance to view. Fixtures and fittings other than those mentioned are to be agreed with the seller.
Agents are required by law to conduct Anti-Money Laundering checks on all buyers. Your Move Carlisle, Whitehaven and Wigton charge £30 including VAT per buyer. The charge covers the cost of obtaining and retaining relevant data from a third party. This fee is payable in advance prior to issuing a memorandum of sale and before the property can be sale agreed.
Newtown Road, Carlisle, Cumbria, CA2
Additional Information
-
Property refCAR260038
-
EPCC
-
TenureFreehold
-
Council TaxB
-
Local authorityCumberland Council
Well presented living room with storage cupboard. Leads to kitchen.
Open plan kitchen, leading to dining area, with bi-fold doors opening onto rear courtyard. Fitted with a range of wall and base units, contrasting worktops, electric oven, induction hob, stainless steel extractor hood, partial wall tiling, one and a half bowl sink with mixer tap, space for fridge/freezer, downlighters, under pelmet lighting and floor tiles.
Positioned at the front of the property, with separate dressing area and en-suite cloakroom.
Positioned at the front of the property.
Positioned at the rear of the property, with fitted wardrobes housing the gas boiler.
Generous sized four piece white suite bathroom with bath, separate shower cubicle, wall tiling, sink and WC.
To the front of the property is a walled, low maintenance forecourt, accessed via a gate. To the rear is a tiered courtyard with garden, seating area, gazebo, access via steps to gravel area and outbuilding, and gate providing access to shared lane. Parking is residential on street, where available - permit available via Cumberland Council, subject to conditions.
The pin shows the exact address of the property
Energy Efficiency Rating
Very energy efficient - lower running costs
Not energy efficient - higher running costs
Current
71Potential
83CO2 Rating
Very energy efficient - lower running costs
Not energy efficient - higher running costs
