Main image of 1 bedroom End Terrace House for sale, Temple Terrace, Whitehaven, Cumbria, CA28
Kitchen / Dining Room
Play property trailer
Kitchen / Dining Room
Living Room
Living Room
Outside
Bedroom
Bathroom
Bedroom
Bedroom
Outside
Cloakroom
£130,000 Asking price

1 bedroom End Terrace House for sale,
Temple Terrace, Whitehaven, Cumbria, CA28

Louise McGuckin Branch Manager
Louise McGuckin
Branch Manager
Arrange a viewingSave
Virtual tours

Features and Description

Tucked away on Temple Terrace, this charming one-bedroom period property offers a wonderful blend of character and modern living, all within easy walking distance of Whitehaven town centre, with shops, amenities, and excellent transport links.

Deceptively spacious, the accommodation is thoughtfully arranged over three floors, creating a light and airy feel throughout. The home retains a wealth of period charm, complemented by tasteful contemporary touches that enhance both style and comfort.

The inviting living spaces provide a cosy yet bright setting, perfect for first-time buyers, professionals, or those seeking a unique home full of character, this delightful property offers a rare opportunity to own a beautifully presented period home in a convenient and tucked-away location.

Entrance Hall

Welcoming entrance, with door leading to the kitchen/dining room.

IMPORTANT NOTE TO POTENTIAL PURCHASERS:
We endeavour to make our particulars accurate and reliable, however, they do not constitute or form part of an offer or any contract and none is to be relied upon as statements of representation or fact. The services, systems and appliances listed in this specification have not been tested by us and no guarantee as to their operating ability or efficiency is given. All photographs and measurements have been taken as a guide only and are not precise. Floor plans where included are not to scale and accuracy is not guaranteed. If you require clarification or further information on any points, please contact us, especially if you are travelling some distance to view. Fixtures and fittings other than those mentioned are to be agreed with the seller.

Agents are required by law to conduct Anti-Money Laundering checks on all buyers. Your Move Carlisle, Whitehaven and Wigton charge £30 including VAT per buyer. The charge covers the cost of obtaining and retaining relevant data from a third party. This fee is payable in advance prior to issuing a memorandum of sale and before the property can be sale agreed.

Temple Terrace, Whitehaven, Cumbria, CA28

Additional Information

  • Property ref
    WHV260267
  • EPC
    E
  • Tenure
    Freehold
  • Council Tax
    A
  • Local authority
    Cumberland Council
Louise McGuckin Branch Manager
Louise McGuckin
Branch Manager

Do you have a property you need to sell?

Book a free valuation to get an accurate valuation of how much your home is worth.

Your Move Estate Agents Whitehaven

Whitehaven Branch Manager
Your Move Whitehaven
67 Lowther Street, Whitehaven, CA28 7AH
Mon - Thurs09:00 - 17:30Friday09:00 - 17:00Saturday09:00 - 16:00SundayClosed
Disabled access available

Buyer Tools

Mortgage Calculator

Monthly payment

£

Borrowing £117,000 and repaying over 25 years with a 2.5% interest rate.

Now you know what you could be paying, book an appointment with our partners Embrace Financial Services to find the right mortgage for you.

Stamp duty calculator

Calculate

You would pay

This calculator provides a guide to the amount of residential stamp duty you may pay and does not guarantee this will be the actual cost. This calculation is based on the Stamp Duty Land Tax Rates for residential properties purchased from 23rd September 2022 and second homes from 31st October 2024. For more information on Stamp Duty Land Tax, click here.

Nearby locations
Photos
Virtual tours
Floorplan
Map view
Street view
Main image of 1 bedroom End Terrace House for sale, Temple Terrace, Whitehaven, Cumbria, CA28
Kitchen / Dining Room
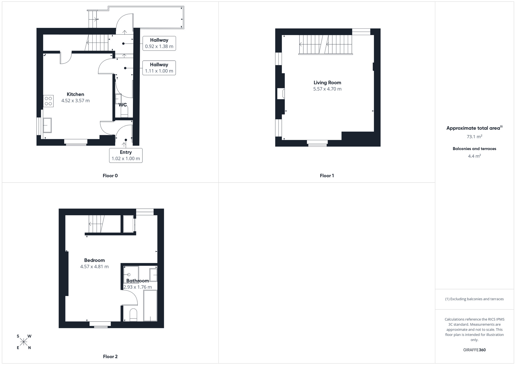
14'10" x 11'9" (4.52m x 3.57m)

Spacious kitchen/dining room, offering a range of stainless steel plated fitted units, with stone effect countertop and matching backsplash. The kitchen also benefits from an integrated dishwasher, electric oven and countertop mounted gas hob. There is ample room to comfortably accommodate a two to four seater dining table, or a kitchen island- ideal for informal dining. Access to the understairs cupboard provides additional storage space.

Kitchen / Dining Room Kitchen / Dining Room
Cloakroom

Convenient ground floor cloakroom, with w/c, wash hand basin and heated towel rail.

Cloakroom
Living Room
18'3" x 15'5" (5.57m x 4.70m)

The large living room accommodates the entire first floor, allowing for triple aspect windows to flood the room with natural light. Centred by a feature, cast iron fireplace, the living room maintains a cosy atmosphere.

Living Room Living Room
Bedroom
15'9" x 14'12" (4.81m x 4.57m)

Generous double bedroom, with dual aspect windows and a contemporary fitted wardrobe with sliding doors. A small nook, creates an ideal space for a study area, with convenient, additional over stairs storage.

Bedroom Bedroom Bedroom
Bathroom
9'7" x 5'6" (2.93m x 1.67m)

Accessed from the bedroom with a skylight and recessed lighting. Benefitting from a bath, separate shower cubicle, w/c, wash hand basin and heated towel rail.

Bathroom
Outside

The property enjoys a versatile and low maintenance wrap around garden. To the rear of the property, is a flagged patio area- ideal for a bistro set or bin store. To the front, the property benefits from the ownership of the lane leading from the road, allowing for access to good-sized hardstanding, located to the side of the property- ideal for off-street parking, or potential to create a private garden. Also to the side of the property, is a further flagged patio area- with space for a shed. A copy of the title plan is available to interested parties from the branch, illustrating the property's boundary.

Outside Outside

The pin shows the exact address of the property

Energy Efficiency Rating

Very energy efficient - lower running costs

(92 plus) A
(81 - 91) B
(69 - 80) C
(55 - 68) D
(39 - 54) E
(21 - 38) F
(1 - 20) G

Not energy efficient - higher running costs

Current

48

Potential

88

CO2 Rating

Very energy efficient - lower running costs

(92 plus) A
(81 - 91) B
(69 - 80) C
(55 - 68) D
(39 - 54) E
(21 - 38) F
(1 - 20) G

Not energy efficient - higher running costs

Current

N/A

Potential

N/A