This calculator provides a guide to the amount of residential stamp duty you may pay and does not guarantee this will be the actual cost. This calculation is based on the Stamp Duty Land Tax Rates for residential properties purchased from 23rd September 2022 and second homes from 31st October 2024. For more information on Stamp Duty Land Tax, click here.
2 bedroom Flat for sale, Caesar Road, North Hykeham, Lincolnshire, LN6
Features and Description
- BRILLIANT FIRST TIME BUY OR INVESTMENT
- EPC Grade - C
- Modern Shower Room and Fitted Kitchen
- Beautifully Sized Lounge-Diner
- Sun Rich Private Rear Garden
- Two Bedrooms
- Allocated Parking and Single Garage
- View Now To Avoid Disappointment!!!
A WELL SIZED and IMMACULATELY PRESENTED ground floor apartment which is perfect for a FIRST TIME PURCHASE or AN INVESTMENT OPPORTUNITY. CALL TO VIEW NOW! Briefly comprising of an entrance hall, shower room, modern fitted kitchen, stunning lounge-diner and two bedrooms. To the rear the property offers a gorgeous low maintenance and private rear garden. The property also has the added advantage two allocated parking spaces, electric car charging point and a single garage.
BOOK YOUR VIEWING TODAY TO AVOID DISSAPOINTMENT! EPC - Grade TBC.
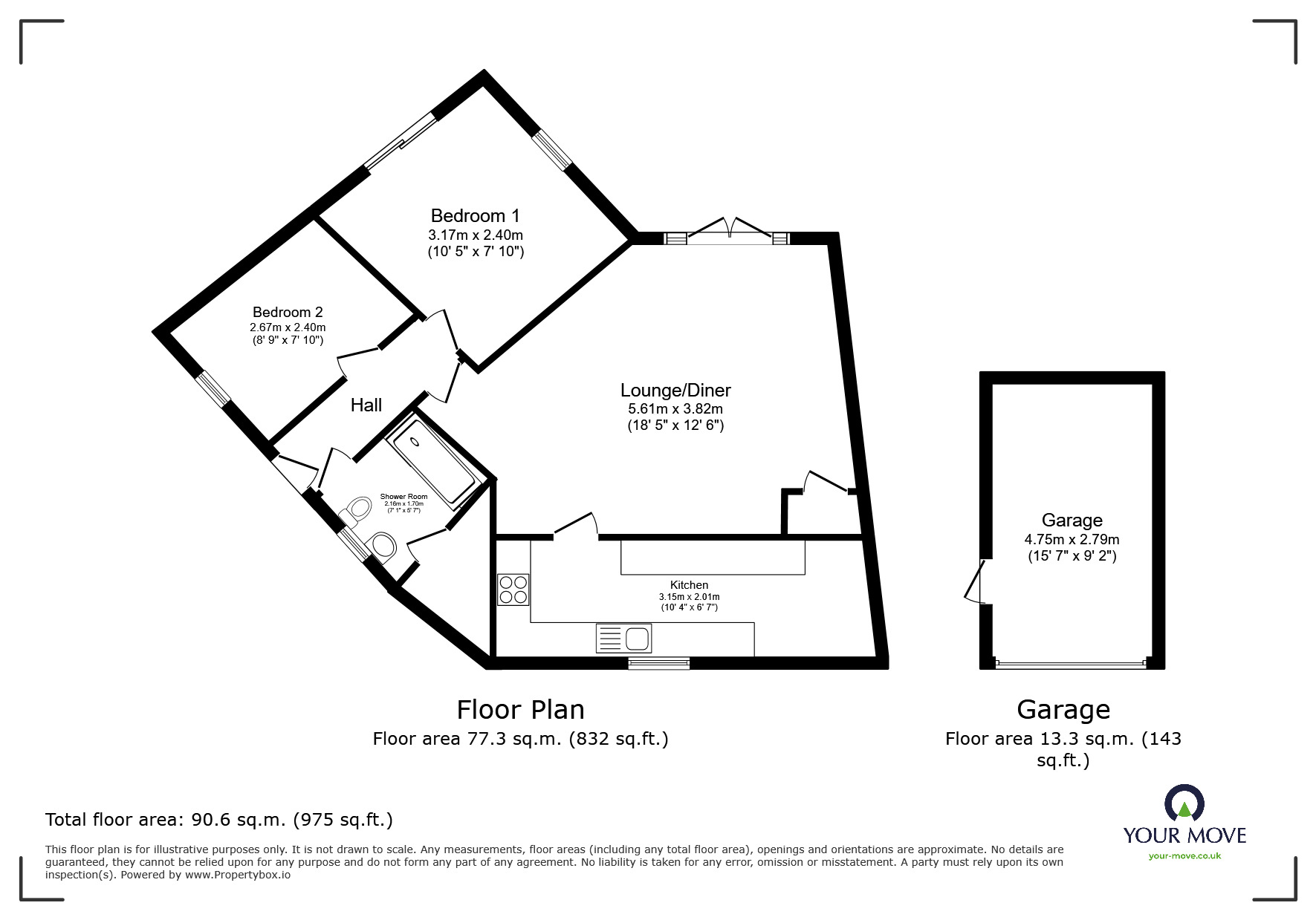
Entrance Hall
Hosting laminate flooring, electric radiator, ceiling spotlights and a composite entrance door to the front aspect.
Shower Room
7'1" x 5'7" (2.16m x 1.70m)
Modern shower room hosting a walk in shower with an electric shower, low level WC, pedestal wash hand basin, partially tiled walls, electric radiator rail, tiled flooring, generously sized airing cupboard and a double glazed window to the front aspect.
Lounge-Diner
3.82m (max) x 5.61m (max)
Expansive lounge-diner hosting laminate flooring, television aerial point, fan light, storage cupboard, two double glazed windows to the rear aspect and uPVC double glazed French doors to the rear aspect opening to the private rear garden.
Kitchen
10'4" x 6'7" (3.15m x 2.01m)
Modern fitted kitchen hosting a range of wall and base units with contrasting work surfaces, sink and drainer unit with an instant hot water tap, space and plumbing for a washing machine and dishwasher, integral four ring induction hob and extractor hood, tile splashbacks, space for a fridge-freezer, integral bins and a double glazed window to the front aspect with fitted blinds.
Bedroom 1
7'10" x 10'5" (2.40m x 3.17m)
Naturally bright double bedroom hosting a double glazed window to the rear aspect with fitted blinds, carpet flooring, free standing wardrobes and uPVC double glazed sliding doors to the side aspect leading to the private and sun rich raised decking area.
Bedroom 2
7'10" x 8'9" (2.40m x 2.67m)
Generously sized second bedroom hosting carpet flooring and a double glazed window to the front aspect with fitted blinds.
Garage
This ground floor apartment offers the unique but fantastic bonus of a single detached garage with internal power and lighting and a personal door to the side aspect. Further to the garage there is two allocated parking spaces with an electric car charging point.
Gardens
The front aspect is laid to broken slate and gravel and also offers a secure metal framed storage unit. The secure, private, low maintenance and stunning rear garden is fully enclosed with close board fencing and is laid to a combination of lawn, patio and raised decking with a manual awning.
Tenure
LeaseholdNorth Kesteven District CouncilTax Band A
Lease Information
Lease Term - 155 years from 1st January 2007Ground Rent - Circa £65 every 6 monthsService Charge - Circa £600 every 6 months
IMPORTANT NOTE TO POTENTIAL PURCHASERS:
We endeavour to make our particulars accurate and reliable, however, they do not constitute or form part of an offer or any contract and none is to be relied upon as statements of representation or fact. The services, systems and appliances listed in this specification have not been tested by us and no guarantee as to their operating ability or efficiency is given. All photographs and measurements have been taken as a guide only and are not precise. Floor plans where included are not to scale and accuracy is not guaranteed. If you require clarification or further information on any points, please contact us, especially if you are travelling some distance to view. Fixtures and fittings other than those mentioned are to be agreed with the seller.
Caesar Road, North Hykeham, Lincolnshire, LN6
Additional Information
-
Property refNHY240248
-
EPCC
-
TenureLeasehold
-
Lease length135 years
-
Council TaxA
-
Local authorityNorth Kesteven District Council
-
Ground Rent£130
-
Ground Rent ReviewContact the branch
-
Service Charge£1,200
Similar properties for sale by Your Move North Hykeham
Hosting laminate flooring, electric radiator, ceiling spotlights and a composite entrance door to the front aspect.
Modern shower room hosting a walk in shower with an electric shower, low level WC, pedestal wash hand basin, partially tiled walls, electric radiator rail, tiled flooring, generously sized airing cupboard and a double glazed window to the front aspect.
Expansive lounge-diner hosting laminate flooring, television aerial point, fan light, storage cupboard, two double glazed windows to the rear aspect and uPVC double glazed French doors to the rear aspect opening to the private rear garden.
Modern fitted kitchen hosting a range of wall and base units with contrasting work surfaces, sink and drainer unit with an instant hot water tap, space and plumbing for a washing machine and dishwasher, integral four ring induction hob and extractor hood, tile splashbacks, space for a fridge-freezer, integral bins and a double glazed window to the front aspect with fitted blinds.
Naturally bright double bedroom hosting a double glazed window to the rear aspect with fitted blinds, carpet flooring, free standing wardrobes and uPVC double glazed sliding doors to the side aspect leading to the private and sun rich raised decking area.
Generously sized second bedroom hosting carpet flooring and a double glazed window to the front aspect with fitted blinds.
This ground floor apartment offers the unique but fantastic bonus of a single detached garage with internal power and lighting and a personal door to the side aspect. Further to the garage there is two allocated parking spaces with an electric car charging point.
The front aspect is laid to broken slate and gravel and also offers a secure metal framed storage unit. The secure, private, low maintenance and stunning rear garden is fully enclosed with close board fencing and is laid to a combination of lawn, patio and raised decking with a manual awning.
The pin shows the exact address of the property
Energy Efficiency Rating
Very energy efficient - lower running costs
Not energy efficient - higher running costs
Current
71Potential
80CO2 Rating
Very energy efficient - lower running costs
Not energy efficient - higher running costs
