This calculator provides a guide to the amount of residential stamp duty you may pay and does not guarantee this will be the actual cost. This calculation is based on the Stamp Duty Land Tax Rates for residential properties purchased from 23rd September 2022 and second homes from 31st October 2024. For more information on Stamp Duty Land Tax, click here.
2 bedroom Flat for sale, Coral Court, Erith, DA8
Features and Description
- Top-floor two-bedroom flat
- Private balcony outdoor space
- Allocated off-street parking
- Main bedroom with en-suite
- Separate fitted kitchen layout
- No onward chain sale
- Short walk to Erith Station
- Approx 35–40 mins to London
- Close to shops and amenities
- Near Thames Path and parks
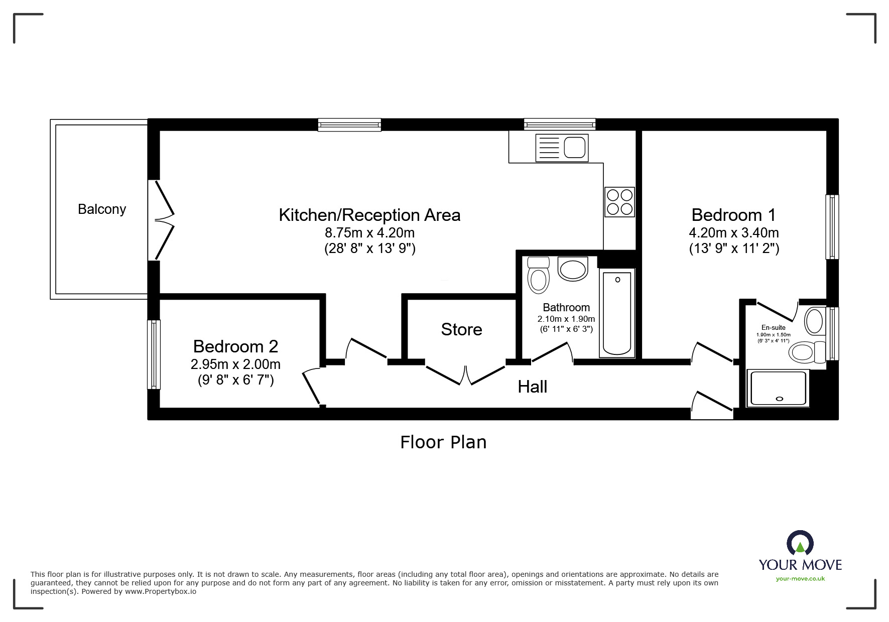
This two-bedroom flat is offered for sale in good condition and is located in Erith, a Thames-side town in the London Borough of Bexley. Situated on the top floor, the property benefits from a balcony and parking, and is available with no ongoing chain, making it particularly appealing to first-time buyers.
The flat comprises two bedrooms, including a main bedroom with en-suite, a further bathroom, one reception room and a separate kitchen. The balcony provides private outdoor space, while the allocated parking offers additional convenience.
Erith town centre provides a range of local amenities including supermarkets, shops and cafes, with larger retail and leisure options available at nearby Bexleyheath. Green spaces such as Erith Riverside Gardens and nearby parks along the Thames Path offer pleasant walking routes and outdoor recreation.
Public transport links are a key benefit of this location. Erith Railway Station is within easy reach, providing services to London Cannon Street and London Bridge, typically in around 35–40 minutes, and to Dartford in around 10 minutes, connecting further into Kent. Local bus services link Erith to neighbouring areas including Bexleyheath, Crayford and Woolwich, broadening travel options for commuters and leisure.
With its practical layout, balcony, parking and convenient access to public transport, amenities and green spaces, this top floor two-bedroom flat for sale in Erith represents a suitable option for first-time buyers seeking a well-located home. EPC rating C.
Tenure - Leasehold
EPC Rating - C
Council Tax - Band C
Lounge / Dining Area & Kitchen
28'8" x 13'9" (8.74m x 4.20m)
Bedroom
13'9" x 11'2" (4.20m x 3.40m)
Bedroom
9'8" x 6'7" (2.95m x 2.00m)
IMPORTANT NOTE TO POTENTIAL PURCHASERS:
We endeavour to make our particulars accurate and reliable, however, they do not constitute or form part of an offer or any contract and none is to be relied upon as statements of representation or fact. The services, systems and appliances listed in this specification have not been tested by us and no guarantee as to their operating ability or efficiency is given. All photographs and measurements have been taken as a guide only and are not precise. Floor plans where included are not to scale and accuracy is not guaranteed. If you require clarification or further information on any points, please contact us, especially if you are travelling some distance to view. Fixtures and fittings other than those mentioned are to be agreed with the seller.
Coral Court, Erith, DA8
Additional Information
-
Property refNHE260093
-
EPCC
-
TenureLeasehold
-
Lease length119 years
-
Council TaxC
-
Local authorityBexley Council
-
Ground RentContact the branch
-
Ground Rent ReviewContact the branch
-
Service ChargeContact the branch
Similar properties for sale by Your Move Northumberland Heath
The pin shows the exact address of the property
Energy Efficiency Rating
Very energy efficient - lower running costs
Not energy efficient - higher running costs
Current
70Potential
70CO2 Rating
Very energy efficient - lower running costs
Not energy efficient - higher running costs
