This calculator provides a guide to the amount of residential stamp duty you may pay and does not guarantee this will be the actual cost. This calculation is based on the Stamp Duty Land Tax Rates for residential properties purchased from 23rd September 2022 and second homes from 31st October 2024. For more information on Stamp Duty Land Tax, click here.
1 bedroom Flat for sale, Dover Road, Walmer, Kent, CT14
Features and Description
- 1 Bedroom
- Living Room
- Kitchen
- Bathroom
- Parking
Situated in the highly sought-after Walmer area, this attractive chain-free ground floor apartment benefits from excellent access to local shops, the mainline train station, and Walmer’s popular seafront.
The well-presented accommodation comprises a bright bay-fronted lounge, fitted galley kitchen, double bedroom, and bathroom. The property is further enhanced by the rare advantage of allocated parking and well-maintained communal gardens.
Currently operating as a successful rental investment, the apartment offers a strong yield in excess of 7%, making it an ideal opportunity for investors. Equally, its location and layout will appeal to first-time buyers seeking a coastal home with convenient amenities nearby.
Additional information:
Service Charge: Approx £1560 pa
Lease Length: 144 years remaining
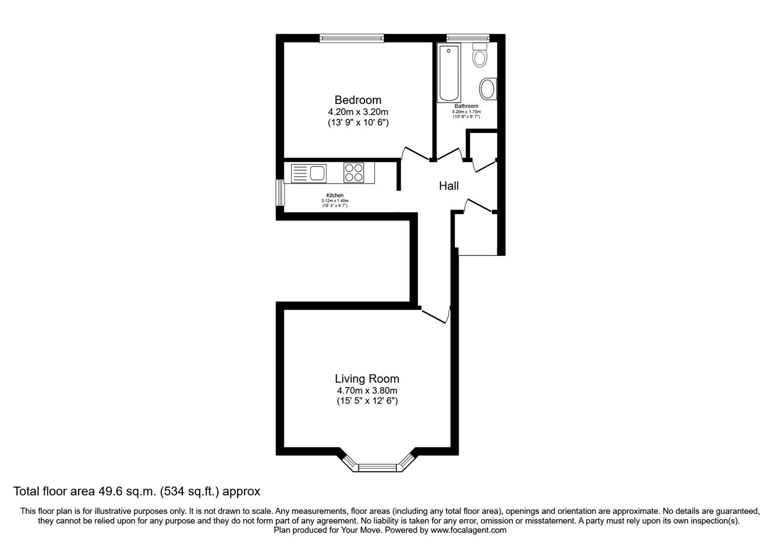
Living Room
15'5" x 12'6" (4.70m x 3.80m)
Bedroom
13'9" x 10'6" (4.20m x 3.20m)
Kitchen
10'3" x 4'7" (3.12m x 1.40m)
Bathroom
10'6" x 5'7" (3.20m x 1.70m)
IMPORTANT NOTE TO POTENTIAL PURCHASERS:
We endeavour to make our particulars accurate and reliable, however, they do not constitute or form part of an offer or any contract and none is to be relied upon as statements of representation or fact. The services, systems and appliances listed in this specification have not been tested by us and no guarantee as to their operating ability or efficiency is given. All photographs and measurements have been taken as a guide only and are not precise. Floor plans where included are not to scale and accuracy is not guaranteed. If you require clarification or further information on any points, please contact us, especially if you are travelling some distance to view. Fixtures and fittings other than those mentioned are to be agreed with the seller.
Dover Road, Walmer, Kent, CT14
Additional Information
-
Property refDEA260001
-
EPCC
-
TenureLeasehold
-
Lease length144 years
-
Council TaxA
-
Local authorityDover District Council
-
Ground RentContact the branch
-
Ground Rent ReviewContact the branch
-
Service Charge£1,560
The pin shows the exact address of the property
Energy Efficiency Rating
Very energy efficient - lower running costs
Not energy efficient - higher running costs
Current
72Potential
81CO2 Rating
Very energy efficient - lower running costs
Not energy efficient - higher running costs
