This calculator provides a guide to the amount of residential stamp duty you may pay and does not guarantee this will be the actual cost. This calculation is based on the Stamp Duty Land Tax Rates for residential properties purchased from 23rd September 2022 and second homes from 31st October 2024. For more information on Stamp Duty Land Tax, click here.
2 bedroom Flat for sale, Farnley Road, Woodfield Plantation, South Yorkshire, DN4
Features and Description
- 2 Bedroom Upper Floor Flat
- NO CHAIN. Woodfield Plantation
- Utility Area, Four Piece Bathroom
- Open Plan Kitchen/Lounge
- EPC Rating C
- Allocated Parking Space
- Leasehold Exp 01/0//2130
Public Notice
Address: 46 Farnley Road, Woodfield Plantation, Doncaster, South Yorkshire, DN4 8TS
We are acting in the sale of the above property and have received an offer of £85,000
Any interested parties must submit their offer in writing to the selling agent within 14 days of the date of this notice. If no further acceptable offers are received during this period, the property will be marked as Sold Subject to Contract and no further offers will be accepted while under this status.
Date of Notice: 23/02/2026
There are TWO DOUBLE BEDROOMS and a modern family bathroom/w.c. Also the apartment has a useful UTILITY ROOM which has space for white goods and this room also houses the gas boiler. The main living area is OPEN PLAN and enjoys a modern kitchen area with integral and free standing appliances. The lounge area is a generous size and boast's elevated views. EPC Rating C
Location
Balby is a popular village located approximately three miles from Doncaster City centre. There is a wide variety of amenities available including shops, supermarkets as well as schooling and healthcare. The area has a regular bus service to Doncaster and surrounding villages, great transport links for the A1M, M18 and M1 and the nearest station being Doncaster.
Communal lobby
Entrance lobby with stairs rising to the second floor landing, where the flat is located.
Entrance Hall
Entrance door opening into the hallway with doors leading off and a radiator.
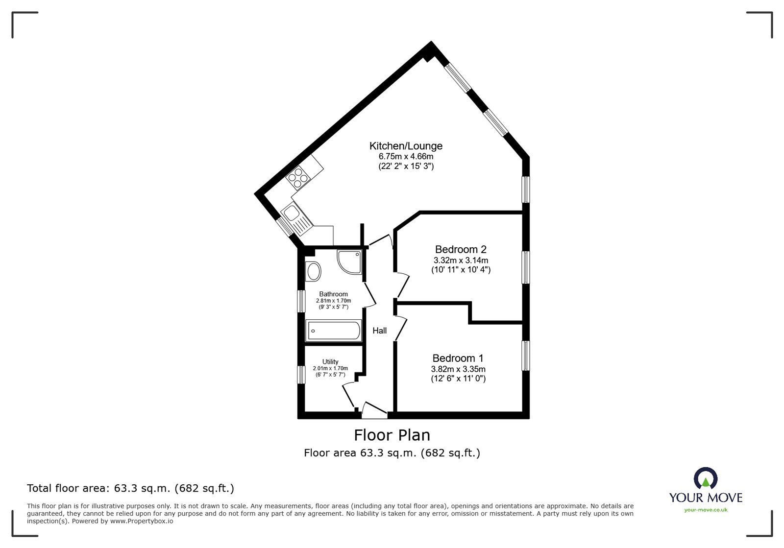
Utility Area
6'7" x 5'9" (2.01m x 1.76m)
Useful utility area, having a roll top work surface with tiled splashback, with plumbing and space for a washing machine and dryer. A wall mounted central heating boiler and a double glazed window.
Bedroom 1
3.82m max x 3.35m
A double main bedroom, having a central heating radiator and a double glazed window to the front.
Bedroom 2
3.32m max x 3.14m
A second double bedroom, with a double glazed window to the front and a radiator.
Bathroom
9'3" x 5'9" (2.81m x 1.76m)
A white four piece bathroom suite, comprising of a panelled bath, a corner shower cubicle, a low flush w/c and a pedestal wash hand basin with mixer tap. Part tiled walls, a central heating radiator, an extractor fan, radiator and a double glazed window.
Open Plan Kitchen / Lounge
6.75m max x 4.66m
Wonderful open plan kitchen living dining area, with surrounding double glazed windows, offering elevated views and two radiators. The kitchen area itself has built in wall and base level units, providing cupboard and drawer space, roll top work surface, incorporating a sink drainer with mixer tap. A built in oven and gas hob with an extractor over and space for a fridge freezer.
Tenure
Leasehold 125yrs Expires 01/01/2030
EPC Rating
C Rated
IMPORTANT NOTE TO POTENTIAL PURCHASERS:
We endeavour to make our particulars accurate and reliable, however, they do not constitute or form part of an offer or any contract and none is to be relied upon as statements of representation or fact. The services, systems and appliances listed in this specification have not been tested by us and no guarantee as to their operating ability or efficiency is given. All photographs and measurements have been taken as a guide only and are not precise. Floor plans where included are not to scale and accuracy is not guaranteed. If you require clarification or further information on any points, please contact us, especially if you are travelling some distance to view. Fixtures and fittings other than those mentioned are to be agreed with the seller.
Farnley Road, Woodfield Plantation, South Yorkshire, DN4
Additional Information
-
Property refDON251527
-
EPCC
-
TenureLeasehold
-
Lease length103 years
-
Council TaxA
-
Local authorityDoncaster Council
-
Ground Rent£50
-
Ground Rent Review01/01/2030
-
Service ChargeContact the branch
Similar properties for sale by Your Move Doncaster
Useful utility area, having a roll top work surface with tiled splashback, with plumbing and space for a washing machine and dryer. A wall mounted central heating boiler and a double glazed window.
A double main bedroom, having a central heating radiator and a double glazed window to the front.
A second double bedroom, with a double glazed window to the front and a radiator.
The pin shows the exact address of the property
Energy Efficiency Rating
Very energy efficient - lower running costs
Not energy efficient - higher running costs
Current
78Potential
80CO2 Rating
Very energy efficient - lower running costs
Not energy efficient - higher running costs
