This calculator provides a guide to the amount of residential stamp duty you may pay and does not guarantee this will be the actual cost. This calculation is based on the Stamp Duty Land Tax Rates for residential properties purchased from 23rd September 2022 and second homes from 31st October 2024. For more information on Stamp Duty Land Tax, click here.
2 bedroom Flat for sale, Grenaby Way, Murton, Durham, SR7
Features and Description
- First Floor Apartment
- Resident Parking
- Close To Local Amenities
- EPC Grade C
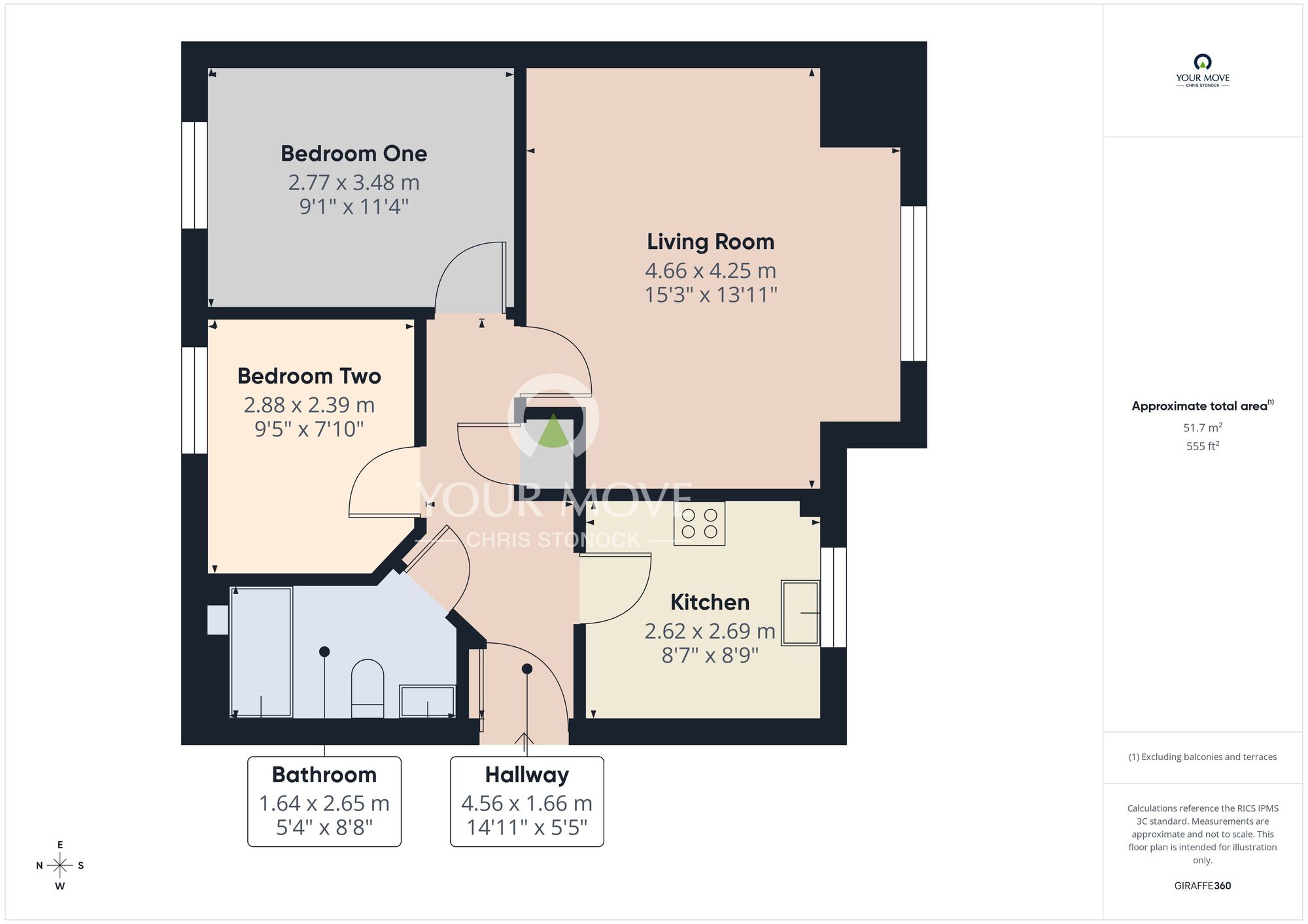
- 55 sq m / 592 sq ft Floor Area
- Council Tax Band A, Durham Council
A well presented first floor apartment situated on Grenaby Way in Murton, offered for sale with no onward chain.
The property briefly comprises an entrance hall leading to a fitted kitchen with a range of wall and base units. The spacious lounge provides a comfortable living area. The bathroom features a bath with a fitted shower screen and shower over the bath.
There are two double bedrooms, both benefiting from fitted wardrobes, offering excellent storage space.
This property is ideal for a range of buyers and is available with no onward chain, making for a straightforward purchase.
We believe property is leasehold.
Lounge
13'11" x 15'3" (4.24m x 4.65m)
Kitchen
8'7" x 8'9" (2.62m x 2.67m)
Bathroom
5'4" x 8'8" (1.63m x 2.64m)
Bedroom 1
9'1" x 11'4" (2.77m x 3.45m)
Bedroom 2
9'5" x 7'10" (2.87m x 2.40m)
IMPORTANT NOTE TO POTENTIAL PURCHASERS:
We endeavour to make our particulars accurate and reliable, however, they do not constitute or form part of an offer or any contract and none is to be relied upon as statements of representation or fact. The services, systems and appliances listed in this specification have not been tested by us and no guarantee as to their operating ability or efficiency is given. All photographs and measurements have been taken as a guide only and are not precise. Floor plans where included are not to scale and accuracy is not guaranteed. If you require clarification or further information on any points, please contact us, especially if you are travelling some distance to view. Fixtures and fittings other than those mentioned are to be agreed with the seller.
Grenaby Way, Murton, Durham, SR7
Additional Information
-
Property refSUN260086
-
EPCB
-
TenureLeasehold
-
Lease length128 years
-
Council TaxC
-
Local authorityDurham Council Council
-
Ground Rent£155
-
Ground Rent ReviewContact the branch
-
Service Charge£1,559
Similar properties for sale by Your Move Sunderland
The pin shows the exact address of the property
Energy Efficiency Rating
Very energy efficient - lower running costs
Not energy efficient - higher running costs
Current
81Potential
81CO2 Rating
Very energy efficient - lower running costs
Not energy efficient - higher running costs
