This calculator provides a guide to the amount of residential stamp duty you may pay and does not guarantee this will be the actual cost. This calculation is based on the Stamp Duty Land Tax Rates for residential properties purchased from 23rd September 2022 and second homes from 31st October 2024. For more information on Stamp Duty Land Tax, click here.
2 bedroom Flat for sale, Haccombe House, Newton Abbot, Devon, TQ12
Features and Description
Converted in the 1980s, there are 27 apartments within Haccombe House, and this spacious ground floor apartment is situated to the rear of the building. With high ceilings and large sash windows, this two-bedroom apartment also benefits from a spacious reception hallway, a modern fitted kitchen and light and airy lounge/diner. There is a allocated parking space and access to communal gardens.
The property would suit a variety of buyers and make an ideal investment for letting or a second home.
This attractively priced home must be viewed to appreciate the idyllic location and accommodation on offer.
Lease - 999 years from 25th March 1982.
£25.00 per year Ground Rent.
£224.00 per month Service Charge.
Pets will also be considered with permission from the Freeholder.
Auction:
This property is for sale by Modern Method of Auction allowing the buyer and seller to complete within a 56 Day Reservation
Period. Interested parties’ personal data will be shared with the Auctioneer (iamsold Ltd).
If considering a mortgage, inspect and consider the property carefully with your lender before bidding. A Buyer Information
Pack is provided, which you must view before bidding. The buyer is responsible for the Pack fee. For the most recent
information on the Buyer Information Pack fee, please contact the iamsold team.
The buyer signs a Reservation Agreement and makes payment of a Non-Refundable Reservation Fee of 4.5% of the purchase
price inc VAT, subject to a minimum of £6,600 inc. VAT. This Fee is paid to reserve the property to the buyer during the
Reservation Period and is paid in addition to the purchase price. The Fee is considered within calculations for stamp duty.
Services may be recommended by the Agent/Auctioneer in which they will receive payment from the service provider if the
service is taken. Payment varies but will be no more than £960 inc. VAT. These services are optional.
Location
Haccombe is a small picturesque hamlet within the heart of the countryside with a small 14th century church on the edge of the communal gardens. The highly sought-after village of Combeinteignhead is close-by with a village shop, primary school and a popular public house/restaurant. The pretty coastal towns of Teignmouth and Shaldon, along with the larger market town of Newton Abbot, are within a short drive with an abundance of shopping and leisure facilities and good transport links via the A380 linking to the M5 and a mainline railway station with services to Manchester, Edinburgh and the capital.<br /> The Apartment is within catchment of outstanding local Primary schools such as Stokenteignhead and Shaldon, both achieving good and outstanding Ofsted reports respectively.
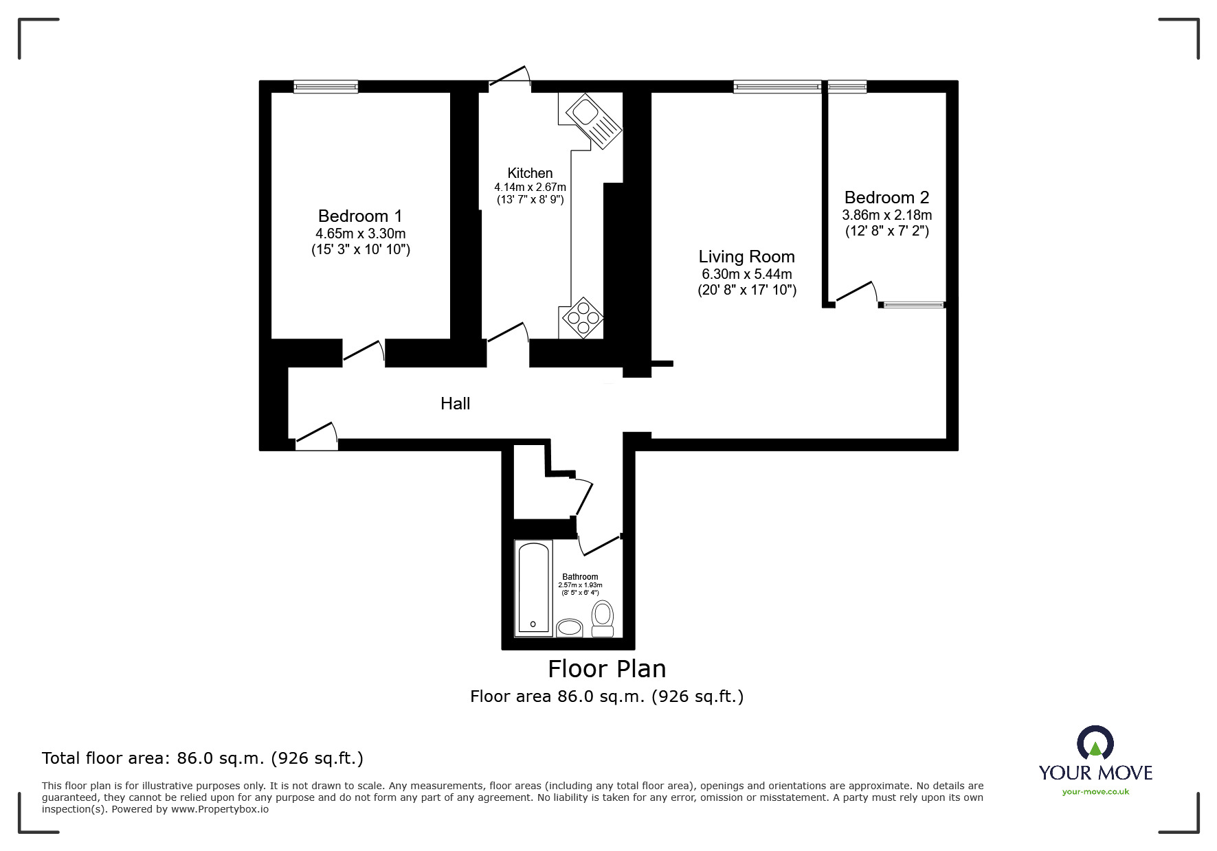
Entrance Hall
5'1" x 21'9" (1.55m x 6.63m)
Kitchen
13'7" x 8'9" (4.14m x 2.67m)
Living / Dining Area
20'8" x 17'10" (6.30m x 5.44m)
Main Bedroom
15'1" x 10'9" (4.60m x 3.28m)
Bedroom 2
12'8" x 7'2" (3.86m x 2.18m)
Bathroom
6'4" x 8'5" (1.93m x 2.57m)
IMPORTANT NOTE TO POTENTIAL PURCHASERS:
We endeavour to make our particulars accurate and reliable, however, they do not constitute or form part of an offer or any contract and none is to be relied upon as statements of representation or fact. The services, systems and appliances listed in this specification have not been tested by us and no guarantee as to their operating ability or efficiency is given. All photographs and measurements have been taken as a guide only and are not precise. Floor plans where included are not to scale and accuracy is not guaranteed. If you require clarification or further information on any points, please contact us, especially if you are travelling some distance to view. Fixtures and fittings other than those mentioned are to be agreed with the seller.
Haccombe House, Newton Abbot, Devon, TQ12
Additional Information
-
Property refNEA260037
-
TenureLeasehold
-
Lease length957 years
-
Council TaxB
-
Local authorityTeignbridge Council
-
Ground Rent£25
-
Ground Rent ReviewContact the branch
-
Service Charge£2,768
Similar properties for sale by Your Move Newton Abbot
The pin shows the exact address of the property
Energy Efficiency Rating
Very energy efficient - lower running costs
Not energy efficient - higher running costs
Current
N/APotential
N/ACO2 Rating
Very energy efficient - lower running costs
Not energy efficient - higher running costs
