This calculator provides a guide to the amount of residential stamp duty you may pay and does not guarantee this will be the actual cost. This calculation is based on the Stamp Duty Land Tax Rates for residential properties purchased from 23rd September 2022 and second homes from 31st October 2024. For more information on Stamp Duty Land Tax, click here.
1 bedroom Flat for sale, Lucerna Court, Bradbrook Drive, Kent, DA3
Features and Description
- Chain Free
- Walking Distance to the Shops
- Walking Distance to the Station
- Opportunity for Shared Ownership
- Excellent Condition
- Stunning Views
- Ready to Move In
This well-presented 1-bedroom flat is **for sale** in the popular village setting of Longfield. Built in 2012 and owned by just one careful owner, the property has been very well looked after and offers an immaculate modern home with an EPC rating of **B** and Council Tax band **C**. The flat also benefits from a dedicated parking space plus visitors’ parking, as well as attractive views over the nearby gallops.
Inside, the property includes a comfortable reception room, ideal as a combined living and dining space.
Longfield village is within walking distance, offering a range of everyday amenities including cafés, supermarkets, a doctors’ surgery and a chemist. The nearby countryside and open spaces provide pleasant walking routes, making the most of the semi-rural surroundings.
Longfield’s mainline train station is also easily accessible on foot, providing services to London Victoria, typically in around 30–40 minutes, and to other Kent destinations such as Rochester and Gillingham. This makes the flat a practical option for commuters who want village living with convenient rail links.
There is an opportunity to purchase the property on a **60% shared ownership** basis with Moat Housing, which may particularly appeal to first-time buyers. The flat could also suit buyers looking for an investment property in a well-connected Kent village location.
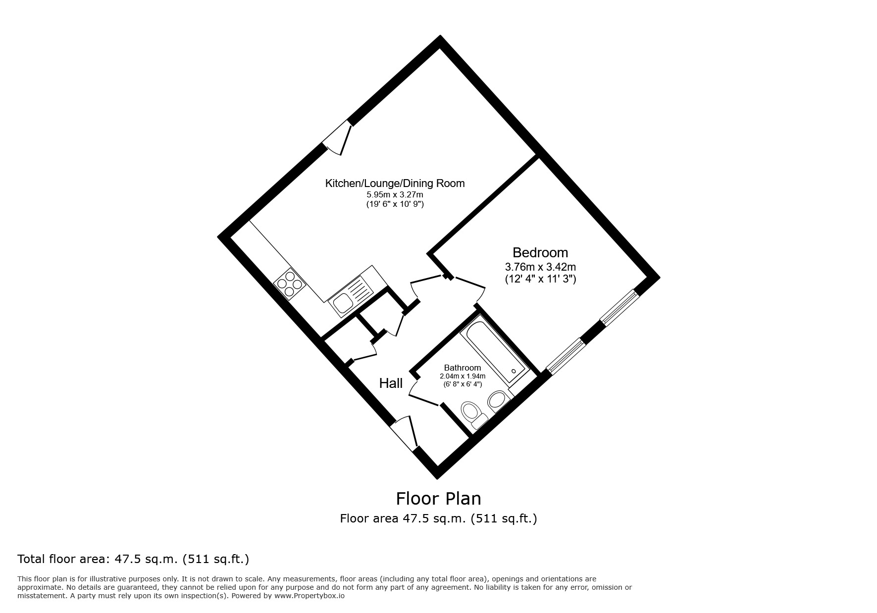
Lounge / Dining Room
19'6" x 10'9" (5.95m x 3.27m)
Bedroom
12'4" x 11'3" (3.76m x 3.42m)
Bathroom
6'8" x 6'4" (2.04m x 1.94m)
IMPORTANT NOTE TO POTENTIAL PURCHASERS:
We endeavour to make our particulars accurate and reliable, however, they do not constitute or form part of an offer or any contract and none is to be relied upon as statements of representation or fact. The services, systems and appliances listed in this specification have not been tested by us and no guarantee as to their operating ability or efficiency is given. All photographs and measurements have been taken as a guide only and are not precise. Floor plans where included are not to scale and accuracy is not guaranteed. If you require clarification or further information on any points, please contact us, especially if you are travelling some distance to view. Fixtures and fittings other than those mentioned are to be agreed with the seller.
Lucerna Court, Bradbrook Drive, Kent, DA3
Additional Information
-
Property refLON260049
-
EPCB
-
TenureLeasehold
-
Lease length111 years
-
Council TaxC
-
Local authorityDartford Borough Council
-
Ground RentContact the branch
-
Ground Rent ReviewContact the branch
-
Service Charge£1,732
Similar properties for sale by Your Move Longfield
The pin shows the exact address of the property
Energy Efficiency Rating
Very energy efficient - lower running costs
Not energy efficient - higher running costs
Current
82Potential
82CO2 Rating
Very energy efficient - lower running costs
Not energy efficient - higher running costs
