This calculator provides a guide to the amount of residential stamp duty you may pay and does not guarantee this will be the actual cost. This calculation is based on the Stamp Duty Land Tax Rates for residential properties purchased from 23rd September 2022 and second homes from 31st October 2024. For more information on Stamp Duty Land Tax, click here.
3 bedroom Flat for sale, Wimbledon Street, Leicester, Leicestershire, LE1
Features and Description
- 3 Bedroom Apartment
- Sold with No Onward Chain!
- Ideally Located in Leicester's Cultural Quarter
- Master Bedroom with En-Suite
- Open Plan Kitchen/Living/Diner
- Under Croft Allocated Parking Space
- Early Viewing Highly Recommended!
For sale is this stunningly appointed, 3-bedroom apartment, ideally positioned within the heart of Leicester city's Cultural Quarter. The property is presented in good condition, ready to welcome a range of buyers looking for a city centre location with a plethora of local amenities and excellent public transport links on the doorstep.
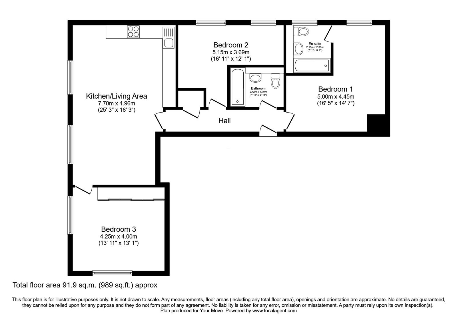
The accommodation comprises three double bedrooms, two bathrooms, an open-plan lounge and a kitchen/diner. The master bedroom benefits from an en-suite, while the second bedroom boasts built-in wardrobes and dual aspect windows. The two bathrooms are fully equipped, each featuring a bath with shower over, WC, and hand basin.
The heart of this home is the spacious open-plan living area. Ample natural light floods the contemporary kitchen, which is equipped with a kitchen island with breakfast bar, wall and base units, a wine cooler, an electric oven, induction hob, a washing machine and integrated dishwasher, microwave and fridge/freezer.
Notable features of this property include allocated under croft parking, ensuring a hassle-free city living experience, and large windows providing fabulous city views. Notably, the property is sold with no chain, facilitating a smooth transaction process.
With an EPC rating of D and council tax band D, this property combines style, comfort, and practicality in a prime city location. Experience the vibrant urban life in a home that delivers on all fronts, call us now to arrange your viewing!
Kitchen / Lounge / Diner
25'0" x 16'0" (7.62m x 4.88m)
Bedroom 1
16'0" x 14'12" (4.88m x 4.57m)
En-Suite
7'11" x 6'6" (2.41m x 1.98m)
Bedroom 2
12'12" x 12'0" (3.96m x 3.66m)
Bedroom 3
16'0" x 12'12" (4.88m x 3.96m)
Bathroom
6'12" x 6'0" (2.13m x 1.83m)
IMPORTANT NOTE TO POTENTIAL PURCHASERS:
We endeavour to make our particulars accurate and reliable, however, they do not constitute or form part of an offer or any contract and none is to be relied upon as statements of representation or fact. The services, systems and appliances listed in this specification have not been tested by us and no guarantee as to their operating ability or efficiency is given. All photographs and measurements have been taken as a guide only and are not precise. Floor plans where included are not to scale and accuracy is not guaranteed. If you require clarification or further information on any points, please contact us, especially if you are travelling some distance to view. Fixtures and fittings other than those mentioned are to be agreed with the seller.
Wimbledon Street, Leicester, Leicestershire, LE1
Additional Information
-
Property refLEC260133
-
EPCD
-
TenureLeasehold
-
Lease length103 years
-
Council TaxD
-
Local authorityLeicester City Council
-
Ground Rent£150
-
Ground Rent ReviewContact the branch
-
Service Charge£3,519
Similar properties for sale by Your Move Leicester
The pin shows the exact address of the property
Energy Efficiency Rating
Very energy efficient - lower running costs
Not energy efficient - higher running costs
Current
65Potential
75CO2 Rating
Very energy efficient - lower running costs
Not energy efficient - higher running costs
