1 bedroom Flat to rent, 27 St. Pauls Road, St. Leonards-On-Sea, East Sussex, TN37
Available Unfurnished, from 16/01/2026
Features and Description
- One Double Bedroom First Floor Flat
- Gas Central Heating And Double Glazing
- Redecorated Throughout
- Well Presented
- Spacious Accommodation
- Close To Shopping Facilities
- EPC Rating C
- Council Tax Band A
This well presented first floor flat has been redecorated throughout in a white theme. Benefitting from the comforts of Gas Central Heating and Double Glazing, the spacious accommodation comprises a generous sized Living Room with bay window, allowing plenty of light to flood in; Kitchen with built in electric oven and gas hob, Double Bedroom and Shower Room/WC, complimented by a Heated Towel Rail.
Early viewing is essential to avoid missing out.
Location
Situated approximately one mile from Hastings Town Centre, this flat is also conveniently located close to local everyday shops and amenities, to include Summerfields Leisure Centre and LIDL Superstore in Bohemia Road, and ASDA Superstore in Silverhill. <br /> The nearby main bus route offers regular services running into Hastings Town Centre and surrounding areas.
Communal Entrance
Entrance door to:
Entrance Hall
Stairs rising to upper hallway. Radiator, telephone point.
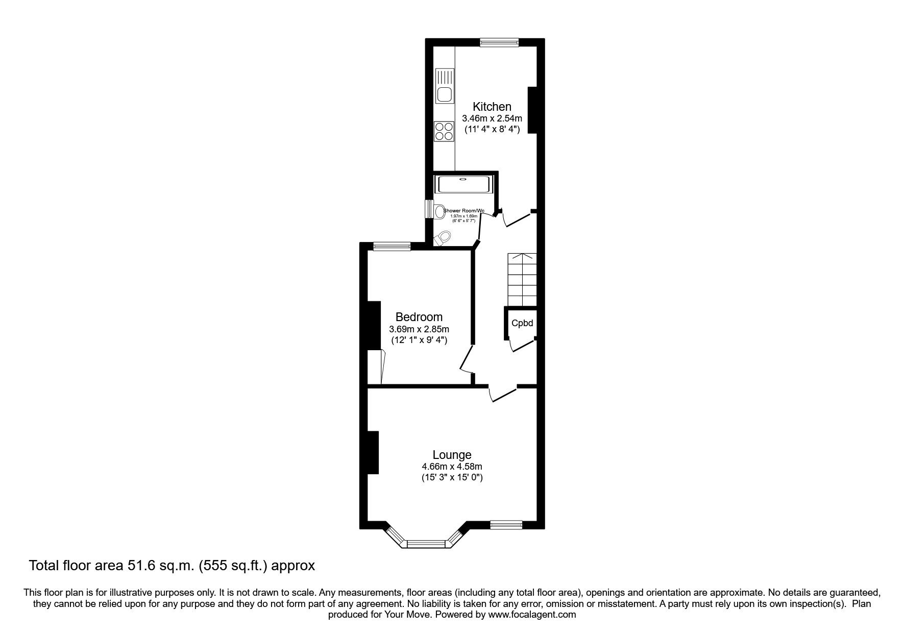
Lounge
15'3" x 14'12" (4.65m x 4.57m)
Double Glazed Window to front aspect, radiator, TV aerial point.
Kitchen
11'4" x 8'4" (3.45m x 2.54m)
Fitted with a range of wall and base storage cupboard units with working surfaces over, inset sink and drainer unit with mixer taps, inset electric hob with electric built-in oven under, wall mounted central heating boiler, radiator.
Bedroom
12'1" x 9'4" (3.68m x 2.84m)
Double Glazed Window to rear aspect, feature fireplace, recess cupboard, radiator.
Shower Room / WC
6'6" x 5'7" (1.98m x 1.70m)
Tiled quadrant shower enclosure, vanity wash hand basin unit, low level Wc, Heated Towel Rail, wall mounted mirror door cabinet with LED touch light and electric shaver point inside, extractor fan, Double Glazed Window to side aspect.
IMPORTANT NOTE TO POTENTIAL RENTERS:
We endeavour to make our particulars accurate and reliable, however, they do not constitute or form part of an offer or any contract and none is to be relied upon as statements of representation or fact. The services, systems and appliances listed in this specification have not been tested by us and no guarantee as to their operating ability or efficiency is given. All photographs and measurements have been taken as a guide only and are not precise. Floor plans where included are not to scale and accuracy is not guaranteed. If you require clarification or further information on any points, please contact us, especially if you are travelling some distance to view.
All properties are available for a minimum length of time, with the exception of short term accommodation. Please contact the branch for details. A security deposit of at least one month’s rent is required. Rent is to be paid one month in advance. It is the tenant’s responsibility to insure any personal possessions. Payment of all utilities including water rates or metered supply and Council Tax is the responsibility of the tenant in every case.
27 St. Pauls Road, St. Leonards-On-Sea, East Sussex, TN37
Fitted with a range of wall and base storage cupboard units with working surfaces over, inset sink and drainer unit with mixer taps, inset electric hob with electric built-in oven under, wall mounted central heating boiler, radiator.
Double Glazed Window to rear aspect, feature fireplace, recess cupboard, radiator.
The pin shows the exact address of the property
Energy Efficiency Rating
Very energy efficient - lower running costs
Not energy efficient - higher running costs
Current
72Potential
78CO2 Rating
Very energy efficient - lower running costs
Not energy efficient - higher running costs
