1 bedroom Flat to rent, Langton Road, Langton Green, Kent, TN3
Available Unfurnished, from 06/02/2026
Features and Description
- Own Entrance
- Desirable Village Location
- Walking distance to shops and local amenities.
- Freshly decorated
- Appliances available upon request
- Front Garden
We are delighted to present to the rental market this neutrally decorated one-bedroom flat. The property boasts an open-plan design, allowing for a seamless blend of living and dining spaces, making it an ideal choice for couples or individuals seeking a harmonious living experience.
Entering the property, one is greeted by a sizeable reception room adorned with wood floors and large windows that flood the room with an abundance of natural light. This open and airy space provides a pleasing environment for relaxation or entertaining guests.
The property features a spacious kitchen, complete with dining space and a range of contemporary appliances can be provided. The open-plan configuration allows for easy interaction and a comfortable flow between the kitchen, dining, and living areas.
Accommodation comprises a double bedroom that exudes a calming atmosphere, thanks to its neutral décor and natural light. A full bathroom complete with a shower over the bath adds to the overall comfort and convenience of the property.
One of the unique features of this property is its tranquil front garden, a delightful outdoor space perfect for enjoying the peaceful surroundings.
Situated in a quiet village, the property is ideally positioned for enjoying local amenities, green spaces, walking routes, and cycling routes. This peaceful setting, coupled with the property's appealing features, ensures an excellent quality of life for its inhabitants.
In summary, this flat offers an open-plan living space in a serene and desirable location. Please contact us to arrange a viewing.
Security Deposit: £1096.00 Holding Deposit: £219.00 EPC Grade: TBC. Council Tax Band B.
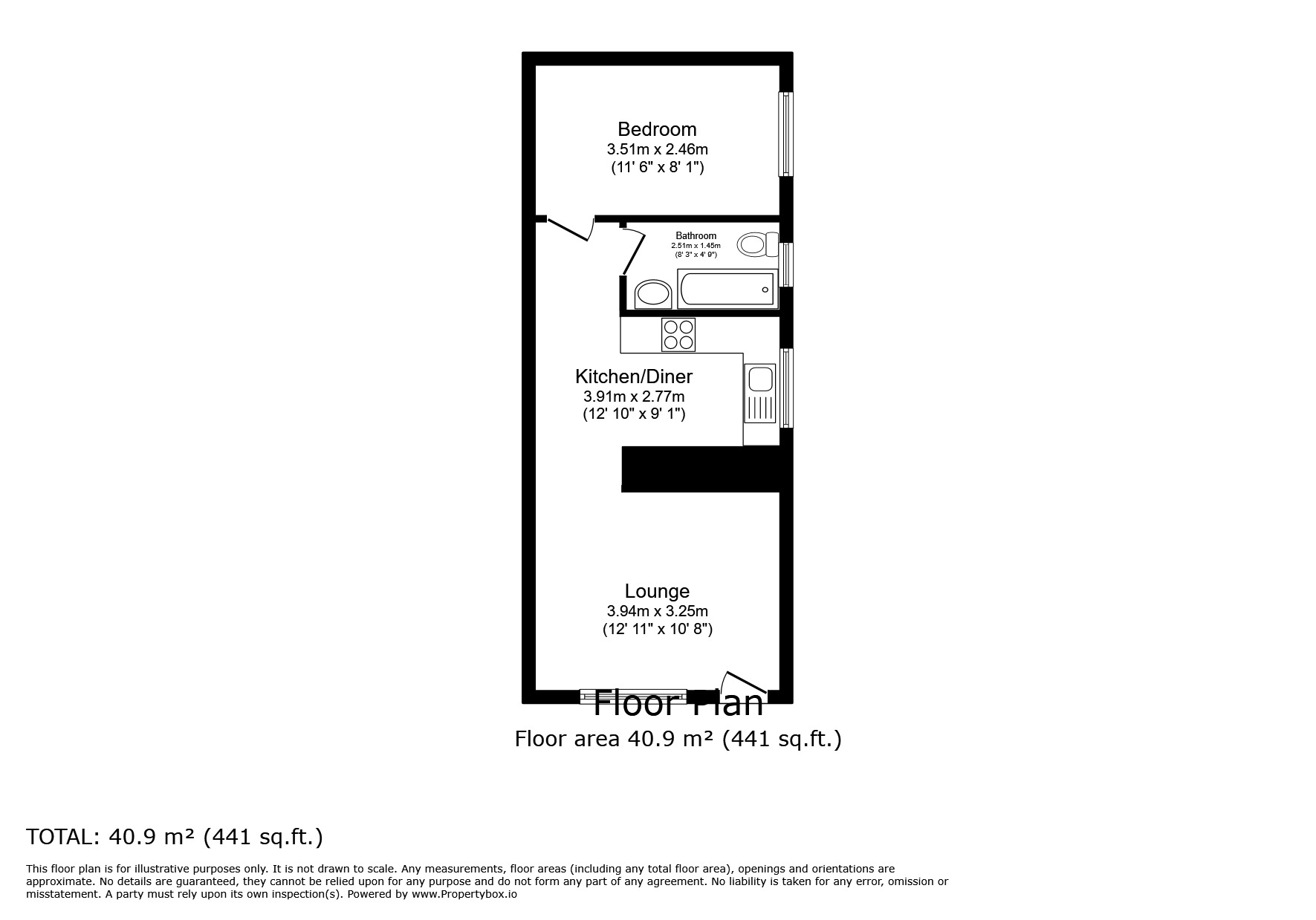
Living Room
12.11 x 10.08
Kitchen Dining Room
12.10 x 9.01
Bathroom
7.03 x 4.09
Bedroom
11.06 x 8.01
IMPORTANT NOTE TO POTENTIAL RENTERS:
We endeavour to make our particulars accurate and reliable, however, they do not constitute or form part of an offer or any contract and none is to be relied upon as statements of representation or fact. The services, systems and appliances listed in this specification have not been tested by us and no guarantee as to their operating ability or efficiency is given. All photographs and measurements have been taken as a guide only and are not precise. Floor plans where included are not to scale and accuracy is not guaranteed. If you require clarification or further information on any points, please contact us, especially if you are travelling some distance to view.
All properties are available for a minimum length of time, with the exception of short term accommodation. Please contact the branch for details. A security deposit of at least one month’s rent is required. Rent is to be paid one month in advance. It is the tenant’s responsibility to insure any personal possessions. Payment of all utilities including water rates or metered supply and Council Tax is the responsibility of the tenant in every case.
Langton Road, Langton Green, Kent, TN3
Additional Information
-
Property refTUN240384
-
EPCC
-
Council TaxB
-
Local authorityTunbridge Wells Borough Council
Your Move Letting Agents Tunbridge Wells
Rental Tools
Similar properties to rent by Your Move Tunbridge Wells
The pin shows the exact address of the property
Energy Efficiency Rating
Very energy efficient - lower running costs
Not energy efficient - higher running costs
Current
72Potential
76CO2 Rating
Very energy efficient - lower running costs
Not energy efficient - higher running costs
