This calculator provides a guide to the amount of residential stamp duty you may pay and does not guarantee this will be the actual cost. This calculation is based on the Stamp Duty Land Tax Rates for residential properties purchased from 23rd September 2022 and second homes from 31st October 2024. For more information on Stamp Duty Land Tax, click here.
1 bedroom House for sale, Mill Meadow, Kingsthorpe, Northampton, NN2
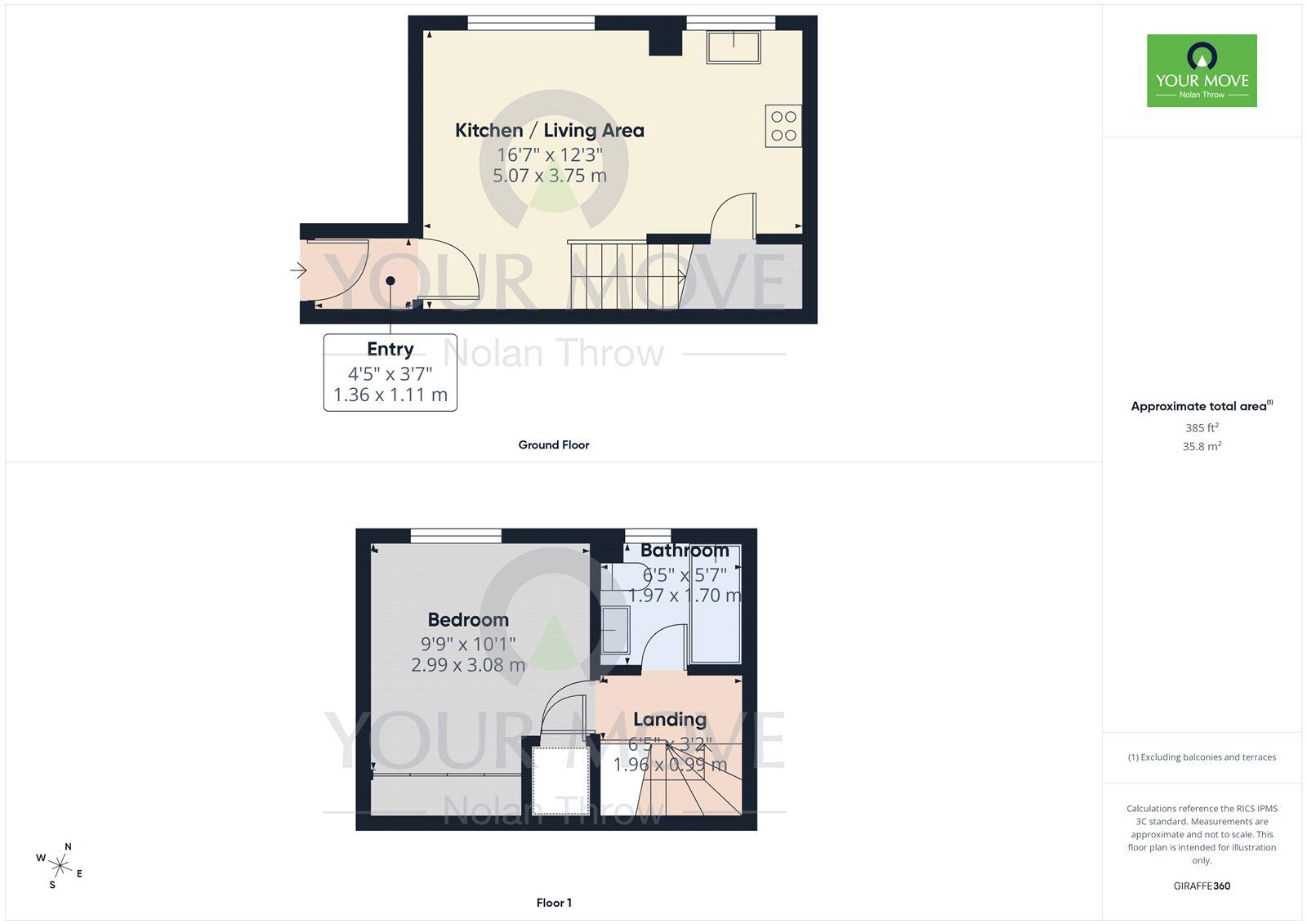
Features and Description
- No onward chain
- Gas Central Heating
- Allocated Parking
- Local Amenities
- Fitted Kitchen
- Double Bedroom
- Double Glazed
Offered to the market with no onward chain, this well-presented one-bedroom cluster home is situated in the quiet and highly sought-after area of Kingsthorpe.
Internally, the property offers a bright and spacious open-plan kitchen, sitting, and dining area, creating a versatile living space. To the first floor, there is a generous double bedroom with fitted wardrobes, along with a well-appointed bathroom.
Externally, the property benefits from off-road parking.
IMPORTANT NOTE TO POTENTIAL PURCHASERS:
We endeavour to make our particulars accurate and reliable, however, they do not constitute or form part of an offer or any contract and none is to be relied upon as statements of representation or fact. The services, systems and appliances listed in this specification have not been tested by us and no guarantee as to their operating ability or efficiency is given. All photographs and measurements have been taken as a guide only and are not precise. Floor plans where included are not to scale and accuracy is not guaranteed. If you require clarification or further information on any points, please contact us, especially if you are travelling some distance to view. Fixtures and fittings other than those mentioned are to be agreed with the seller.
Mill Meadow, Kingsthorpe, Northampton, NN2
Additional Information
-
Property refQKI260099
-
EPCC
-
TenureFreehold
-
Council TaxB
-
Local authorityWest Northamptonshire Council
Similar properties for sale by Your Move Kingsthorpe
The pin shows the exact address of the property
Energy Efficiency Rating
Very energy efficient - lower running costs
Not energy efficient - higher running costs
Current
72Potential
73CO2 Rating
Very energy efficient - lower running costs
Not energy efficient - higher running costs
