This calculator provides a guide to the amount of residential stamp duty you may pay and does not guarantee this will be the actual cost. This calculation is based on the Stamp Duty Land Tax Rates for residential properties purchased from 23rd September 2022 and second homes from 31st October 2024. For more information on Stamp Duty Land Tax, click here.
3 bedroom Mid Terrace House for sale, Belford Close, Wallsend, Tyne and Wear, NE28
Features and Description
- Three Bedroom Mid Terrace Town House
- Popular Location
- Well Presented
- Approx. SQ M 89
- North Tyneside Council Tax Band A
- EPC Grade C
Introducing this charming mid-terraced three bedroom house, a perfect blend of modern convenience and traditional charm. Step inside to discover a bright and homely living space, ideal for creating wonderful memories with your loved ones. Offered chain free the property boasts a garage/driveway offering convenient parking and storage solutions. Situated in a sought-after neighbourhood, this property offers easy access to local amenities, schools, and transport links, making it an ideal choice for families or professionals seeking a comfortable and convenient lifestyle. Don't miss this opportunity to make this delightful property your new home. Contact us today to arrange a viewing and start picturing yourself living in this wonderful abode.
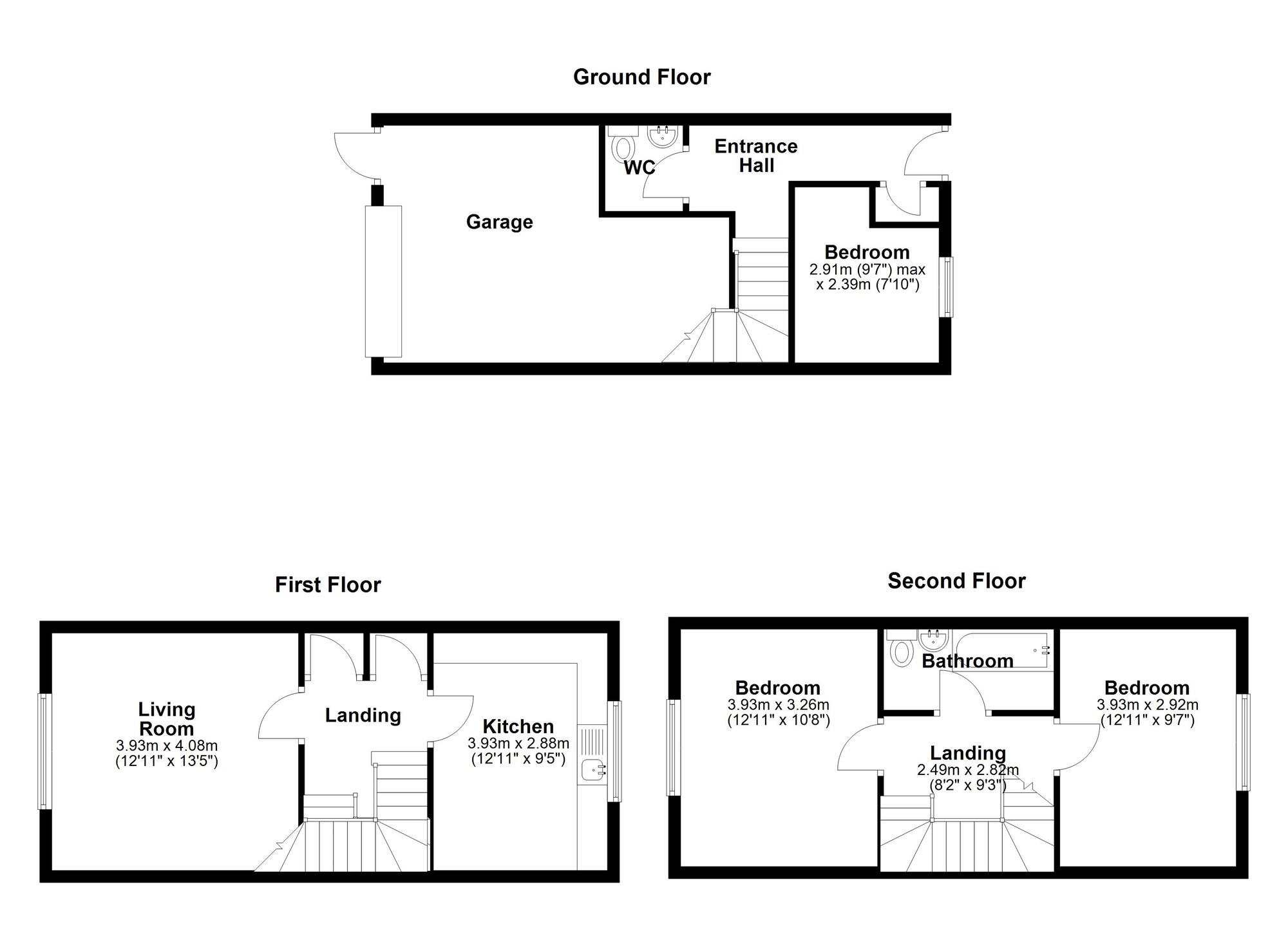
To the ground floor this property comprises, entrance hallway, bedroom with built in storage, WC/Cloakroom and access to the integrated garage.
The first floor has ample built in storage on the landing, spacious lounge and kitchen/diner with fitted floor and wall units as well as an integrated gas hob/oven.
To the second floor there are two double bedrooms, and a family bathroom with shower over bath, WC and hand wash basin.
Freehold
North Tyneside Council Tax Band A
EPC Grade C
Bedroom 3
9'7" x 7'10" (2.91m x 2.38m)
WC / Cloakroom
4'4" x 4'7" (1.31m x 1.40m)
Lounge
13'5" x 12'11" (4.08m x 3.93m)
Kitchen
9'5" x 12'10" (2.88m x 3.91m)
Bedroom 1
10'8" x 12'12" (3.26m x 3.96m)
Bedroom 2
9'7" x 12'11" (2.92m x 3.94m)
Bathroom
4'5" x 9'3" (1.34m x 2.82m)
IMPORTANT NOTE TO POTENTIAL PURCHASERS:
We endeavour to make our particulars accurate and reliable, however, they do not constitute or form part of an offer or any contract and none is to be relied upon as statements of representation or fact. The services, systems and appliances listed in this specification have not been tested by us and no guarantee as to their operating ability or efficiency is given. All photographs and measurements have been taken as a guide only and are not precise. Floor plans where included are not to scale and accuracy is not guaranteed. If you require clarification or further information on any points, please contact us, especially if you are travelling some distance to view. Fixtures and fittings other than those mentioned are to be agreed with the seller.
Belford Close, Wallsend, Tyne and Wear, NE28
Additional Information
-
Property refWSD260091
-
EPCC
-
TenureFreehold
-
Council TaxA
-
Local authorityNorth Tyneside Council
The pin shows the exact address of the property
Energy Efficiency Rating
Very energy efficient - lower running costs
Not energy efficient - higher running costs
Current
75Potential
82CO2 Rating
Very energy efficient - lower running costs
Not energy efficient - higher running costs
