This calculator provides a guide to the amount of residential stamp duty you may pay and does not guarantee this will be the actual cost. This calculation is based on the Stamp Duty Land Tax Rates for residential properties purchased from 23rd September 2022 and second homes from 31st October 2024. For more information on Stamp Duty Land Tax, click here.
3 bedroom Mid Terrace House for sale, Crindledyke Estate, Kingstown, Cumbria, CA6
Features and Description
- Easy access to Motorway M6 junction 44
- Close to many amenities, shops and supermarkets
- Living Room
- Separate Kitchen
- Utility Room
- Conservatory
- Modern Family Bathroom
- On street parking and additional parking area
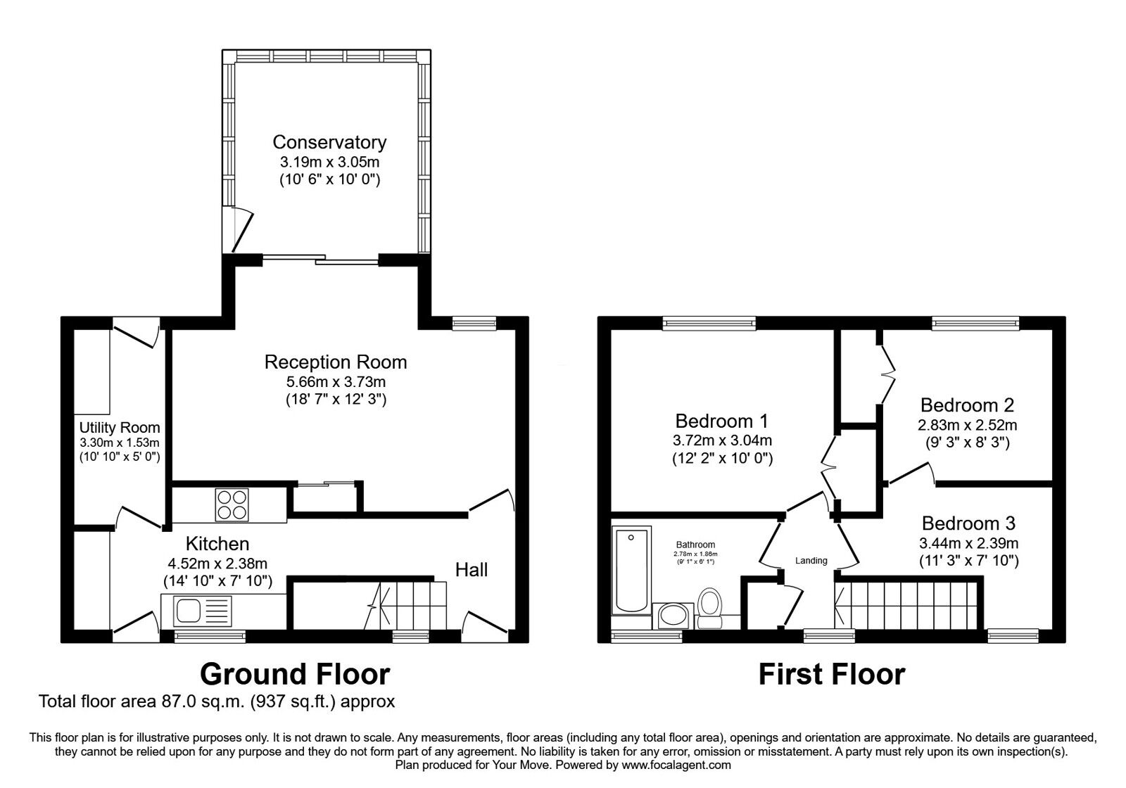
Three bedroom mid terrace property situated on Crindledyke Estate, North Carlisle. The accommodation offers entrance hallway, living room, kitchen, utility room and conservatory. The first floor has three bedrooms and family bathroom. Externally, there is a low maintenance front garden and on-street parking, with land directly opposite the property providing additional parking. To the rear is a low maintenance garden. IDEAL FOR FIRST TIME BUYERS, CLOSE TO AMENITIES AND MOTORWAY.
Entrance Hall
With neutral décor, under stair storage cupboard and access to all ground floor rooms.
Living Room
18'7" x 12'3" (5.66m x 3.73m)
Positioned at the rear of the property with electric fire, neutral décor and access to conservatory.
Kitchen
14'10" x 7'10" (4.52m x 2.38m)
Positioned at the front of the property, with a range of wall and base units, contrasting worktops, freestanding electric oven and hob, integral extractor hood, sink with mixer tap, space for slimline dishwasher, larder cupboard, partial wall tiling, doors to front of property and utility room.
Utility Room
10'10" x 5'0" (3.30m x 1.53m)
Accessed from the kitchen with spaces for fridge/freezer and tumble dryer, plumbing for washing machine, door with cat flap provides access to rear garden.
Conservatory
10'6" x 10'0" (3.19m x 3.05m)
Generous sized conservatory with floor tiling. Provides access to rear garden.
Landing
Incorporating cupboard with storage.
Primary Bedroom
12'2" x 9'12" (3.72m x 3.04m)
Positioned at the rear of the property, with storage space.
Bedroom 2
9'3" x 8'3" (2.83m x 2.52m)
Positioned at the rear of the property, currently dressed as children's room, with storage cupboard. Has door leading to bedroom 3.
Bedroom 3
11'3" x 7'10" (3.44m x 2.39m)
Positioned at the front of the property, currently dressed as a nursery. Has door leading to bedroom 2.
Bathroom
8'10" x 6'5" (2.70m x 1.95m)
Three piece white suite with bath, shower, vanity unit incorporating sink, WC, modern wall tiling and flooring.
External
To the front is a two-step access path, shared with No. 22, leading to kitchen door and low-maintenance gravelled garden, with additional steps leading to hallway entrance.There is on street parking, with the added benefit of land directly opposite the property which is shown on Land Registry plans. To the rear is a garden with patio, low maintenance gravel area and gate providing access to shared lane.
Additional
The property benefits from double glazing and gas heating.
IMPORTANT NOTE TO POTENTIAL PURCHASERS:
We endeavour to make our particulars accurate and reliable, however, they do not constitute or form part of an offer or any contract and none is to be relied upon as statements of representation or fact. The services, systems and appliances listed in this specification have not been tested by us and no guarantee as to their operating ability or efficiency is given. All photographs and measurements have been taken as a guide only and are not precise. Floor plans where included are not to scale and accuracy is not guaranteed. If you require clarification or further information on any points, please contact us, especially if you are travelling some distance to view. Fixtures and fittings other than those mentioned are to be agreed with the seller.
Agents are required by law to conduct Anti-Money Laundering checks on all buyers. Your Move Carlisle, Whitehaven and Wigton charge £30 including VAT per buyer. The charge covers the cost of obtaining and retaining relevant data from a third party. This fee is payable in advance prior to issuing a memorandum of sale and before the property can be sale agreed.
Crindledyke Estate, Kingstown, Cumbria, CA6
Additional Information
-
Property refCAR260010
-
EPCD
-
TenureFreehold
-
Council TaxA
-
Local authorityCumberland Council
With neutral décor, under stair storage cupboard and access to all ground floor rooms.
Positioned at the rear of the property with electric fire, neutral décor and access to conservatory.
Positioned at the front of the property, with a range of wall and base units, contrasting worktops, freestanding electric oven and hob, integral extractor hood, sink with mixer tap, space for slimline dishwasher, larder cupboard, partial wall tiling, doors to front of property and utility room.
Generous sized conservatory with floor tiling. Provides access to rear garden.
Positioned at the rear of the property, with storage space.
Positioned at the rear of the property, currently dressed as children's room, with storage cupboard. Has door leading to bedroom 3.
Three piece white suite with bath, shower, vanity unit incorporating sink, WC, modern wall tiling and flooring.
To the front is a two-step access path, shared with No. 22, leading to kitchen door and low-maintenance gravelled garden, with additional steps leading to hallway entrance.There is on street parking, with the added benefit of land directly opposite the property which is shown on Land Registry plans. To the rear is a garden with patio, low maintenance gravel area and gate providing access to shared lane.
The pin shows the exact address of the property
Energy Efficiency Rating
Very energy efficient - lower running costs
Not energy efficient - higher running costs
Current
63Potential
81CO2 Rating
Very energy efficient - lower running costs
Not energy efficient - higher running costs
