This calculator provides a guide to the amount of residential stamp duty you may pay and does not guarantee this will be the actual cost. This calculation is based on the Stamp Duty Land Tax Rates for residential properties purchased from 23rd September 2022 and second homes from 31st October 2024. For more information on Stamp Duty Land Tax, click here.
4 bedroom Mid Terrace House for sale, Fennel Close, Maidstone, Kent, ME16
Features and Description
- Three/Four-Bedroom Home
- Welcoming Entrance Hall
- Well-sized Kitchen
- Family Living Room
- Versatile First-Floor Room
- Main Bedroom Ensuite
- Family Bathroom
- Off-Street Parking
- Sought After Location
We are delighted to present this neutrally decorated terraced property, available for let. Located in a peaceful area near Maidstone Hospital, this property boasts walking and cycling routes, making it the perfect choice for those seeking a tranquil lifestyle.
The property comprises four well-proportioned double bedrooms, offering ample space for both families and sharers. With two bathrooms, the morning rush will be a thing of the past, promising a smooth start to your day. The property is also designed with a single reception room, perfect for relaxing or entertaining guests. The heart of the home, the kitchen, provides a great area for preparing meals and dining.
Additionally, the property is classified under council tax band E and has an EPC rating of C, indicating that it's relatively energy efficient, which could lead to lower utility bills.
One of the unique features of this property is the parking facility. Whether you own a vehicle or are considering purchasing one, this feature will certainly provide added convenience.
In conclusion, this property provides a perfect balance between a peaceful location and the convenience of modern living. Its neutral décor provides a blank canvas for you to make your mark and transform this house into a home. Don't miss this opportunity to live in a peaceful neighbourhood, with the convenience of local amenities nearby. Schedule a viewing today!
Location
Situated off a quiet culdesac, Fennel Close offers easy access to a range of local amenities, including shops, cafes and services, while Maidstone Hospital is within walking distance — a key benefit for many buyers. <br /> Transport links are strong: Barming station is nearby with rail services towards London, and the M20/M25 motorway network can be reached quickly for commuters.<br /> <br /> Families will appreciate the proximity to a selection of primary and secondary schools, and the area benefits from regular bus routes connecting to the wider Maidstone area and beyond. The town centre — with shopping at The Mall Maidstone and Fremlin Walk, restaurants, leisure facilities and cultural attractions — is a short drive away, adding to the convenience of living in this established suburban location.<br /> <br /> Overall, Fennel Close combines quieter residential living with easy access to key local conveniences and transport links, making it wellsuited to families, professionals and commuting buyers alike.
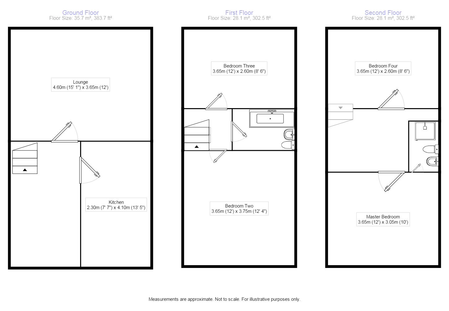
Kitchen
7'7" x 13'5" (2.30m x 4.10m)
Family Room
15'1" x 11'12" (4.60m x 3.65m)
Lounge / Bedroom 4
11'10" x 12'2" (3.60m x 3.70m)
Bedroom 1
11'12" x 10'0" (3.65m x 3.05m)
Bedroom 2
11'12" x 8'6" (3.65m x 2.60m)
Bedroom 3
11'12" x 8'6" (3.65m x 2.60m)
Service Charage
323.86 per annum
IMPORTANT NOTE TO POTENTIAL PURCHASERS:
We endeavour to make our particulars accurate and reliable, however, they do not constitute or form part of an offer or any contract and none is to be relied upon as statements of representation or fact. The services, systems and appliances listed in this specification have not been tested by us and no guarantee as to their operating ability or efficiency is given. All photographs and measurements have been taken as a guide only and are not precise. Floor plans where included are not to scale and accuracy is not guaranteed. If you require clarification or further information on any points, please contact us, especially if you are travelling some distance to view. Fixtures and fittings other than those mentioned are to be agreed with the seller.
Fennel Close, Maidstone, Kent, ME16
Additional Information
-
Property refMAI260017
-
EPCC
-
TenureFreehold
-
Council TaxE
-
Local authorityMaidstone Borough Council
Similar properties for sale by Your Move Maidstone
The pin shows the exact address of the property
Energy Efficiency Rating
Very energy efficient - lower running costs
Not energy efficient - higher running costs
Current
69Potential
83CO2 Rating
Very energy efficient - lower running costs
Not energy efficient - higher running costs
