This calculator provides a guide to the amount of residential stamp duty you may pay and does not guarantee this will be the actual cost. This calculation is based on the Stamp Duty Land Tax Rates for residential properties purchased from 23rd September 2022 and second homes from 31st October 2024. For more information on Stamp Duty Land Tax, click here.
2 bedroom Mid Terrace House for sale, Hillside Rise, Belper, Derbyshire, DE56
Features and Description
- Two Bedroom Terrace House
- Garage and Off Street Parking
- Kitchen Diner
- Easy Access to Belper Centre
- Viewings Advised
25 Hillside Drive, Belper is a well-presented home situated in a popular residential area of Belper, conveniently located for access into Belper centre. The property offers spacious and practical accommodation throughout, including a bright living room, a generous kitchen with ample space for a dining table, two well-proportioned double bedrooms and bathroom. Externally, the home benefits from a low-maintenance front garden, along with a driveway providing off-road parking and access to a detached garage. The property also offers potential for a loft conversion, subject to the necessary planning and building regulations consents, providing scope for future expansion.
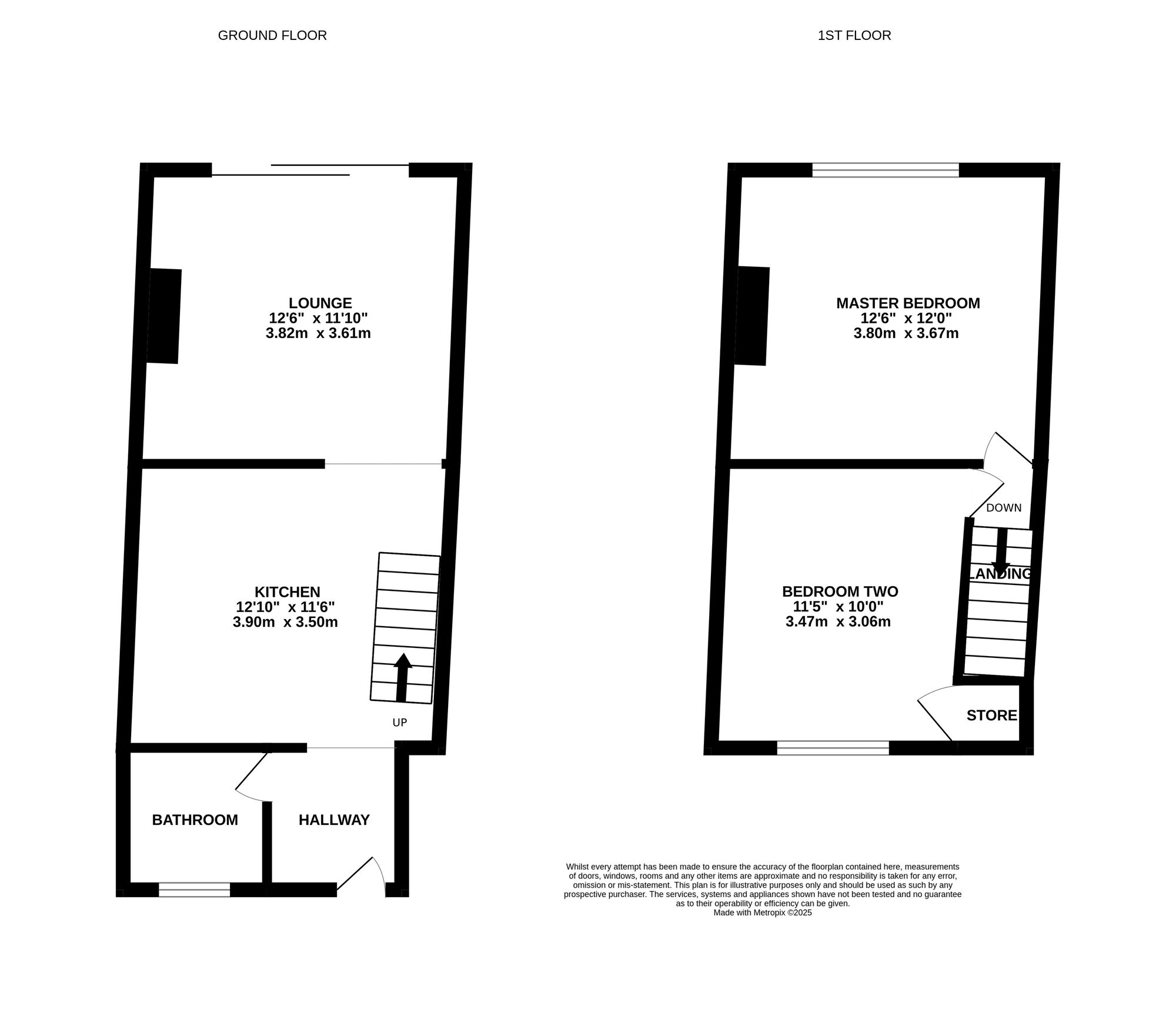
Entrance Hall
Access is gained via a front facing external door. Allowing access to the adjoining kitchen and bathroom.
Kitchen Diner
12'10" x 11'6" (3.90m x 3.50m)
Spacious and well-appointed kitchen fitted with a range of white fronted cabinetry, wood-effect work surfaces, and tiled splashbacks. Integrated appliances include an oven with extractor hood, complemented by ample storage and generous preparation space. The room benefits from wood-effect flooring and offers ample space for a dining table, making it ideal for everyday meals and entertaining. An open layout flows through an attractive archway into the adjoining living area, creating a practical and sociable heart of the home with excellent natural light.
Lounge
12'6" x 11'10" (3.82m x 3.61m)
Bright and inviting living space featuring a charming focal fireplace that will accommodate a free standing electric appliance and large sliding doors that flood the room with natural light. The neutral tones create a warm, welcoming atmosphere, complemented by well-proportioned seating areas. This versatile room offers ample space for relaxation or entertaining.
Bathroom
Bright and functional bathroom fitted with a white suite comprising a panelled bath with mixer tap and shower hose attachment over the bath, pedestal wash basin, and WC. The room features tiled walls around the bath area and benefits from a window providing natural light, along with mechanical ventilation.
Bedroom 1
12'6" x 12'8" (3.80m x 3.87m)
Spacious double bedroom offering a bright and airy feel, with a large window providing excellent natural light and pleasant outlooks over Belper , towards The Mill. The room benefits from neutral finishes, a radiator, and ample floor space for bedroom furniture.
Bedroom 2
3.47m x3.06m
Second double bedroom with a front facing window providing natural light. The room features neutral finishes, a radiator, and useful built-in storage, making it a practical and versatile bedroom.
External
Low-maintenance front garden featuring a combination of paved and gravelled areas, ideal for potted plants and easy upkeep.Detached garage with off-road parking to the front. The detached garage features an up-and-over door and is approached via a concrete driveway, offering practical parking and storage space
IMPORTANT NOTE TO POTENTIAL PURCHASERS:
We endeavour to make our particulars accurate and reliable, however, they do not constitute or form part of an offer or any contract and none is to be relied upon as statements of representation or fact. The services, systems and appliances listed in this specification have not been tested by us and no guarantee as to their operating ability or efficiency is given. All photographs and measurements have been taken as a guide only and are not precise. Floor plans where included are not to scale and accuracy is not guaranteed. If you require clarification or further information on any points, please contact us, especially if you are travelling some distance to view. Fixtures and fittings other than those mentioned are to be agreed with the seller.
Hillside Rise, Belper, Derbyshire, DE56
Additional Information
-
Property refQBP250370
-
EPCC
-
TenureFreehold
-
Council TaxA
-
Local authorityAmber Valley Borough Council
The pin shows the exact address of the property
Energy Efficiency Rating
Very energy efficient - lower running costs
Not energy efficient - higher running costs
Current
71Potential
87CO2 Rating
Very energy efficient - lower running costs
Not energy efficient - higher running costs
