This calculator provides a guide to the amount of residential stamp duty you may pay and does not guarantee this will be the actual cost. This calculation is based on the Stamp Duty Land Tax Rates for residential properties purchased from 23rd September 2022 and second homes from 31st October 2024. For more information on Stamp Duty Land Tax, click here.
5 bedroom Mid Terrace House for sale, Kensington Gardens, Whitley Bay, Tyne and Wear, NE25
Features and Description
- Period style five bedroom terraced house
- Two reception rooms, large dining kitchen.
- Gardens and garage
- Total floor area space 170 sq. m approx..
- Freehold, EPC Rating D
- North Tyneside Council tax band C
This exceptionally spacious, period-style mid-terrace home offers generous family living accommodation, complemented by attractive outdoor space, gardens, and a rear garage. Ideally located in the heart of Monkseaton, the property is just a short walk from a wide range of local amenities and excellent transport links.
Monkseaton is a bustling and highly sought-after area offering an excellent range of local shops, amenities and well-regarded schools, all conveniently on the doorstep. There are excellent transport links, including regular bus services and Metro connections providing easy access to nearby coastal towns and Newcastle. The stunning Whitley Bay seafront is just a short walk away, perfect for scenic beach walks along the coastline stretching towards Tynemouth and Blyth.
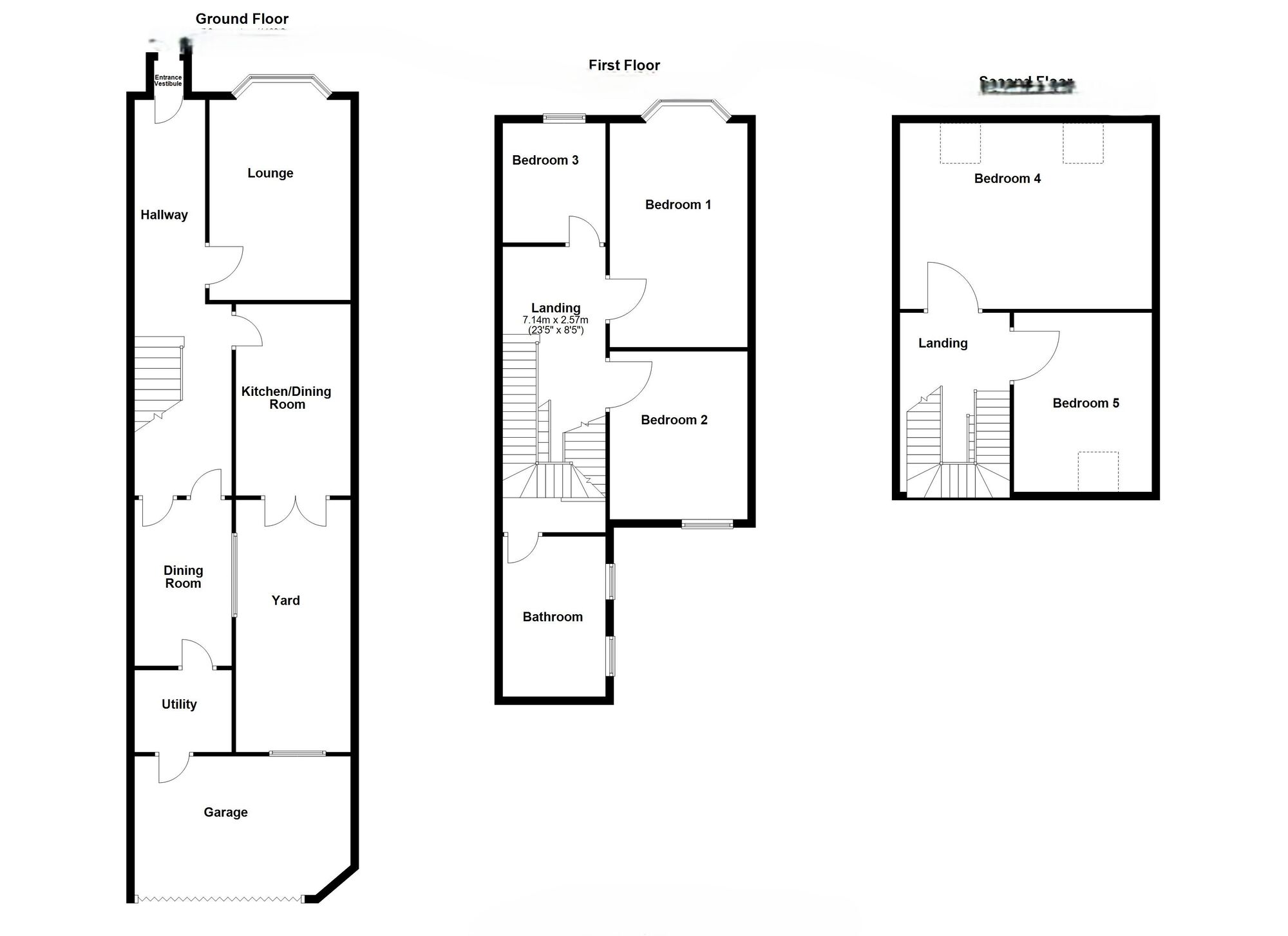
The property offers spacious accommodation over two floors with some original period features, boasting front and rear gardens and a garage to the rear, benefiting from double glazing, gas central heating and briefly comprising of: Entrance hallway, lounge to the front with bay window, dining kitchen with French doors out to the rear, dining room and utility room. To the first floor there are three bedrooms and a bathroom/WC. To the second floor a further two bedrooms. Externally there is a front garden a rear patio garden and a garage accessed via the rear. Viewing is via appointment through our branch 0191-2534117.
Freehold
EPC Rating D
Council Tax Band D
Entrance vestibule
Wood and glazed windows, and door leading into:
Entrance Hallway
Stripped floorboards, dado rail, radiator, feature arch with corbel ends, under stairs storage cupboard.
Lounge
18'1" x 14'6" (5.50m x 4.42m)
Double glazed bay window to the front with coving to ceiling, ceiling rose, chimney breast and alcoves with gas living flame fire, polished floorboards and radiator.
Dining kitchen
14'12" x 12'2" (4.57m x 3.70m)
Fitted with a range of wood stylish wall and base units with granite work surfaces, Belfast sink with integrated drainer, open recess with built in gas hob and extractor over, built in double electric oven, integrated fridge and freezer, dish washer and tiled splash backs, double glazed French doors to the rear, radiator.
Dining Room
14'3" x 7'8" (4.34m x 2.34m)
Two double glazed windows to the side, built in storage cupboards, radiator, under stairs storage cupboard and door to:
Utility Room
6'9" x 5'8" (2.06m x 1.73m)
Plumbed for washing g machine , storage cupboards, door to garage.
First floor landing
Stairs to second floor, dado rail, doors off to:
Bedroom 1
18'1" x 12'3" (5.50m x 3.73m)
Double glazed bay window to the front, wood fire surround, coving to ceiling, radiator.
Bedroom 2
15'1" x 12'3" (4.60m x 3.73m)
Double glazed window to the rear, built in double wardrobe, radiator.
Bedroom 3
9'7" x 6'3" (2.92m x 1.90m)
Double glazed window to the front, radiator.
Bathroom / WC
9'8" x 7'8" (2.95m x 2.34m)
Panelled bath, corner shower cubicle with plumbed shower, vanity wash hand basin, low level WC, two double glazed frosted windows to the side, tiled walls,radiator and tiled flooring.
Second floor landing
Velux window, doors oof to:
Bedroom 4
18'7" x 9'9" (5.66m x 2.97m)
Two double glazed Velux windows to the front.
Bedroom fiive
11'7" x 11'7" (3.53m x 3.53m)
Double glazed Velux window to the rear.
External
Rear yard - Walled with access to the rear garage, block paved patio. Front garden- Gate to front street, laid to lawn with shrubs and planting.
Garage
19'7" x 14'11" (5.97m x 4.55m)
To the rear with power and lighting, wall mounted boiler, glazed windows.
IMPORTANT NOTE TO POTENTIAL PURCHASERS:
We endeavour to make our particulars accurate and reliable, however, they do not constitute or form part of an offer or any contract and none is to be relied upon as statements of representation or fact. The services, systems and appliances listed in this specification have not been tested by us and no guarantee as to their operating ability or efficiency is given. All photographs and measurements have been taken as a guide only and are not precise. Floor plans where included are not to scale and accuracy is not guaranteed. If you require clarification or further information on any points, please contact us, especially if you are travelling some distance to view. Fixtures and fittings other than those mentioned are to be agreed with the seller.
Kensington Gardens, Whitley Bay, Tyne and Wear, NE25
Additional Information
-
Property refWBA260007
-
EPCD
-
Council TaxC
-
Local authorityNorth Tyneside Council
Similar properties for sale by Your Move Whitley Bay
The pin shows the exact address of the property
Energy Efficiency Rating
Very energy efficient - lower running costs
Not energy efficient - higher running costs
Current
60Potential
71CO2 Rating
Very energy efficient - lower running costs
Not energy efficient - higher running costs
