This calculator provides a guide to the amount of residential stamp duty you may pay and does not guarantee this will be the actual cost. This calculation is based on the Stamp Duty Land Tax Rates for residential properties purchased from 23rd September 2022 and second homes from 31st October 2024. For more information on Stamp Duty Land Tax, click here.
2 bedroom Mid Terrace House for sale, Lansdowne Street, Darlington, Durham, DL3
Features and Description
- Council Tax Band: A
- EPC Grade: D
- Tenant in Situ Paying £495 per month
- No Onward Chain
- Virtual Tour Available
* SOLD WITH A TENANT IN SITU! * NO ONWARD CHAIN! * An excellent investment opportunity to acquire a two bed mid-terrace property on Lansdowne Street, offered for sale with a tenant already in situ. The property is presented in a fair condition and in a popular residential area of Darlington, making it attractive for tenants and future buyers. It benefit from a convenient position close to major transport links, including A1 and A66.
Council Tax Band: A
EPC Grade: D
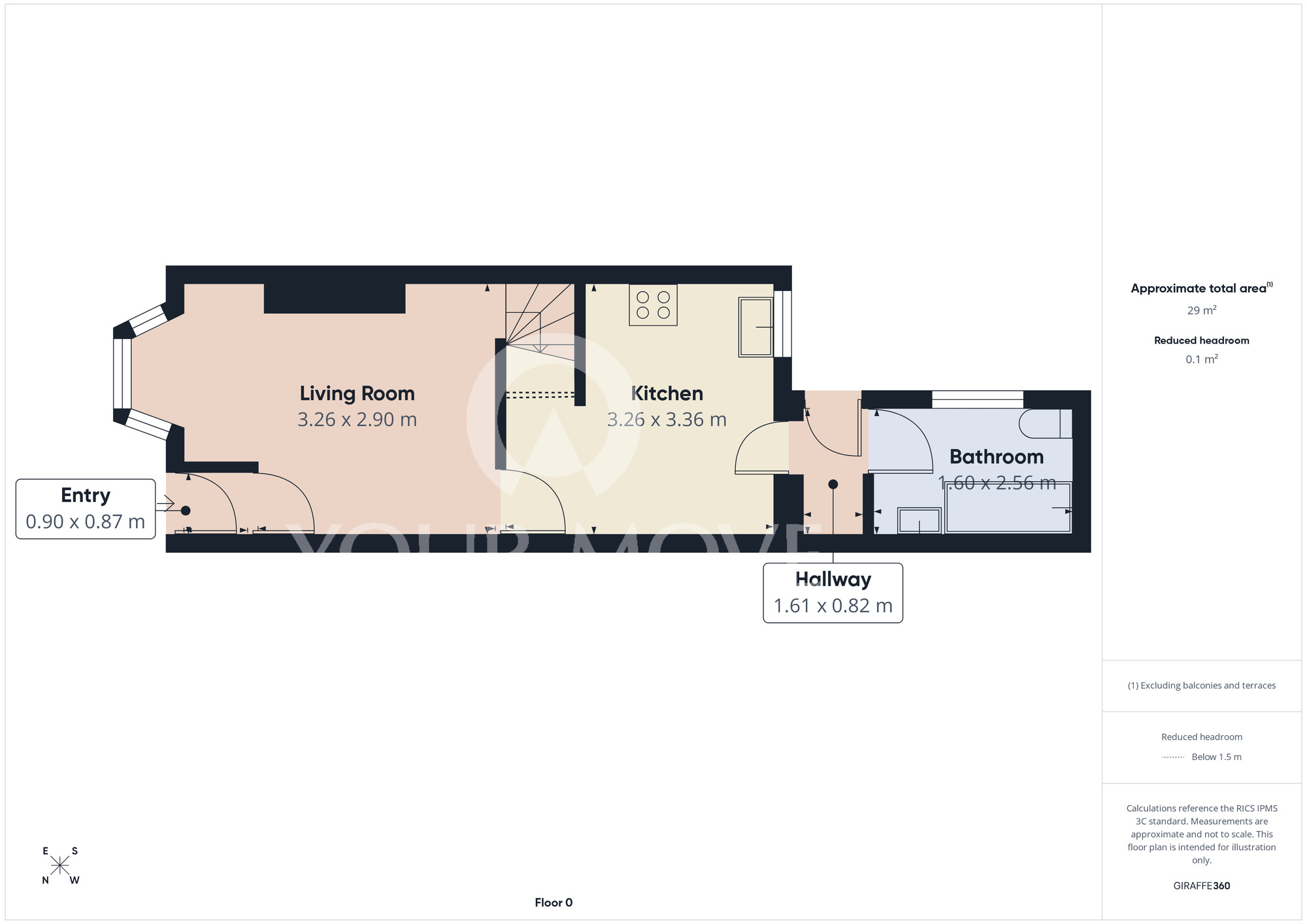
Entrance Hallway
Leading from the front door.
Lounge
Carpeted flooring, double glazed window and radiator.
Kitchen
Base and wall units with contrasting worktops integrated hob and cooker.
Landing
Leading to the bedrooms.
Bedroom 1
Carpeted flooring, double glazed window and radiator.
Bedroom 2
Carpeted flooring, double glazed window and radiator.
Bathroom
WC, sink and panel bath.
External
To the rear is an enclosed yard with rear access gate.
Additional Infromation
HMRC is a supervisory body for money laundering regulations, of which all estate agents need to be registered. As part of this, there are multiple requirements that agents must rigorously and consistently meet to ensure they stay compliant with the regulations and protect their clients. To do this, we use an identity verification service, approved by the Government as part of the Digital Identity and Attributes Trust Framework (DIATF). This method and the process we follow to ensure compliance for your transaction come with significant time, financial and legal implications hence a portion of this is passed on to our clients. We elected for this verification process due to the speed, certainty, and accuracy it delivers. This helps us to protect all our client's interests by using the most advanced verification process to help prevent the impacts of money laundering alongside our internal manual policies and procedures while staying compliant with HMRC. The administrative charge for this process is £40 plus VAT for a sole purchaser, £65 plus VAT for two purchasers and £75 plus VAT three or more purchasers.Local Authority DarlingtonConservation Area NoCouncil Tax Band Band ACouncil Tax Estimate £1,581Rivers & Seas Very lowSurface Water Very lowTenure FreeholdMobile (based on calls indoors)O2 EE Three VodafoneBroadband (estimated speeds)Standard 8 mbpsSuperfast 80 mbpsUltrafast 10000 mbpsSatellite & Cable TV AvailabilityBT Sky Virgin
IMPORTANT NOTE TO POTENTIAL PURCHASERS:
We endeavour to make our particulars accurate and reliable, however, they do not constitute or form part of an offer or any contract and none is to be relied upon as statements of representation or fact. The services, systems and appliances listed in this specification have not been tested by us and no guarantee as to their operating ability or efficiency is given. All photographs and measurements have been taken as a guide only and are not precise. Floor plans where included are not to scale and accuracy is not guaranteed. If you require clarification or further information on any points, please contact us, especially if you are travelling some distance to view. Fixtures and fittings other than those mentioned are to be agreed with the seller.
Lansdowne Street, Darlington, Durham, DL3
Additional Information
-
Property refDAR260118
-
EPCD
-
TenureFreehold
-
Council TaxA
-
Local authorityDarlington Borough Council
Similar properties for sale by Your Move Darlington
The pin shows the exact address of the property
Energy Efficiency Rating
Very energy efficient - lower running costs
Not energy efficient - higher running costs
Current
56Potential
78CO2 Rating
Very energy efficient - lower running costs
Not energy efficient - higher running costs
