This calculator provides a guide to the amount of residential stamp duty you may pay and does not guarantee this will be the actual cost. This calculation is based on the Stamp Duty Land Tax Rates for residential properties purchased from 23rd September 2022 and second homes from 31st October 2024. For more information on Stamp Duty Land Tax, click here.
4 bedroom Mid Terrace House for sale, Lorne Terrace, Sunderland, Tyne and Wear, SR2
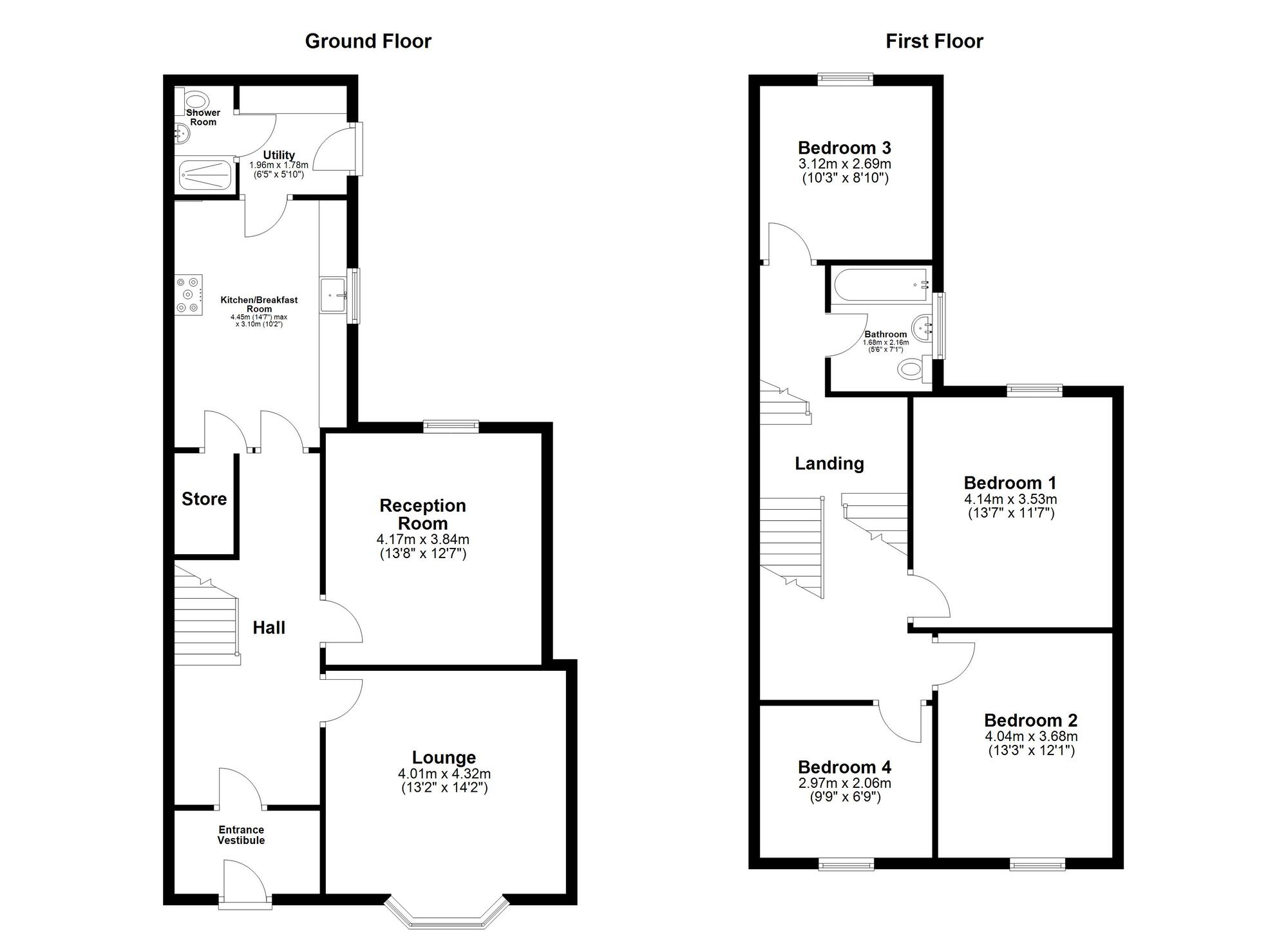
Features and Description
- Four Bedrooms
- Must View
- Family Bathroom + Shower Room
- Council Tax Band B Sunderland City Council
- EPC Grade D
- 135 sqm/ 1453sq ft Floor Area
This well presented four bedroom mid terrace family home is situated on Lorne Terrace in Sunderland and is a must view for those seeking spacious and flexible accommodation.
The ground floor briefly comprises two reception rooms, with the principal living room featuring a bay window that provides plenty of natural light. There is a modern fitted breakfasting kitchen, complemented by a separate utility room and an additional shower room, making the layout ideal for busy family life.
To the first floor, the property offers four well-proportioned bedrooms along with a family bathroom.
Externally, the home benefits from an enclosed rear yard, providing a private outdoor space, while to the front there is residents’ permit parking.
We believe the property to be Freehold
Lounge
14'8" x 13'2" (4.47m x 4.01m)
Reception Room
12'7" x 13'8" (3.84m x 4.17m)
Breakfasting Kitchen
10'2" x 14'7" (3.10m x 4.45m)
Utility Room
5'10" x 6'5" (1.78m x 1.96m)
Shower Room
5'2" x 3'6" (1.57m x 1.07m)
Bedroom 1
12'1" x 13'3" (3.68m x 4.04m)
Bedroom 2
11'5" x 13'7" (3.48m x 4.14m)
Bedroom 3
10'3" x 8'10" (3.12m x 2.70m)
Bedroom 4
6'9" x 9'9" (2.06m x 2.97m)
Family Bathroom
7'1" x 5'6" (2.16m x 1.68m)
IMPORTANT NOTE TO POTENTIAL PURCHASERS:
We endeavour to make our particulars accurate and reliable, however, they do not constitute or form part of an offer or any contract and none is to be relied upon as statements of representation or fact. The services, systems and appliances listed in this specification have not been tested by us and no guarantee as to their operating ability or efficiency is given. All photographs and measurements have been taken as a guide only and are not precise. Floor plans where included are not to scale and accuracy is not guaranteed. If you require clarification or further information on any points, please contact us, especially if you are travelling some distance to view. Fixtures and fittings other than those mentioned are to be agreed with the seller.
Lorne Terrace, Sunderland, Tyne and Wear, SR2
Additional Information
-
Property refSUN260090
-
EPCD
-
TenureFreehold
-
Council TaxB
-
Local authoritySunderland City Council
Similar properties for sale by Your Move Sunderland
The pin shows the exact address of the property
Energy Efficiency Rating
Very energy efficient - lower running costs
Not energy efficient - higher running costs
Current
58Potential
71CO2 Rating
Very energy efficient - lower running costs
Not energy efficient - higher running costs
