This calculator provides a guide to the amount of residential stamp duty you may pay and does not guarantee this will be the actual cost. This calculation is based on the Stamp Duty Land Tax Rates for residential properties purchased from 23rd September 2022 and second homes from 31st October 2024. For more information on Stamp Duty Land Tax, click here.
3 bedroom Mid Terrace House for sale, Lowbiggin, Newcastle upon Tyne, Tyne and Wear, NE5
Features and Description
- Three Bedroom Mid Terrace House
- Nicely enclosed rear garden
- Ideal for range of buyers
- Floor Area - Approximate 828 Sq.ft / 77 Sq.m
- Council Tax Band - A
- EPC Rating - C
An excellent opportunity for discerning purchasers to acquire a spacious three bedroom mid-terraced home.
Occupying a convenient position on Lowbiggin, the property is well placed for access to reputable local schools, amenities and transport links. The home offers generous accommodation throughout and further benefits from double glazing and gas central heating.
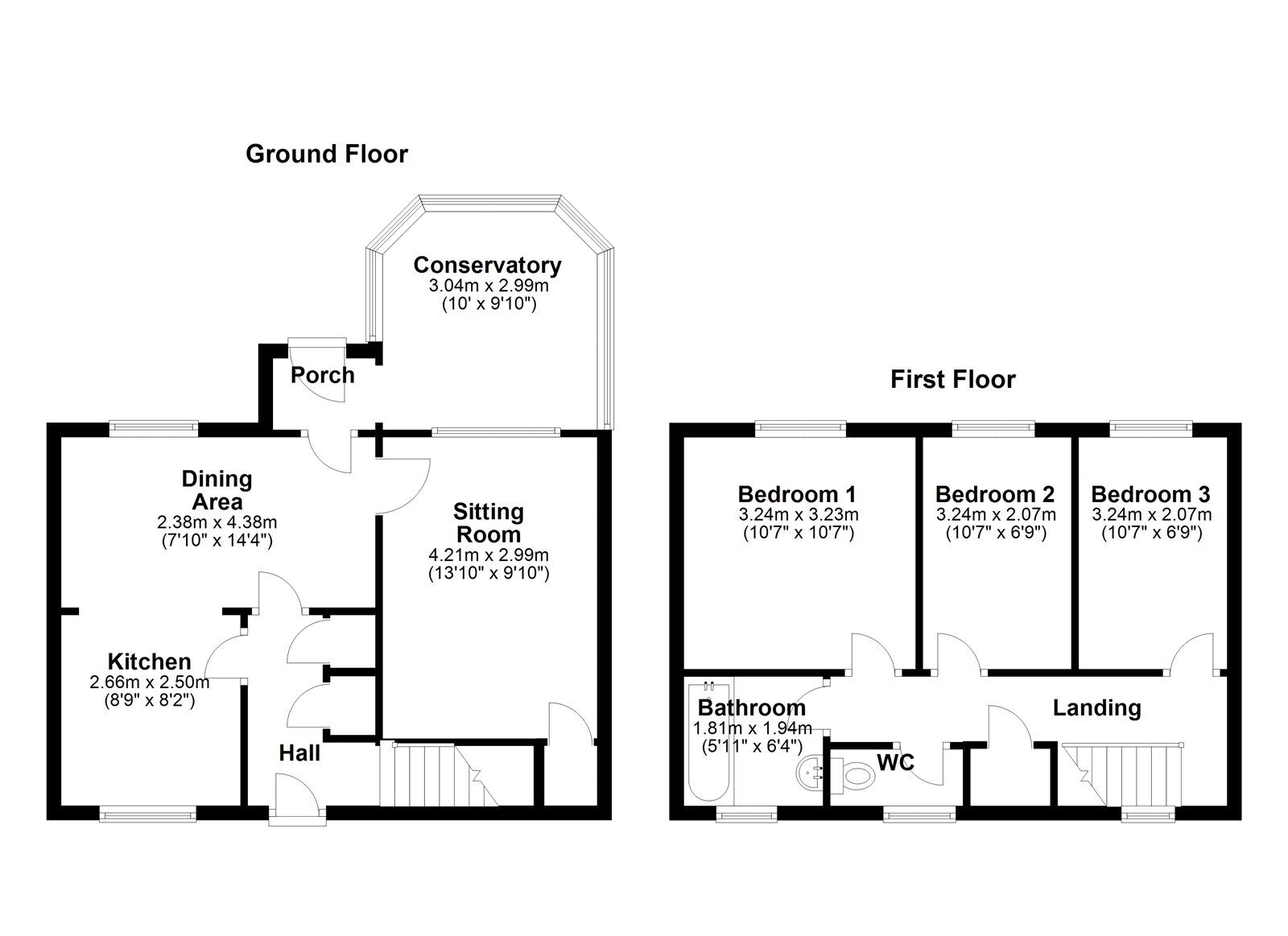
The accommodation briefly comprises: welcoming entrance porch, conservatory providing additional living space, an impressive kitchen/dining room with open-plan access to the sitting room, and a rear hall offering two well-proportioned storage cupboards.
To the first floor are three well-sized bedrooms and a family bathroom with a separate WC.
Externally, the property enjoys a neatly enclosed rear garden, ideal for outdoor entertaining, with on-street parking available nearby.
Lowbiggin is situated on the edge of Westerhope Village to the west side of Newcastle. Westerhope provides a good range of local services including shops, supermarkets, schools and recreational facilities. The area is also ideally situated for numerous roads with A69, A696 and A1 all close at hand, as well as good local bus routes. The airport is approximately 4 miles to the west.
We understand the property is freehold.
IMPORTANT NOTE TO POTENTIAL PURCHASERS:
We endeavour to make our particulars accurate and reliable, however, they do not constitute or form part of an offer or any contract and none is to be relied upon as statements of representation or fact. The services, systems and appliances listed in this specification have not been tested by us and no guarantee as to their operating ability or efficiency is given. All photographs and measurements have been taken as a guide only and are not precise. Floor plans where included are not to scale and accuracy is not guaranteed. If you require clarification or further information on any points, please contact us, especially if you are travelling some distance to view. Fixtures and fittings other than those mentioned are to be agreed with the seller.
Lowbiggin, Newcastle upon Tyne, Tyne and Wear, NE5
Additional Information
-
Property refQWD250812
-
EPCC
-
TenureFreehold
-
Council TaxA
-
Local authorityNewcastle Upon Tyne City Council
Similar properties for sale by Your Move West Denton
The pin shows the exact address of the property
Energy Efficiency Rating
Very energy efficient - lower running costs
Not energy efficient - higher running costs
Current
69Potential
86CO2 Rating
Very energy efficient - lower running costs
Not energy efficient - higher running costs
