This calculator provides a guide to the amount of residential stamp duty you may pay and does not guarantee this will be the actual cost. This calculation is based on the Stamp Duty Land Tax Rates for residential properties purchased from 23rd September 2022 and second homes from 31st October 2024. For more information on Stamp Duty Land Tax, click here.
2 bedroom Mid Terrace House for sale, Lynsted Road, Gillingham, Kent, ME8
Features and Description
- Large 1950s style terrace house
- 2 Double bedrooms
- Downstairs Cloakroom/Wc
- Over a 1000 sqft
- 16ft Double glazed conservatory
- 17ft Sitting room with fireplace
- Generous garden
- Hardstanding to the front
- Double glazed/GFCH
- Kitchen with separate Utility Room
- Sought after Twydall area
- A must see!!!
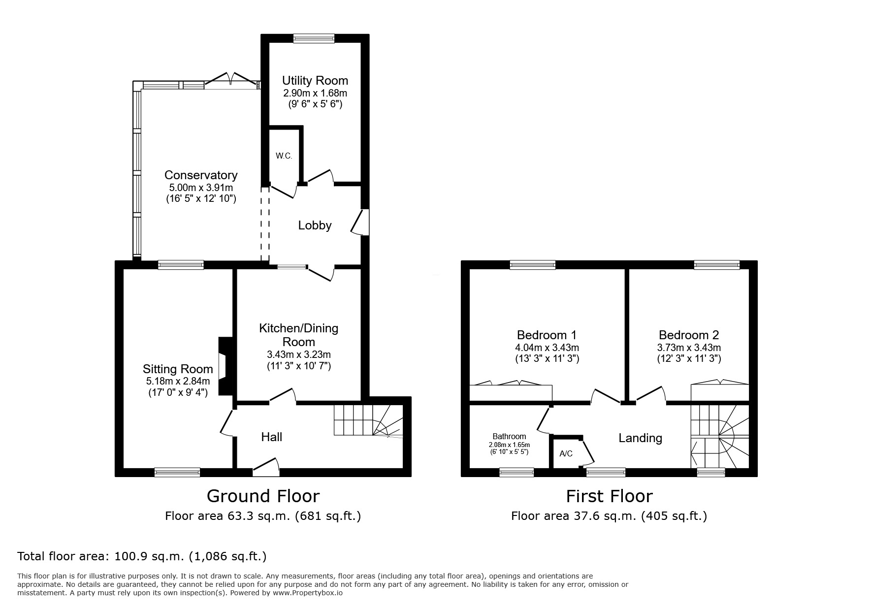
Spacious family home located in sought after Twydall. Accommodation comprises of: Entrance Hall with stairs to the first floor, generous double aspect Sitting Room with focal central fireplace, Kitchen/Dining Room giving access to the separate utility room and useful cloakroom/wc, but the hub of this home is the large double glazed Conservatory extension to the rear, giving both side and rear access, and making a great space to entertain. To the first floor, the galleried landing with useful storage leads to the two generous double bedrooms, both of which have ample built in wardrobes, and served by the spacious family bathroom. Externally to the front is a hardstanding, and to the rear a generous garden, with raised decking leading to a lower patio and lawned area beyond, with an attractive open green beyond that. Salient features include double glazing, GFCH via combi boiler and attractive neutral decor.
Location
Twydall is a sought after suburb, with the benefits of its own small shopping parade, lots of open green areas, and excellent bus links. Twydall is ideally located between Gillingham and Rainham, both of which offering mainline stations in to London, making this ideal for commuters. For keen shoppers, Hempstead shopping centre is close by, offering everything you could ever need for shopping and eating out. There are also excellent primary and secondary schools within the area.
Sitting Room
16'12" x 9'4" (5.18m x 2.84m)
Kitchen / Dining Room
11'3" x 10'7" (3.43m x 3.23m)
Utility Room
2.9m x 1.68m min
Conservatory
5m x 3.9m min
Master Bedroom
4.04m x 3.43m max
Bedroom
3.73m x 3.43m max
IMPORTANT NOTE TO POTENTIAL PURCHASERS:
We endeavour to make our particulars accurate and reliable, however, they do not constitute or form part of an offer or any contract and none is to be relied upon as statements of representation or fact. The services, systems and appliances listed in this specification have not been tested by us and no guarantee as to their operating ability or efficiency is given. All photographs and measurements have been taken as a guide only and are not precise. Floor plans where included are not to scale and accuracy is not guaranteed. If you require clarification or further information on any points, please contact us, especially if you are travelling some distance to view. Fixtures and fittings other than those mentioned are to be agreed with the seller.
Lynsted Road, Gillingham, Kent, ME8
Additional Information
-
Property refRAI250231
-
EPCC
-
TenureFreehold
-
Council TaxB
-
Local authorityMedway Council
The pin shows the exact address of the property
Energy Efficiency Rating
Very energy efficient - lower running costs
Not energy efficient - higher running costs
Current
70Potential
85CO2 Rating
Very energy efficient - lower running costs
Not energy efficient - higher running costs
