This calculator provides a guide to the amount of residential stamp duty you may pay and does not guarantee this will be the actual cost. This calculation is based on the Stamp Duty Land Tax Rates for residential properties purchased from 23rd September 2022 and second homes from 31st October 2024. For more information on Stamp Duty Land Tax, click here.
2 bedroom Mid Terrace House for sale, Manor View, Washington, Tyne and Wear, NE37
Features and Description
Situated in a popular residential area of Washington, this attractive two bedroom terraced property offers an ideal opportunity for first-time buyers, small families or investors. The home is conveniently located close to a range of local amenities, schools and excellent transport links, providing easy access to surrounding areas.
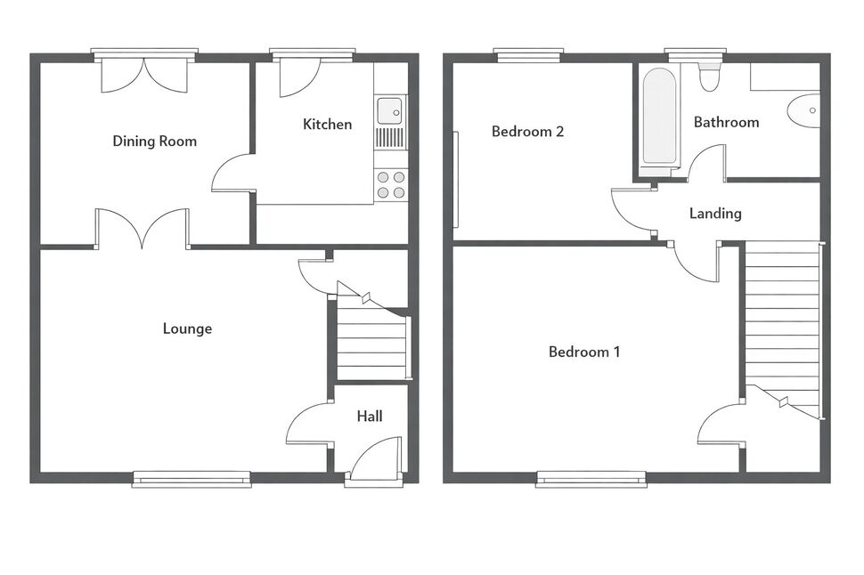
The accommodation begins with a welcoming entrance hall leading into a spacious lounge, offering a comfortable living environment. Double doors open into the dining room, creating a versatile space ideal for both everyday living and entertaining. The kitchen is fitted with a modern range of wall and base units, complementary work surfaces and tiled splashbacks, along with an integrated oven, hob and extractor hood, stainless steel sink and space for additional appliances.
To the first floor, the property offers two well-proportioned bedrooms and a modern family bathroom fitted with a white suite comprising panelled bath with shower attachment, wash hand basin and low-level WC.
Externally, the property benefits from a low-maintenance rear yard providing an ideal outdoor seating area. There is also the added advantage of a roller shutter garage door offering useful storage or off-street parking potential.
Early viewing is highly recommended to appreciate the accommodation, presentation and location on offer.
Entrance Hall
Accessed via the front door, the entrance hall provides a welcoming introduction to the home, with access to the lounge and staircase leading to the first floor.
Lounge – 4.3m x 3.4m
A generously proportioned reception room offering a bright and comfortable living space. The lounge benefits from a large front-facing window allowing plenty of natural light, neutral décor and ample space for a range of seating furniture. Double doors lead through to the dining room, enhancing the sense of space and flow.
Dining Room – 3.1m x 3.0m
Positioned to the rear of the property, the dining room offers a dedicated space for family dining and entertaining. There is sufficient room for a dining table and additional furniture, with easy access through to the kitchen.
Kitchen – 3.1m x 2.1m
Fitted with a modern range of wall and base units, complementary work surfaces and tiled splashbacks. The kitchen incorporates an integrated oven, hob with extractor hood, stainless steel sink with mixer tap and space for additional appliances. A practical and well-laid-out cooking area.
First Floor Landing
Providing access to both bedrooms and the family bathroom.
Bedroom One – 4.3m x 3.5m
A spacious double bedroom located to the front of the property, offering ample room for a double bed and additional bedroom furniture. Finished in neutral tones.
Bedroom Two – 3.1m x 2.7m
A well-proportioned second bedroom, ideal as a child’s room, guest room or home office. The room offers space for a bed and has large sliding door wardrobes.
Bathroom – 2.6m x 1.9m
A modern family bathroom fitted with a white suite comprising panelled bath with shower attachment, wash hand basin and low-level WC. Finished with tiled walls and flooring for a clean, contemporary look.
External
To the rear is a low-maintenance yard providing an ideal outdoor seating area. The property further benefits from a roller shutter garage door offering useful storage or off-street parking potential.
IMPORTANT NOTE TO POTENTIAL PURCHASERS:
We endeavour to make our particulars accurate and reliable, however, they do not constitute or form part of an offer or any contract and none is to be relied upon as statements of representation or fact. The services, systems and appliances listed in this specification have not been tested by us and no guarantee as to their operating ability or efficiency is given. All photographs and measurements have been taken as a guide only and are not precise. Floor plans where included are not to scale and accuracy is not guaranteed. If you require clarification or further information on any points, please contact us, especially if you are travelling some distance to view. Fixtures and fittings other than those mentioned are to be agreed with the seller.
Manor View, Washington, Tyne and Wear, NE37
Additional Information
-
Property refQWS250368
-
Council TaxA
-
Local authoritySunderland City Council
Similar properties for sale by Your Move Washington
The pin shows the exact address of the property
Energy Efficiency Rating
Very energy efficient - lower running costs
Not energy efficient - higher running costs
Current
N/APotential
N/ACO2 Rating
Very energy efficient - lower running costs
Not energy efficient - higher running costs
