2 bedroom Mid Terrace House to rent, Buckle Gardens, Hellingly, East Sussex, BN27
Available Unfurnished, from 11/01/2026
Features and Description
- 2 Double Bedrooms
- Cloakroom/Wc
- Living Room
- Kitchen
- Gas Central Heating
- Garden
- Two Allocated Parking Spaces
This two-bedroom terraced house is available to let with YOUR MOVE Lettings within the Roebuck Park development in Hellingly, near Hailsham. The property is presented in immaculate condition and offers a practical layout suited to single occupants, couples, or a small family with one child.
The home comprises one reception room with garden access and views over the rear garden, a modern fitted kitchen, and a modern fitted bathroom. Both bedrooms are doubles, providing flexible sleeping or home-working space. The property benefits from gas central heating and double glazing, and has an EPC rating of C and Council Tax band C. Allocated parking is included.
Roebuck Park is known for its green spaces, walking routes and cycling paths, making it suitable for those who value access to the countryside. Nearby Hailsham provides supermarkets, independent shops, cafés and everyday amenities, as well as primary and secondary schools in the wider area.
Public transport links include Polegate railway station, which is typically around a 10–15 minute drive away, offering services to Eastbourne (about 10 minutes), Lewes (around 20 minutes) and London Victoria (approximately 1 hour 20 minutes). Regular bus services connect Hellingly and Hailsham with Eastbourne and surrounding villages.
This property is available for immediate and longer-term lets, offering a comfortable and well-maintained home in a sought-after residential setting.
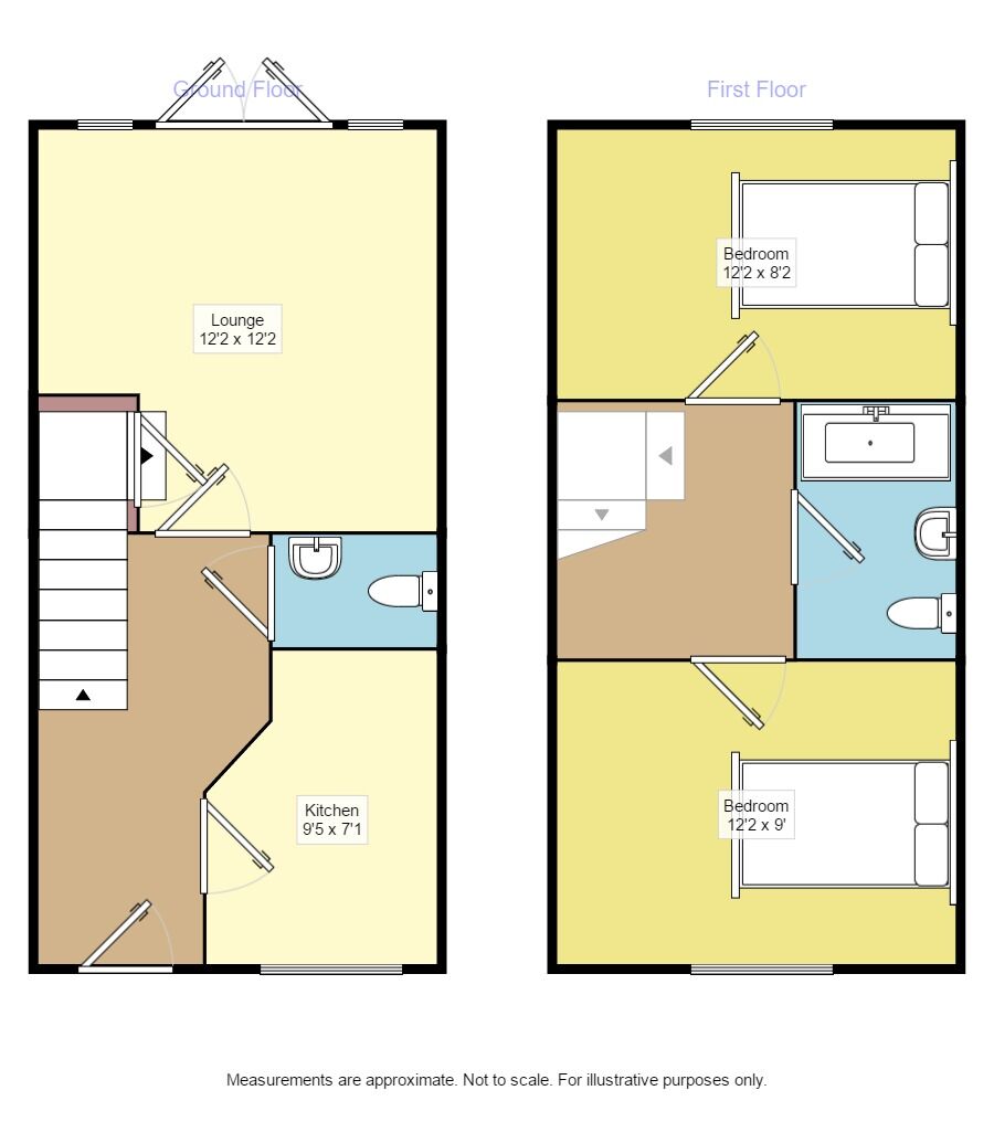
Living Room
12'2" x 12'2" (3.70m x 3.70m)
Kitchen
9'5" x 7'1" (2.87m x 2.16m)
Bedroom 1
12'2" x 9'2" (3.70m x 2.80m)
Bedroom 2
12'2" x 9'2" (3.70m x 2.80m)
IMPORTANT NOTE TO POTENTIAL RENTERS:
We endeavour to make our particulars accurate and reliable, however, they do not constitute or form part of an offer or any contract and none is to be relied upon as statements of representation or fact. The services, systems and appliances listed in this specification have not been tested by us and no guarantee as to their operating ability or efficiency is given. All photographs and measurements have been taken as a guide only and are not precise. Floor plans where included are not to scale and accuracy is not guaranteed. If you require clarification or further information on any points, please contact us, especially if you are travelling some distance to view.
All properties are available for a minimum length of time, with the exception of short term accommodation. Please contact the branch for details. A security deposit of at least one month’s rent is required. Rent is to be paid one month in advance. It is the tenant’s responsibility to insure any personal possessions. Payment of all utilities including water rates or metered supply and Council Tax is the responsibility of the tenant in every case.
Buckle Gardens, Hellingly, East Sussex, BN27
The pin shows the exact address of the property
Energy Efficiency Rating
Very energy efficient - lower running costs
Not energy efficient - higher running costs
Current
77Potential
91CO2 Rating
Very energy efficient - lower running costs
Not energy efficient - higher running costs
