This calculator provides a guide to the amount of residential stamp duty you may pay and does not guarantee this will be the actual cost. This calculation is based on the Stamp Duty Land Tax Rates for residential properties purchased from 23rd September 2022 and second homes from 31st October 2024. For more information on Stamp Duty Land Tax, click here.
3 bedroom Semi Detached Bungalow for sale, Acomb Crescent, Newcastle upon Tyne, Tyne and Wear, NE3
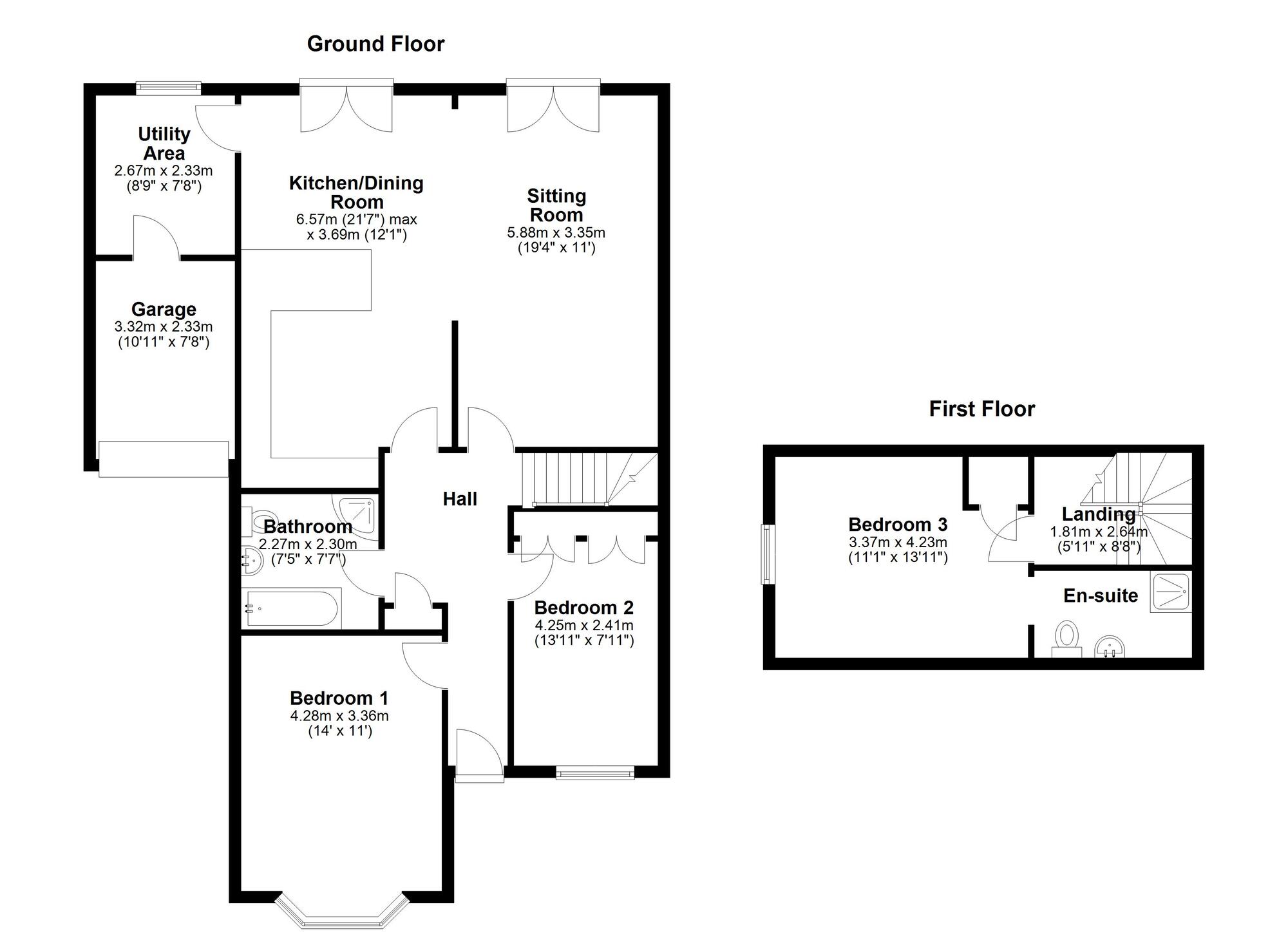
Features and Description
- Three Bedroom Semi-Detached Bungalow
- Beautiful open plan living
- No onward chain
- Approx. 10sqm/108sqft Accommodation
- Newcastle City Council, Band C
- EPC rating awaited
This beautifully presented semi-detached bungalow offers deceptively spacious accommodation and is ready to move into, benefiting from no onward chain. The property is leasehold and provides a flexible layout suited to a variety of needs.
The internal accommodation comprises an entrance hall leading to a generous open plan kitchen/dining room with double doors opening onto the rear garden, alongside a well-proportioned sitting room also featuring double doors to the garden. There are two ground floor bedrooms, a utility room and a family bathroom.
The kitchen is modern fitted, complemented by a contemporary family bathroom featuring a four piece suite including bath, walk-in shower, WC and pedestal wash hand basin. The main bedroom is positioned separately and benefits from an en suite shower room with WC and pedestal wash hand basin.
Externally, the property offers a good size driveway leading to an attached garage, with a lawned front garden. To the rear is a lovely enclosed garden with lawn and raised borders, along with side gate access, providing a pleasant outdoor space.
Conveniently positioned within a popular area, the property benefits from an accessible location with local amenities and transport links nearby. Council Tax Band C. EPC rating awaited.
We understand the property is leasehold with 102 years remaining.
IMPORTANT NOTE TO POTENTIAL PURCHASERS:
We endeavour to make our particulars accurate and reliable, however, they do not constitute or form part of an offer or any contract and none is to be relied upon as statements of representation or fact. The services, systems and appliances listed in this specification have not been tested by us and no guarantee as to their operating ability or efficiency is given. All photographs and measurements have been taken as a guide only and are not precise. Floor plans where included are not to scale and accuracy is not guaranteed. If you require clarification or further information on any points, please contact us, especially if you are travelling some distance to view. Fixtures and fittings other than those mentioned are to be agreed with the seller.
Acomb Crescent, Newcastle upon Tyne, Tyne and Wear, NE3
Additional Information
-
Property refQWD260226
-
EPCD
-
TenureLeasehold
-
Lease length102 years
-
Council TaxC
-
Local authorityNewcastle Upon Tyne City Council
-
Ground RentContact the branch
-
Ground Rent ReviewContact the branch
-
Service ChargeContact the branch
Similar properties for sale by Your Move West Denton
The pin shows the exact address of the property
Energy Efficiency Rating
Very energy efficient - lower running costs
Not energy efficient - higher running costs
Current
62Potential
75CO2 Rating
Very energy efficient - lower running costs
Not energy efficient - higher running costs
