This calculator provides a guide to the amount of residential stamp duty you may pay and does not guarantee this will be the actual cost. This calculation is based on the Stamp Duty Land Tax Rates for residential properties purchased from 23rd September 2022 and second homes from 31st October 2024. For more information on Stamp Duty Land Tax, click here.
3 bedroom Semi Detached Bungalow for sale, Castle Hill, Kent, DA3
Features and Description
- Three Bedroom Bungalow
- Semi Detached
- 1930's
- 173' Long Garden
- Semi Rural
- Open Plan Living
- Additional W.C.
SEMI-RURAL LIVING! This well presented 1930's style three bedroom semi detached bungalow is tucked away on the Fawkham/Hartley border and offering a 173' rear garden. A beaut!
Location
This home is located on a country lane that connects Fawkham to Hartley, consisting of mainly individual homes. The lane gives the home a rural feel but without being remote.<br /> Hartley offers several local convenience stores including a Co-op and post office. The nearby Longfield offers Waitrose, doctors, vets, eateries, butchers, bakers and Longfield station with its London links.<br /> Fawkham is a traditional village with its own central local pub. On the outskirts of the village is Brands Hatch Hotel & Spa.<br /> There are numerous local schools, golf courses and leafy walks. Residents also enjoy the relatively easy access to A2, M20, Bluewater and Ebbsfleet.
What the owners say
This has been a joy to call our home. It has a country feel, allowing us to enjoy our garden with peace on a sunny day, but still close to local amenities for when we just need to pop to the shops.Our neighbours have been great, always friendly enough for a chat when we see them or to help us out with parcels or watering the garden when we are not around.Indeed, we will miss it but we have an opportunity to move to the coast which has always been our dream.
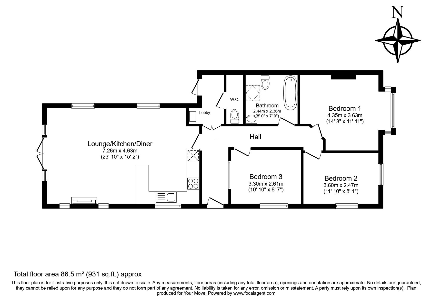
Lounge / Kitchen / Diner
23'10" x 15'2" (7.26m x 4.63m)
Bedroom 1
14'3" x 11'11" (4.35m x 3.63m)
Bedroom 2
10'10" x 8'7" (3.30m x 2.61m)
Bedroom 3
11'10" x 8'1" (3.60m x 2.47m)
Bathroom
8'0" x 7'9" (2.44m x 2.36m)
Garden
53m
IMPORTANT NOTE TO POTENTIAL PURCHASERS:
We endeavour to make our particulars accurate and reliable, however, they do not constitute or form part of an offer or any contract and none is to be relied upon as statements of representation or fact. The services, systems and appliances listed in this specification have not been tested by us and no guarantee as to their operating ability or efficiency is given. All photographs and measurements have been taken as a guide only and are not precise. Floor plans where included are not to scale and accuracy is not guaranteed. If you require clarification or further information on any points, please contact us, especially if you are travelling some distance to view. Fixtures and fittings other than those mentioned are to be agreed with the seller.
Castle Hill, Kent, DA3
 
        Additional Information
- 
                    Property refLON250013
- 
                    EPCD
- 
                    TenureFreehold
- 
                    Council TaxE
- 
                    Local authoritySevenoaks District Council
 
        Similar properties for sale by Your Move Longfield
 
         
         
         
         
         
         
         
         
         
         
         
         
         
         
         
        The pin shows the exact address of the property
Energy Efficiency Rating
Very energy efficient - lower running costs
Not energy efficient - higher running costs
Current
67Potential
85CO2 Rating
Very energy efficient - lower running costs
Not energy efficient - higher running costs

 
         
         
         
         
         
         
         
        