This calculator provides a guide to the amount of residential stamp duty you may pay and does not guarantee this will be the actual cost. This calculation is based on the Stamp Duty Land Tax Rates for residential properties purchased from 23rd September 2022 and second homes from 31st October 2024. For more information on Stamp Duty Land Tax, click here.
2 bedroom Semi Detached Bungalow for sale, Sharfleet Crescent, Iwade, Kent, ME9
Features and Description
- No Forward Chain
- Garage
- Driveway
- EV Charging Port
- Sought After Location
- A Real Must View
Positioned in a quiet residential setting within the sought-after village of Iwade, this attractive two-bedroom semi-detached bungalow offers practical single-level living with excellent modern additions.
The internal layout features a welcoming entrance hall leading to a well-appointed kitchen, a contemporary shower room, and a generously sized living area that flows into a light-filled conservatory. Two comfortable bedrooms complete the accommodation.
Outside, the home enjoys a private, easy-care rear garden, along with off-road parking and a garage. The inclusion of solar panels and an electric vehicle charging point adds to the property’s efficiency and future-ready appeal.
Sharfleet Crescent is conveniently located close to village shops, a pharmacy, and other everyday amenities, while strong transport connections provide swift access to the A2 and M2. A superb opportunity for buyers seeking a well-located bungalow combining comfort, convenience, and sustainability.
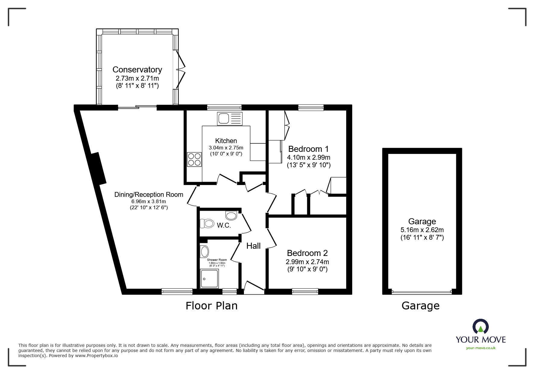
Reception Room / Dining Room
6.96m x 3.81
Conservatory
8'11" x 8'11" (2.73m x 2.71m)
Kitchen
16'11" x 8'7" (5.16m x 2.62m)
Bedroom 1
4.10m x 2.99
Bedroom 2
9'10" x 8'12" (2.99m x 2.74m)
IMPORTANT NOTE TO POTENTIAL PURCHASERS:
We endeavour to make our particulars accurate and reliable, however, they do not constitute or form part of an offer or any contract and none is to be relied upon as statements of representation or fact. The services, systems and appliances listed in this specification have not been tested by us and no guarantee as to their operating ability or efficiency is given. All photographs and measurements have been taken as a guide only and are not precise. Floor plans where included are not to scale and accuracy is not guaranteed. If you require clarification or further information on any points, please contact us, especially if you are travelling some distance to view. Fixtures and fittings other than those mentioned are to be agreed with the seller.
Sharfleet Crescent, Iwade, Kent, ME9
Additional Information
-
Property refQSB250212
-
EPCA
-
TenureFreehold
-
Council TaxC
-
Local authoritySwale Borough Council
Similar properties for sale by Your Move Sittingbourne
The pin shows the exact address of the property
Energy Efficiency Rating
Very energy efficient - lower running costs
Not energy efficient - higher running costs
Current
98Potential
98CO2 Rating
Very energy efficient - lower running costs
Not energy efficient - higher running costs
