3 bedroom Semi Detached Bungalow to rent, Eskdale Road, Bexleyheath, Kent, DA7
Available Part Furnished, from 07/03/2026
Features and Description
- Well Presented Family Home
- Three Bedrooms
- Spacious Lounge
- Conservatory
- EPC Rating: D
- Off Street Parking
- Mature Garden To Rear
- Holding Deposit: £461
- Security Deposit: £2,307
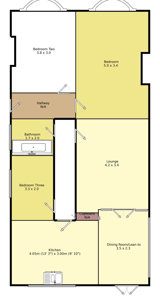
Offering true single-level living, this home is ideal for families, downsizers or anyone wanting generous internal space without stairs. The property welcomes you via a central hallway which leads to a bright and spacious lounge, a fantastic main living area with plenty of natural light.
The bungalow provides three good sized bedrooms, all comfortably accommodating beds and storage furniture, making the layout versatile for a growing family, home office or guest room. The fitted kitchen offers extensive worktop and cupboard space, perfect for everyday use, while the bathroom is neatly presented and practical.
To the rear, the property benefits from a private garden, providing an excellent outdoor space for entertaining, summer evenings or simply relaxing. To the front you will find off-street parking, a highly sought-after feature in this location.
The property sits within easy reach of local shops, schools and transport links, with bus routes and rail connections nearby providing convenient access into surrounding areas and Central London.
Available to move into beginning of March, this is a property that will appeal to a wide range of tenants. Call Your Move Bexleyheath today to arrange your viewing. Properties of this type and size in this location rarely stay available for long.
Lounge
0 x 0
Conservatory
0 x 0
Kitchen
0 x 0
Bedroom 1
0 x 0
Bedroom 2
0 x 0
Bedroom 3
0 x 0
Bathroom
0 x 0
Rear Garden
0 x 0
IMPORTANT NOTE TO POTENTIAL RENTERS:
We endeavour to make our particulars accurate and reliable, however, they do not constitute or form part of an offer or any contract and none is to be relied upon as statements of representation or fact. The services, systems and appliances listed in this specification have not been tested by us and no guarantee as to their operating ability or efficiency is given. All photographs and measurements have been taken as a guide only and are not precise. Floor plans where included are not to scale and accuracy is not guaranteed. If you require clarification or further information on any points, please contact us, especially if you are travelling some distance to view.
All properties are available for a minimum length of time, with the exception of short term accommodation. Please contact the branch for details. A security deposit of at least one month’s rent is required. Rent is to be paid one month in advance. It is the tenant’s responsibility to insure any personal possessions. Payment of all utilities including water rates or metered supply and Council Tax is the responsibility of the tenant in every case.
Eskdale Road, Bexleyheath, Kent, DA7
Additional Information
-
Property refBEX150124
-
EPCD
-
Council TaxE
-
Local authorityBexley Borough Council
Your Move Letting Agents Bexleyheath
Rental Tools
The pin shows the exact address of the property
Energy Efficiency Rating
Very energy efficient - lower running costs
Not energy efficient - higher running costs
Current
58Potential
85CO2 Rating
Very energy efficient - lower running costs
Not energy efficient - higher running costs
