This calculator provides a guide to the amount of residential stamp duty you may pay and does not guarantee this will be the actual cost. This calculation is based on the Stamp Duty Land Tax Rates for residential properties purchased from 23rd September 2022 and second homes from 31st October 2024. For more information on Stamp Duty Land Tax, click here.
3 bedroom Semi Detached House for sale, Aisgill Drive, Newcastle upon Tyne, Tyne and Wear, NE5
Features and Description
- Three Bedroom Semi Detached House
- NO ONWARD CHAIN
- Stunning Kitchen and Bathroom
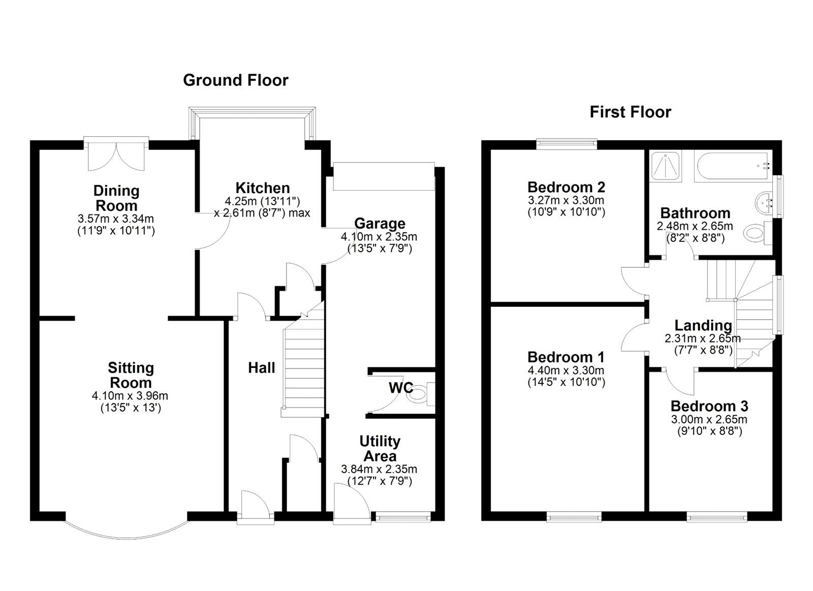
- Floor Area - Approximate 1087 Sq.ft / 101 Sq.m
- Council Tax Band - C
- EPC Rating - C
Three bedroom semi detached house situated in Chapel House on Aisgill Drive.
The property is presented to a high standard and includes many modern features including gas radiator heating and double glazing.
This fantastic home offers versatile accommodation ideal for the modern family. The fully fitted kitchen and open plan living/dining provide a superb family area ideal for entertaining. In addition, we rarely see kitchen's of such good quality and this one certainly must be seen to be fully appreciated.
The property enters into the hall which has a staircase to the first floor, a lounge/dining room which stretches the full length of the house, the stunning kitchen incorporates numerous built in appliances. Beyond this room is a utility room, downstairs WC and further storage in the garage.
The first floor features three bedrooms and a family bathroom. The stunning family bathroom comprises of a four piece suite incorporating WC, pedestal wash hand basin, bath and walk in shower.
Externally to the front there is a drive with space for multiple cars. To the rear a lovely enclosed garden incorporates a patio and artificial lawn providing a lovely outside space.
Chapel House is one of the more traditional and established residential areas in the West of Newcastle and lies a short distance from the city centre which can be easily reached via numerous bus routes. Newcastle provides an excellent array of schooling, cultural and shopping facilities. The A69 and A1 trunk roads are also close at hand.
We understand the property is freehold
IMPORTANT NOTE TO POTENTIAL PURCHASERS:
We endeavour to make our particulars accurate and reliable, however, they do not constitute or form part of an offer or any contract and none is to be relied upon as statements of representation or fact. The services, systems and appliances listed in this specification have not been tested by us and no guarantee as to their operating ability or efficiency is given. All photographs and measurements have been taken as a guide only and are not precise. Floor plans where included are not to scale and accuracy is not guaranteed. If you require clarification or further information on any points, please contact us, especially if you are travelling some distance to view. Fixtures and fittings other than those mentioned are to be agreed with the seller.
Aisgill Drive, Newcastle upon Tyne, Tyne and Wear, NE5
Additional Information
-
Property refQWD260077
-
EPCC
-
TenureFreehold
-
Council TaxC
-
Local authorityNewcastle Upon Tyne City Council
Similar properties for sale by Your Move West Denton
The pin shows the exact address of the property
Energy Efficiency Rating
Very energy efficient - lower running costs
Not energy efficient - higher running costs
Current
72Potential
78CO2 Rating
Very energy efficient - lower running costs
Not energy efficient - higher running costs
