This calculator provides a guide to the amount of residential stamp duty you may pay and does not guarantee this will be the actual cost. This calculation is based on the Stamp Duty Land Tax Rates for residential properties purchased from 23rd September 2022 and second homes from 31st October 2024. For more information on Stamp Duty Land Tax, click here.
3 bedroom Semi Detached House for sale, Brooks Road, Raunds, Northamptonshire, NN9
Features and Description
- Nearly-new bespoke three-bedroom family home
- Energy-efficient home with remaining new-build warranty
- Exclusive development on the edge of Raunds
- Air source heat pump, EV charger and underfloor heating
- Off-road parking plus detached garage
- Elevated position with open countryside outlooks
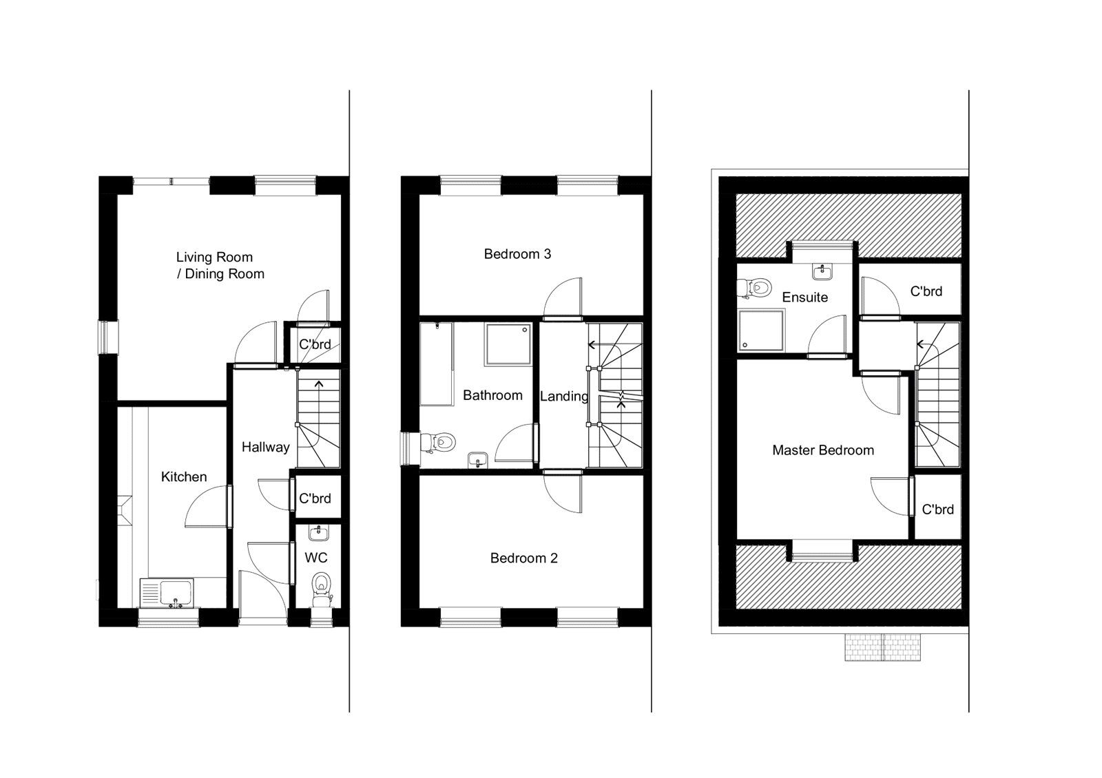
- Spacious accommodation arranged over three floors
- Stylish shaker-style kitchen with integrated appliances
- Principal bedroom suite with private en-suite
- Luxurious four-piece family bathroom with freestanding bath
- Generous rear garden with patio and large lawn
Stylish, Nearly New, Three-Bedroom Home on an Elevated Plot with Countryside Views!
Your Move Nolan Throw are delighted to present this nearly new, bespoke three-bedroom family home, forming part of an exclusive and highly regarded recently completed development in Brooks Road, Raunds.
Occupied for less than half a year and offered only due to a change in circumstances, this is a rare opportunity to acquire a beautifully upgraded modern home with the reassurance of the remainder of the new-build warranty still in place.
Positioned on an elevated plot on the outskirts of the town, the property enjoys a peaceful setting with attractive countryside outlooks, creating a wonderful sense of space and calm while remaining well connected for everyday life.
Stepping inside, you are welcomed by a bright and stylish entrance hall that immediately sets the tone for the quality and attention to detail found throughout.
A guest WC is neatly tucked away, perfect for visiting friends and family, while the kitchen sits to the front of the home and has been thoughtfully designed as a practical yet elegant space. Finished in a timeless shaker style with quality worktops and integrated appliances, it offers an ideal environment for cooking, entertaining, and everyday family life.
To the rear, the living room provides a comfortable and inviting retreat, filled with natural light and offering lovely views across the garden and beyond. This is a space perfectly suited to relaxing evenings, family time, or hosting guests, with direct access out to the patio allowing the indoors and outdoors to flow effortlessly during the warmer months.
The first floor continues to impress, with two generous double bedrooms that can easily adapt to suit a growing family, guests, or home-working needs. These are served by a luxurious family bathroom featuring a striking four-piece suite, including a freestanding bath and separate shower, creating a spa-like space for both busy mornings and slow, relaxing evenings.
Occupying the entire top floor is an impressive principal bedroom suite, offering a sense of privacy and retreat. This spacious double bedroom benefits from its own stylish en-suite shower room, making it an ideal main bedroom or guest suite.
Outside, the property truly comes into its own. The generous rear garden has been carefully landscaped to include a paved patio area, perfect for outdoor dining and entertaining, alongside a large lawned garden ideal for children, pets, or simply enjoying the open outlook. The garden enjoys a pleasing degree of privacy and makes the most of the surrounding countryside setting.
Off-road parking is provided, along with the added benefit of a detached garage, offering excellent storage and practicality.
Designed with modern living firmly in mind, the home also benefits from high-quality finishes throughout, energy-efficient features including an air source heat pump, EV charging capability, and underfloor heating to the ground floor, combining comfort with sustainability.
Location & Connectivity:
Brooks Road sits on the edge of Raunds, offering a tranquil setting without sacrificing convenience. Raunds itself provides a range of local shops, schools, and amenities, while Stanwick Lakes and the popular Rushden Lakes shopping and leisure complex are both within easy reach.
For commuters, excellent road links via the A45, A6, and A14 provide straightforward access to surrounding towns and major routes, while Wellingborough railway station is approximately 6.5 miles away, offering regular direct services to London St Pancras in under an hour.
Take a look at our high-definition virtual tour for an immersive preview of everything this exceptional home has to offer, then contact our friendly team to arrange your in-person viewing and experience it for yourself today!
IMPORTANT NOTE TO POTENTIAL PURCHASERS:
We endeavour to make our particulars accurate and reliable, however, they do not constitute or form part of an offer or any contract and none is to be relied upon as statements of representation or fact. The services, systems and appliances listed in this specification have not been tested by us and no guarantee as to their operating ability or efficiency is given. All photographs and measurements have been taken as a guide only and are not precise. Floor plans where included are not to scale and accuracy is not guaranteed. If you require clarification or further information on any points, please contact us, especially if you are travelling some distance to view. Fixtures and fittings other than those mentioned are to be agreed with the seller.
Brooks Road, Raunds, Northamptonshire, NN9
Additional Information
-
Property refQKE260024
-
EPCC
-
TenureFreehold
-
Council TaxC
-
Local authorityNorth Northamptonshire Council
Similar properties for sale by Your Move Kettering
The pin shows the exact address of the property
Energy Efficiency Rating
Very energy efficient - lower running costs
Not energy efficient - higher running costs
Current
80Potential
88CO2 Rating
Very energy efficient - lower running costs
Not energy efficient - higher running costs
