This calculator provides a guide to the amount of residential stamp duty you may pay and does not guarantee this will be the actual cost. This calculation is based on the Stamp Duty Land Tax Rates for residential properties purchased from 23rd September 2022 and second homes from 31st October 2024. For more information on Stamp Duty Land Tax, click here.
3 bedroom Semi Detached House for sale, Brunlea Drive, Whitehaven, Cumbria, CA28
Features and Description
Nestled within a highly sought-after area of Whitehaven, this beautifully presented three-bedroom family home offers the perfect blend of style, comfort and convenience. Ideally positioned close to the town centre and well-regarded local schools, it is an excellent choice for families.
Stepping inside, the property welcomes you with a bright and airy living room, enhanced by a charming feature bay window that fills the space with natural light. To the rear, a contemporary kitchen/dining room provides a fantastic hub of the home, complete with a range of integrated appliances and ample space for both everyday living and entertaining. A modern family bathroom completes the ground floor.
To the first floor, there are three well-proportioned bedrooms, all thoughtfully presented. The primary bedroom benefits from fitted wardrobes and the added convenience of an en-suite lavatory.
Externally, the property continues to impress. The enclosed rear garden features a paved patio area, ideal for outdoor dining and relaxing, along with access to the garage and a useful utility room equipped with power, lighting and plumbing. To the front, there is a well-maintained lawned garden and a tarmac-style driveway providing off-street parking.
This fantastic home is ready to move into and early viewing is highly recommended to fully appreciate all it has to offer.
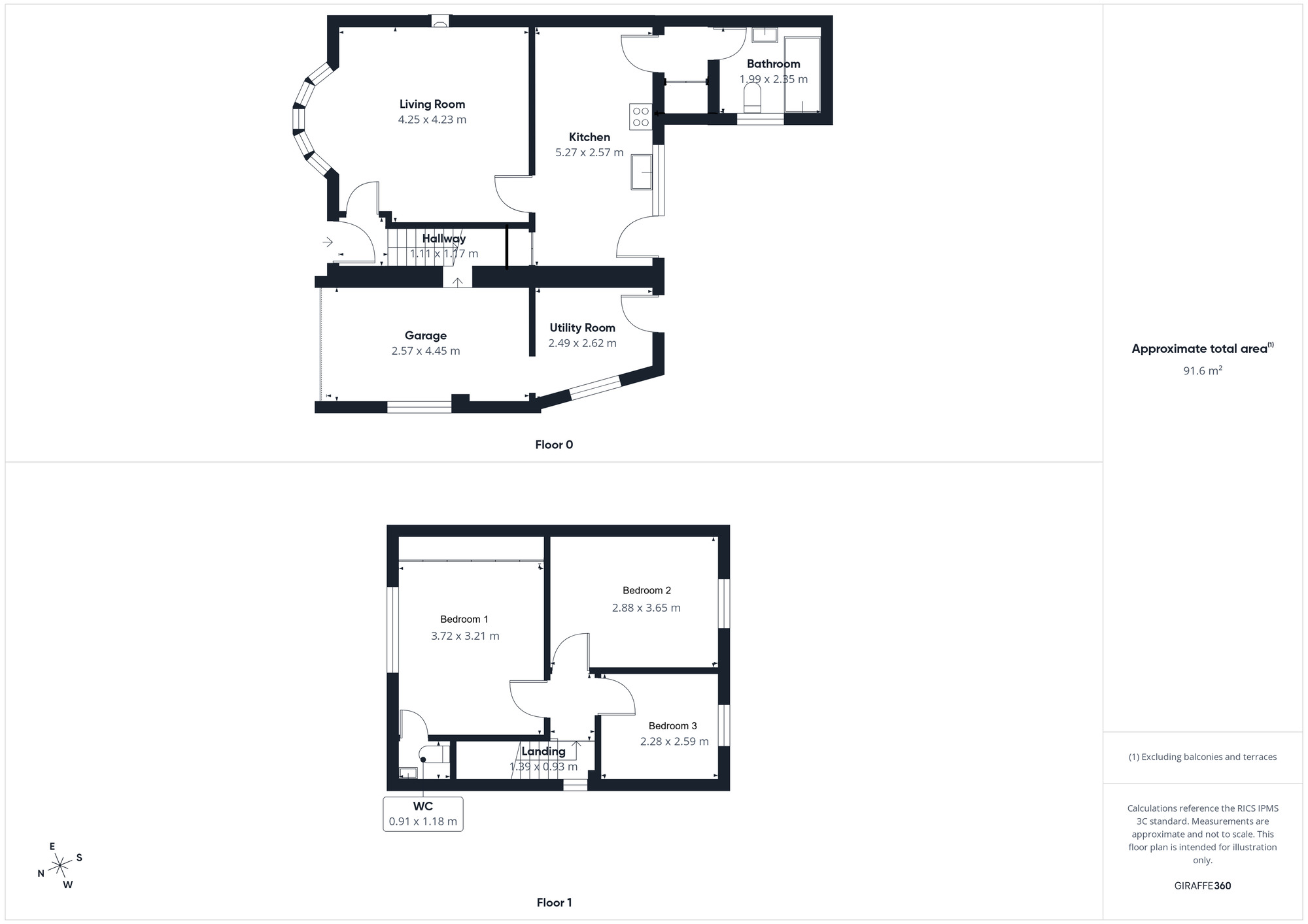
Entrance Hall
Welcoming entrance to the home, with stairs leading to the first floor.
Living Room
13'11" x 13'11" (4.25m x 4.23m)
Cosy living room, with a feature electric fireplace and a bay window flooding the room with natural light.
Kitchen / Dining Room
17'3" x 8'5" (5.27m x 2.57m)
Offering a range of modern fitted units, with stone countertops and and recessed lighting. The kitchen also boasts a range of integrated appliances, including: fridge/freezer, combination microwave, electric oven and countertop mounted electric hob. An external door provides access to the rear garden.
Rear Hallway
Connecting the kitchen to the bathroom, with convenient storage cupboard.
Bathroom
7'9" x 6'6" (2.35m x 1.99m)
Modern family bathroom, with recessed lighting. Benefitting from a bath with shower over, w/c, heated towel rail and wash hand basin set within a fitted vanity.
Utility Room
8'7" x 7'11" (2.62m x 2.42m)
Accessed from the rear garden, the utility room is situated to the rear of the garage and boasts plumbing for a washing machine.
Garage
Single garage, with up and over door. Benefitting from power and lighting, the garage would also make an ideal storage space or a workshop.
First Floor
With landing and access to the partially boarded loft.
Bedroom 1
12'2" x 10'6" (3.72m x 3.21m)
Large double bedroom, with modern fitted wardrobes. Also boasting an ensuite lavatory.
Lavatory
3'10" x 2'12" (1.18m x 0.91m)
With w/c and wash hand basin set within a fitted storage vanity.
Bedroom 2
11'12" x 9'5" (3.65m x 2.88m)
Good-sized double bedroom.
Bedroom 3
8'6" x 7'6" (2.59m x 2.28m)
Single bedroom.
Outside
To the rear of the property, is an enclosed garden to lawn, bordered by an established hedge row. A two tiered, paved patio area provides an ideal space for outdoor entertaining, or sitting and relaxing. To the front of the property is a further garden to lawn, offering a range of established plants. A tarmac style driveway provides off street parking for at least two cars.
Agents Notes
The property benefits from gas central heating and double glazing.Boiler: the boiler was recently installed in January 2023. The branch holds a copy of the Boiler Commissioning Checklist.There are restrictive covenants within the title, including but not limited to, commercial use of the property as a public house and the erection of buildings other than a dwelling or garage. A full copy of the land registry is available to interested parties form the branch.
IMPORTANT NOTE TO POTENTIAL PURCHASERS:
We endeavour to make our particulars accurate and reliable, however, they do not constitute or form part of an offer or any contract and none is to be relied upon as statements of representation or fact. The services, systems and appliances listed in this specification have not been tested by us and no guarantee as to their operating ability or efficiency is given. All photographs and measurements have been taken as a guide only and are not precise. Floor plans where included are not to scale and accuracy is not guaranteed. If you require clarification or further information on any points, please contact us, especially if you are travelling some distance to view. Fixtures and fittings other than those mentioned are to be agreed with the seller.
Agents are required by law to conduct Anti-Money Laundering checks on all buyers. Your Move Carlisle, Whitehaven and Wigton charge £30 including VAT per buyer. The charge covers the cost of obtaining and retaining relevant data from a third party. This fee is payable in advance prior to issuing a memorandum of sale and before the property can be sale agreed.
Brunlea Drive, Whitehaven, Cumbria, CA28
Additional Information
-
Property refWHV260269
-
TenureFreehold
-
Council TaxB
-
Local authorityCumberland Council
Similar properties for sale by Your Move Whitehaven
Welcoming entrance to the home, with stairs leading to the first floor.
Cosy living room, with a feature electric fireplace and a bay window flooding the room with natural light.
Offering a range of modern fitted units, with stone countertops and and recessed lighting. The kitchen also boasts a range of integrated appliances, including: fridge/freezer, combination microwave, electric oven and countertop mounted electric hob. An external door provides access to the rear garden.
Modern family bathroom, with recessed lighting. Benefitting from a bath with shower over, w/c, heated towel rail and wash hand basin set within a fitted vanity.
Accessed from the rear garden, the utility room is situated to the rear of the garage and boasts plumbing for a washing machine.
Large double bedroom, with modern fitted wardrobes. Also boasting an ensuite lavatory.
With w/c and wash hand basin set within a fitted storage vanity.
Good-sized double bedroom.
Single bedroom.
To the rear of the property, is an enclosed garden to lawn, bordered by an established hedge row. A two tiered, paved patio area provides an ideal space for outdoor entertaining, or sitting and relaxing. To the front of the property is a further garden to lawn, offering a range of established plants. A tarmac style driveway provides off street parking for at least two cars.
The pin shows the exact address of the property
Energy Efficiency Rating
Very energy efficient - lower running costs
Not energy efficient - higher running costs
Current
N/APotential
N/ACO2 Rating
Very energy efficient - lower running costs
Not energy efficient - higher running costs
