This calculator provides a guide to the amount of residential stamp duty you may pay and does not guarantee this will be the actual cost. This calculation is based on the Stamp Duty Land Tax Rates for residential properties purchased from 23rd September 2022 and second homes from 31st October 2024. For more information on Stamp Duty Land Tax, click here.
3 bedroom Semi Detached House for sale, Burton Crescent, Barnsley, South Yorkshire, S71
Features and Description
- Three-bedroom semi-detached house
- Two spacious double bedrooms
- Bright reception with large windows
- Sought-after Barnsley residential area
- Close to shops and supermarkets
- Near parks and green spaces
- Good choice of nearby schools
- Convenient for Barnsley town centre
- Easy access to rail connections
- Council Tax Band A running costs
This three-bedroom semi-detached house is offered **for sale** in Barnsley and is presented in good condition, making it suitable for first-time buyers, families and investors. The property comprises a separate reception room with large windows, providing a bright and practical living space, a kitchen, three bedrooms and a bathroom. Bedroom one and bedroom two are both doubles, while bedroom three is a single, offering flexible use as a child’s room, guest room or study.
The house benefits from an EPC rating of D and is in Council Tax Band A, which may appeal to those looking to manage ongoing running costs.
Situated in a sought-after residential area of Barnsley, the property is well placed for local amenities, including everyday shops, supermarkets and services. Nearby parks provide green space for walking and recreation, and there is a choice of nearby schools, supporting families with children of different ages.
Public transport links are accessible, with Barnsley town centre and Barnsley railway station within easy reach by local bus services or a short drive. From Barnsley station, regular trains run to Sheffield, Leeds and Huddersfield, with typical journey times of around 25–30 minutes to Sheffield and 35–40 minutes to Leeds, making the area practical for commuting.
The local high street in Barnsley town centre offers further shopping, cafés and restaurants, as well as leisure facilities, all within convenient travelling distance from the property.
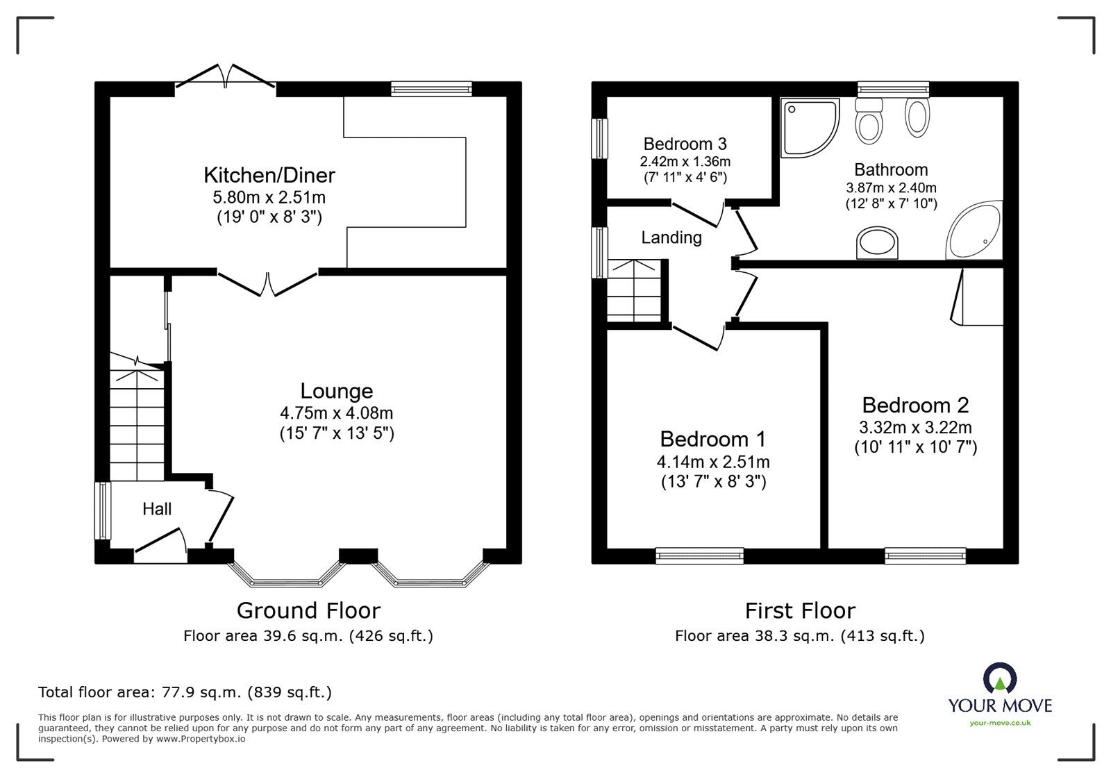
Living Room
4.75mx 4.08m
Kitchen Dining Room
2.51mx 5.80m
Bedroom 1
2.51mx 4.14m
Bedroom 2
3.22mx 3.22m
Bedroom 3
1.36mx 2.42m
IMPORTANT NOTE TO POTENTIAL PURCHASERS:
We endeavour to make our particulars accurate and reliable, however, they do not constitute or form part of an offer or any contract and none is to be relied upon as statements of representation or fact. The services, systems and appliances listed in this specification have not been tested by us and no guarantee as to their operating ability or efficiency is given. All photographs and measurements have been taken as a guide only and are not precise. Floor plans where included are not to scale and accuracy is not guaranteed. If you require clarification or further information on any points, please contact us, especially if you are travelling some distance to view. Fixtures and fittings other than those mentioned are to be agreed with the seller.
Burton Crescent, Barnsley, South Yorkshire, S71
Additional Information
-
Property refBAR250633
-
EPCD
-
TenureFreehold
-
Council TaxA
-
Local authorityBarnsley Metropolitan Borough Council
The pin shows the exact address of the property
Energy Efficiency Rating
Very energy efficient - lower running costs
Not energy efficient - higher running costs
Current
64Potential
85CO2 Rating
Very energy efficient - lower running costs
Not energy efficient - higher running costs
