This calculator provides a guide to the amount of residential stamp duty you may pay and does not guarantee this will be the actual cost. This calculation is based on the Stamp Duty Land Tax Rates for residential properties purchased from 23rd September 2022 and second homes from 31st October 2024. For more information on Stamp Duty Land Tax, click here.
4 bedroom Semi Detached House for sale, Cherry Tree Drive, St. Martins, Shropshire, SY11
Features and Description
- Extended Ideal Family Home
- Four Bedrooms
- Living & Family Rooms
- Refitted Dining Kitchen with Appliances
- EPC Grade C
- Corner Plot Gardens & Driveway
- Utility Room & Cloakroom
Extended Ideal Family Home - 4 Bedrooms - 2 Reception Rooms - Main Bedroom with Ensuite - Dining Kitchen with Built In Appliances - The accommodation comprises: Entrance Hall; Living Room with Flame Gas Fire; Family Room; Dining Kitchen with Built In Oven, Hob, Fridge & Freezer; Utility Room; Cloakroom; First Floor: Main Bedroom with Ensuite; 3 Further Bedrooms; Family Bathroom; Outside; Driveway; Side Garden; Rear Garden. EPC Grade C.
Location
St Martins is a popular village with a good range of local facilities, including Stans supermarket, M&S food court, petrol station, several shops & primary & secondary schooling.
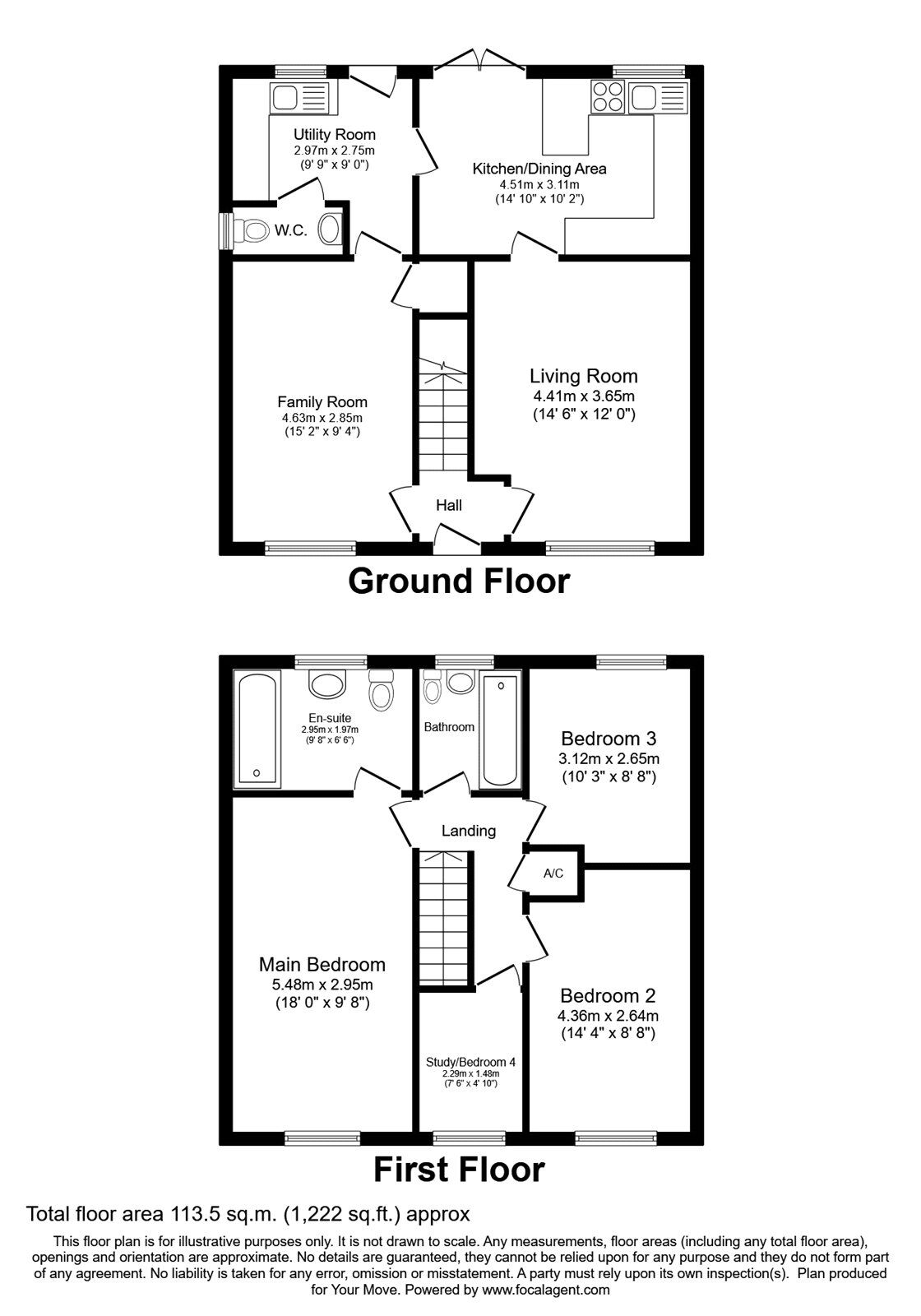
Entrance Hall
Stairs rising to first floor, access to living room & family room.
Living Room
14'8" x 11'11" (4.47m x 3.64m)
Feature fireplace & flame gas fire, wood effect floor, radiator, double glazed window.
Family Room
14'9" x 9'10" (4.49m x 3.00m)
Radiator, double glazed window.
Dining Kitchen
15'2" x 9'4" (4.63m x 2.84m)
An open plan room, refitted in a range of base & wall units, comprising sink unit with mixer taps, built in appliances including an oven, hob, extractor over, fridge& freezer, radiator, double glazed French doors leading into the rear garden.
Utility Room
9'8" x 5'5" (2.95m x 1.65m)
Plumbing for washing machine, sink unit with mixer taps, Worcester gas fired combination boiler, double glazed door to rear garden.
Cloakroom
Comprising WC, wash basin, radiator, double glazed window.
First Floor
Airing cupboard, access to loft space (with loft ladder), radiator.
Bedroom 1
17'11" x 9'9" (5.45m x 2.97m)
Radiator, double glazed window.
En-Suite
Comprising WC, wash basin, bath with mixer taps & shower attachment, towel radiator, double glazed window.
Bedroom 2
13'11" x 8'7" (4.25m x 2.62m)
Built in wardrobes, radiator, double glazed window.
Bedroom 3
10'2" x 8'6" (3.10m x 2.60m)
Radiator, double glazed window.
Bedroom 4
7'7" x 6'6" (2.30m x 1.97m)
Radiator, double glazed window.
Bathroom
Comprising WC, wash basin, bath with shower unit over, towel radiator, double glazed window.
Front Garden
The property is approached via a driveway providing parking for 3-4 cars.
Side Garden
Laid to lawn.
Rear Garden
A sunny rear garden with large decked terrace.
Agents Note
Shropshire Council - Council Tax Band CThe property is Freehold
IMPORTANT NOTE TO POTENTIAL PURCHASERS:
We endeavour to make our particulars accurate and reliable, however, they do not constitute or form part of an offer or any contract and none is to be relied upon as statements of representation or fact. The services, systems and appliances listed in this specification have not been tested by us and no guarantee as to their operating ability or efficiency is given. All photographs and measurements have been taken as a guide only and are not precise. Floor plans where included are not to scale and accuracy is not guaranteed. If you require clarification or further information on any points, please contact us, especially if you are travelling some distance to view. Fixtures and fittings other than those mentioned are to be agreed with the seller.
Cherry Tree Drive, St. Martins, Shropshire, SY11

Additional Information
-
Property refOSW230032
-
EPCC
-
TenureFreehold
-
Council TaxC
-
Local authorityShropshire Council


Feature fireplace & flame gas fire, wood effect floor, radiator, double glazed window.

Radiator, double glazed window.



Plumbing for washing machine, sink unit with mixer taps, Worcester gas fired combination boiler, double glazed door to rear garden.

Comprising WC, wash basin, radiator, double glazed window.

Radiator, double glazed window.

Comprising WC, wash basin, bath with mixer taps & shower attachment, towel radiator, double glazed window.

Built in wardrobes, radiator, double glazed window.

Radiator, double glazed window.

Comprising WC, wash basin, bath with shower unit over, towel radiator, double glazed window.

Laid to lawn.

A sunny rear garden with large decked terrace.


The pin shows the exact address of the property
Energy Efficiency Rating
Very energy efficient - lower running costs
Not energy efficient - higher running costs
Current
72Potential
83CO2 Rating
Very energy efficient - lower running costs
Not energy efficient - higher running costs