This calculator provides a guide to the amount of residential stamp duty you may pay and does not guarantee this will be the actual cost. This calculation is based on the Stamp Duty Land Tax Rates for residential properties purchased from 23rd September 2022 and second homes from 31st October 2024. For more information on Stamp Duty Land Tax, click here.
3 bedroom Semi Detached House for sale, Fish Dam Lane, Barnsley, South Yorkshire, S71
Features and Description
- Popular Monk Bretton location
- Modern open-plan fitted kitchen
- Bright living room, large windows
- Additional conservatory living space
- Three bedrooms, two doubles
- Modern three-piece family bathroom
- Brand new gas combi boiler
- Large gated driveway, off-road parking
- Close to schools and amenities
- Easy access to Leeds and Sheffield
This three-bedroom semi-detached house is **for sale** in the popular residential area of Monk Bretton, Barnsley. Neutrally decorated throughout and with an EPC rating of C and Council Tax Band B, it will appeal to first-time buyers, families and investors alike.
The property offers two reception rooms: a main living room with large windows providing good natural light, and a separate conservatory offering an additional flexible living or dining area. The open-plan modern kitchen features fitted wall and base units and benefits from natural light, creating a practical space for everyday cooking and family life.
There are three bedrooms to the first floor, including a double master bedroom, a further double bedroom and a single bedroom, suitable for a child’s room or home office. The modern bathroom is fitted with a three-piece suite. The home has a brand new combi boiler and is serviced by mains gas and electric. Externally, a large gated driveway provides off-road parking.
Monk Bretton benefits from nearby schools and local amenities, including everyday shops and services in the surrounding area and Barnsley town centre a short drive away. Nearby parks offer green space for walking and recreation.
Public transport links are accessible, with Barnsley railway station within easy reach, providing services to Leeds and Sheffield, with journey times typically around 25–35 minutes. Local bus routes connect Monk Bretton with Barnsley town centre and neighbouring districts, supporting convenient commuting and access to further shopping, leisure and employment opportunities.
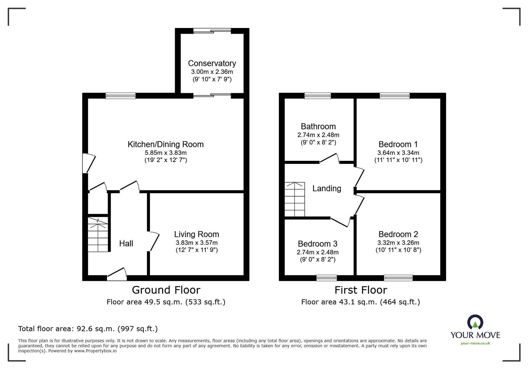
Livingroom
3.57mx3.83
Entrance Hall
1.87mx1.49m
Kitchen
5.85mx3.22m
Conservatory
3mx2.36m
Landing
2.44mx2.32m
Bedroom 1
3.34mx3.64m
Bedroom 2
3.30mx3.26m
Bedroom 3
2.48mx2.74m
Bathroom
2.74mx2.40m
IMPORTANT NOTE TO POTENTIAL PURCHASERS:
We endeavour to make our particulars accurate and reliable, however, they do not constitute or form part of an offer or any contract and none is to be relied upon as statements of representation or fact. The services, systems and appliances listed in this specification have not been tested by us and no guarantee as to their operating ability or efficiency is given. All photographs and measurements have been taken as a guide only and are not precise. Floor plans where included are not to scale and accuracy is not guaranteed. If you require clarification or further information on any points, please contact us, especially if you are travelling some distance to view. Fixtures and fittings other than those mentioned are to be agreed with the seller.
Fish Dam Lane, Barnsley, South Yorkshire, S71
Additional Information
-
Property refBAR250248
-
TenureFreehold
-
Council TaxB
-
Local authorityBarnsley Metropolitan Borough Council
The pin shows the exact address of the property
Energy Efficiency Rating
Very energy efficient - lower running costs
Not energy efficient - higher running costs
Current
N/APotential
N/ACO2 Rating
Very energy efficient - lower running costs
Not energy efficient - higher running costs
