This calculator provides a guide to the amount of residential stamp duty you may pay and does not guarantee this will be the actual cost. This calculation is based on the Stamp Duty Land Tax Rates for residential properties purchased from 23rd September 2022 and second homes from 31st October 2024. For more information on Stamp Duty Land Tax, click here.
3 bedroom Semi Detached House for sale, Heatherfields, Broughton Moor, Cumbria, CA15
Features and Description
Situated on a popular residential street within the village of Broughton Moor, this three bedroom semi-detached home offers an excellent opportunity for first-time buyers or those looking to step onto the property ladder. Ideally positioned, the property enjoys convenient access to the nearby towns of Workington, Maryport, and the historic market town of Cockermouth, all offering a wide range of amenities, schools, and transport links.
The accommodation is light and inviting throughout, featuring a modern fitted kitchen and a stylish family bathroom, still offering scope for a new owner to personalise and make their own mark. The home boasts three well-proportioned bedrooms, providing ample space for growing families, home working, or guest accommodation.
Externally, the property benefits from a beautifully landscaped garden, perfect for relaxing or entertaining.
Combining comfort, convenience, and potential, this charming home is not to be missed. Early viewing is highly recommended.
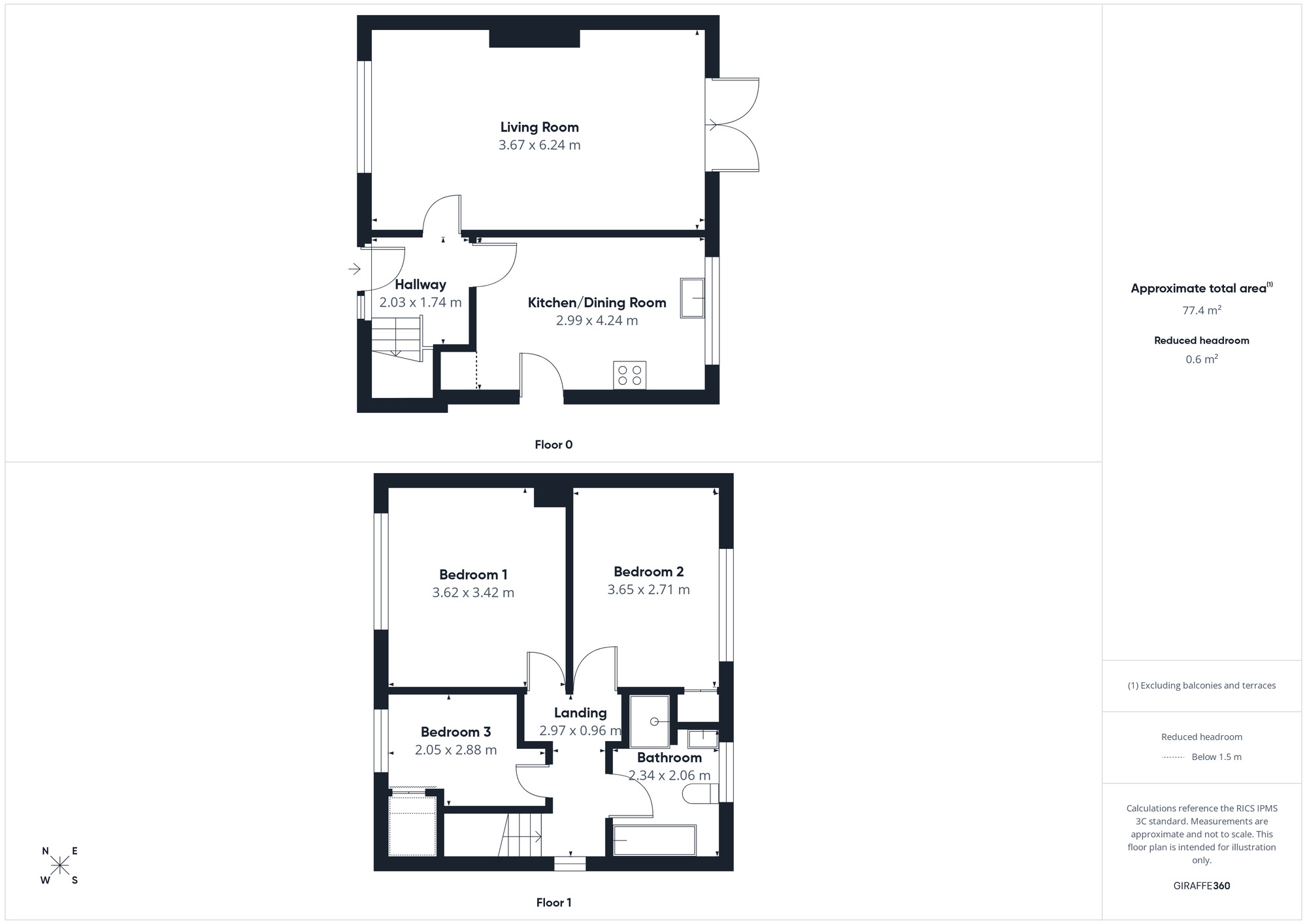
Entrance Hall
Bright and welcoming entrance to the home, with stairs leading to the first floor.
Living Room
20'6" x 12'0" (6.24m x 3.67m)
Spacious living room, with dual aspect windows flooding the room with natural light. A feature, wall mounted, gas fire centres the room, and French doors lead to the rear garden.
Kitchen / Dining Room
13'11" x 9'10" (4.24m x 2.99m)
Offering a range of modern fitted units, with wood effect countertop and complementary tiled backsplash. The kitchen also benefits from an integrated electric oven and countertop mounted gas hob. A breakfast bar provides additional countertop space, and creates an ideal space for informal dining. An external door provides access to the side of the property.
First floor
With Landing.
Bedroom 1
11'11" x 11'3" (3.62m x 3.42m)
Spacious double bedroom.
Bedroom 2
11'12" x 8'11" (3.65m x 2.71m)
Good-sized double bedroom, with integral cupboard which provides convenient storage space and houses the boiler.
Bedroom 3
9'5" x 6'9" (2.88m x 2.05m)
Single bedroom, with generous over stairs storage cupboard.
Bathroom
7'8" x 6'9" (2.34m x 2.06m)
Modern family bathroom, with half tile, feature panelling and recessed lighting. Benefitting from a bath, separate shower cubicle, w/c and wash hand basin set within a fitted vanity.
Outside
To the rear of the property, is a good-sized, enclosed garden laid to lawn. A spacious patio area, with feature paving, provides an ideal space for outdoor entertaining, with a gate providing external rear access. To the front of the property, is a low maintenance gravelled garden, with patio style block paving. With correct authority to drop the kerb, the front garden would make ideal off street parking for two cars.
Outbuilding
Located to the rear of the property, is the block built outbuilding, ideal for storage.
Agents Notes
The property benefits from gas heating and double glazing. Parking for the property is on street.
IMPORTANT NOTE TO POTENTIAL PURCHASERS:
We endeavour to make our particulars accurate and reliable, however, they do not constitute or form part of an offer or any contract and none is to be relied upon as statements of representation or fact. The services, systems and appliances listed in this specification have not been tested by us and no guarantee as to their operating ability or efficiency is given. All photographs and measurements have been taken as a guide only and are not precise. Floor plans where included are not to scale and accuracy is not guaranteed. If you require clarification or further information on any points, please contact us, especially if you are travelling some distance to view. Fixtures and fittings other than those mentioned are to be agreed with the seller.
Agents are required by law to conduct Anti-Money Laundering checks on all buyers. Your Move Carlisle, Whitehaven and Wigton charge £30 including VAT per buyer. The charge covers the cost of obtaining and retaining relevant data from a third party. This fee is payable in advance prior to issuing a memorandum of sale and before the property can be sale agreed.
Heatherfields, Broughton Moor, Cumbria, CA15
Additional Information
-
Property refWHV220071
-
EPCD
-
TenureFreehold
-
Council TaxA
-
Local authorityCumberland Council
Similar properties for sale by Your Move Whitehaven
Bright and welcoming entrance to the home, with stairs leading to the first floor.
Spacious living room, with dual aspect windows flooding the room with natural light. A feature, wall mounted, gas fire centres the room, and French doors lead to the rear garden.
Offering a range of modern fitted units, with wood effect countertop and complementary tiled backsplash. The kitchen also benefits from an integrated electric oven and countertop mounted gas hob. A breakfast bar provides additional countertop space, and creates an ideal space for informal dining. An external door provides access to the side of the property.
Spacious double bedroom.
Good-sized double bedroom, with integral cupboard which provides convenient storage space and houses the boiler.
Single bedroom, with generous over stairs storage cupboard.
Modern family bathroom, with half tile, feature panelling and recessed lighting. Benefitting from a bath, separate shower cubicle, w/c and wash hand basin set within a fitted vanity.
To the rear of the property, is a good-sized, enclosed garden laid to lawn. A spacious patio area, with feature paving, provides an ideal space for outdoor entertaining, with a gate providing external rear access. To the front of the property, is a low maintenance gravelled garden, with patio style block paving. With correct authority to drop the kerb, the front garden would make ideal off street parking for two cars.
The pin shows the exact address of the property
Energy Efficiency Rating
Very energy efficient - lower running costs
Not energy efficient - higher running costs
Current
60Potential
82CO2 Rating
Very energy efficient - lower running costs
Not energy efficient - higher running costs
