This calculator provides a guide to the amount of residential stamp duty you may pay and does not guarantee this will be the actual cost. This calculation is based on the Stamp Duty Land Tax Rates for residential properties purchased from 23rd September 2022 and second homes from 31st October 2024. For more information on Stamp Duty Land Tax, click here.
3 bedroom Semi Detached House for sale, Hexham Road, Newcastle upon Tyne, Tyne and Wear, NE15
Features and Description
- Three Bedroom Semi Detached House
- NO ONWARD CHAIN
- Beautifully finished throughout
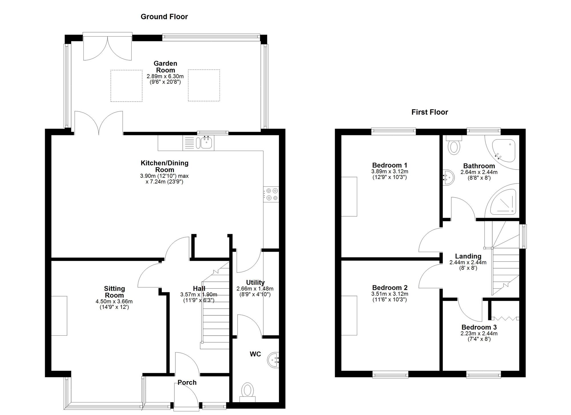
- Floor Area - 115 sq.m / 1,237 sq.ft
- Council Tax Band - C
- EPC Rating - C
Positioned within a sought-after residential area of Throckley, this attractive three bedroom semi-detached home offers generous and well-balanced accommodation, ideally suited to family living.
Well placed for local amenities, schools and transport links, this well-presented home combines modern living with a popular village location. Early viewing is highly recommended to fully appreciate the space, layout and outlook on offer.
The property is approached via a spacious driveway providing ample off-street parking and leads into a welcoming entrance hall. To the front of the property is a comfortable and well-proportioned sitting room, providing a separate and cosy reception space ideal for relaxing. To the rear, the home opens into an impressive open-plan kitchen, dining and living area, finished to a modern standard with a range of fitted units, integrated appliances and contemporary flooring. French doors open into the lovely garden room which in turn lead onto the rear garden, allowing plenty of natural light and creating a seamless connection between indoor and outdoor living.
Also located on the ground floor is a useful utility room offering additional storage and appliance space, along with a convenient downstairs WC.
To the first floor, there are three good-sized bedrooms, all offering flexibility for family members, guests or home working. The accommodation is completed by a modern family bathroom, fitted with a stylish suite including a corner bath and separate shower enclosure.
Externally, the property benefits from a generous rear garden with patio seating area, mature borders and lawn, enjoying a good degree of privacy and elevated open views over the surrounding area. To the front, the driveway provides practical off-street parking.
Hexham Road is situated within Throckley village. Throckley is located on the edge of the Tyne Valley, but Newcastle is close at hand along the nearby A69. The village provides an excellent array of local services, including primary school, shops and pubs, including a Sainsburys store. The renowned hotels of Close House and Matfen Hall are also nearby.
We understand the property is freehold.
IMPORTANT NOTE TO POTENTIAL PURCHASERS:
We endeavour to make our particulars accurate and reliable, however, they do not constitute or form part of an offer or any contract and none is to be relied upon as statements of representation or fact. The services, systems and appliances listed in this specification have not been tested by us and no guarantee as to their operating ability or efficiency is given. All photographs and measurements have been taken as a guide only and are not precise. Floor plans where included are not to scale and accuracy is not guaranteed. If you require clarification or further information on any points, please contact us, especially if you are travelling some distance to view. Fixtures and fittings other than those mentioned are to be agreed with the seller.
Hexham Road, Newcastle upon Tyne, Tyne and Wear, NE15
Additional Information
-
Property refQWD250797
-
EPCC
-
TenureFreehold
-
Council TaxC
-
Local authorityNewcastle City Council
Similar properties for sale by Your Move West Denton
The pin shows the exact address of the property
Energy Efficiency Rating
Very energy efficient - lower running costs
Not energy efficient - higher running costs
Current
72Potential
76CO2 Rating
Very energy efficient - lower running costs
Not energy efficient - higher running costs
