This calculator provides a guide to the amount of residential stamp duty you may pay and does not guarantee this will be the actual cost. This calculation is based on the Stamp Duty Land Tax Rates for residential properties purchased from 23rd September 2022 and second homes from 31st October 2024. For more information on Stamp Duty Land Tax, click here.
3 bedroom Semi Detached House for sale, Logan Road, Newcastle upon Tyne, Tyne and Wear, NE6
Features and Description
- Three Bedroom Semi Detached House
- Immaculate Through Out
- Extended
- Approx. SQ M 110
- Newcastle City Council Tax Band C
- EPC Grade C
Located in the sought-after neighbourhood, this charming semi-detached house offers a perfect blend of comfort and style. Boasting three bedrooms, this bright and spacious property has been meticulously maintained as well as extended and is ideal for families looking for a stylish home. The property features a beautiful garden, perfect for relaxing or entertaining, as well as off-street parking for convenience. With excellent transport links nearby and local amenities within easy reach, this property offers the perfect balance of tranquillity and convenience. Don't miss the opportunity to make this delightful house your new home. Contact us today to arrange a viewing and experience the warmth and charm this property has to offer.
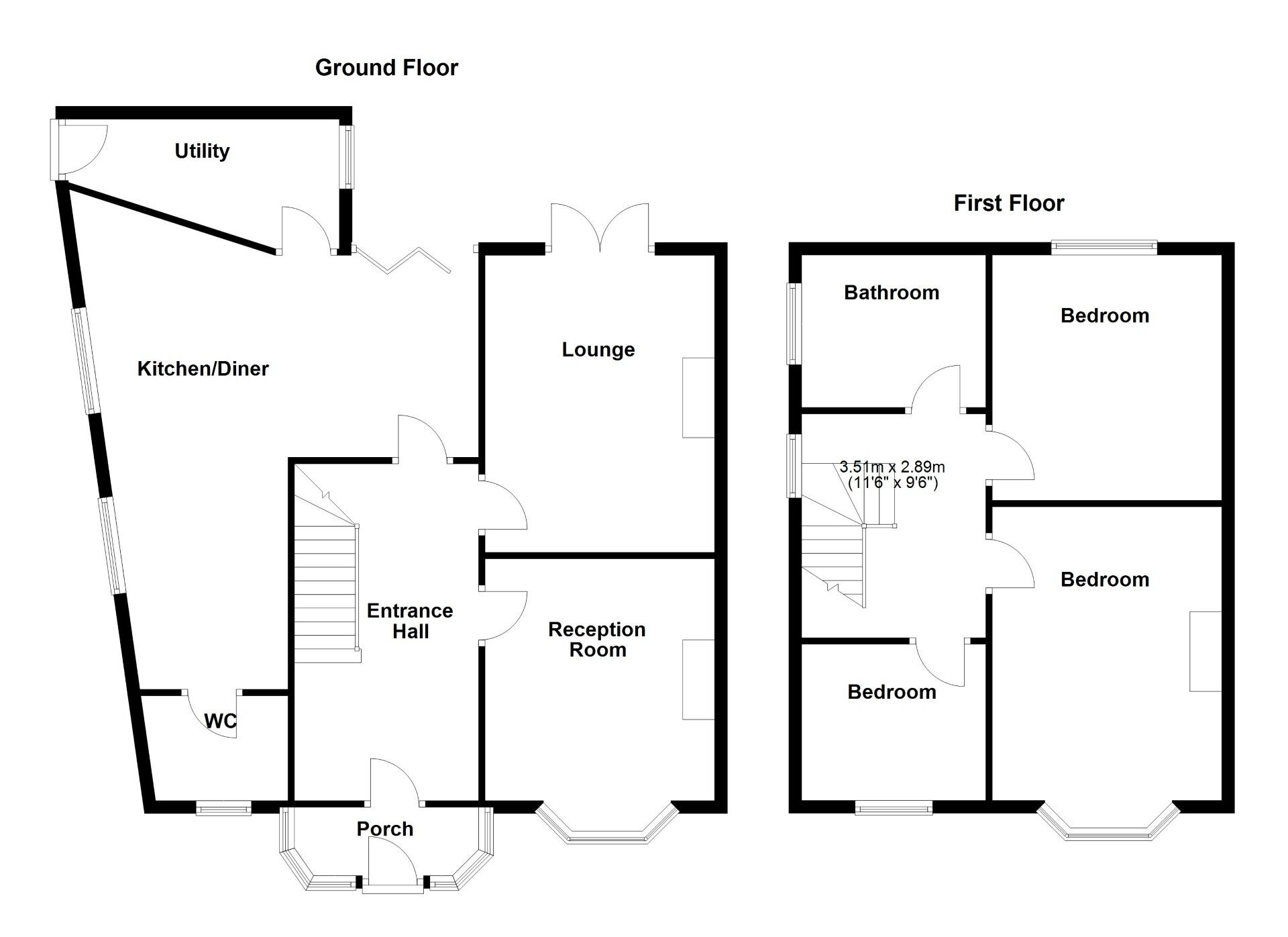
To the ground floor this property comprises, entrance porch, entrance hallway with stairs to first floor landing, reception room with feature fireplace and bay window, lounge with French doors leading onto the garden and an open plan kitchen/diner/snug with bi-folding doors leading onto the garden. This room also feature fitted floor and wall units with a range of integrated appliances to include fridge/freezer, dishwasher, electric hob/oven, and wine cooler as well as a large dining table that converts into a pool table. Additionally there is a WC/Cloakroom with WC and hand wash basin and a utility room.
To the first floor there are two double bedrooms with the master benefitting bay window and a third single bedroom as well as a family bathroom with walk in shower separate bath, WC and hand wash basin.
Externally to the side there is a driveway for off street parking and a well maintained private garden to the rear with perimeter fencing.
Freehold
Newcastle City Council Tax Band C
EPC Grade C
Kitchen / Diner
21'2" x 23'5" (6.44m x 7.14m)
Utility Room
15'5" x 6'7" (4.69m x 2.00m)
WC / Cloakroom
5'4" x 4'6" (1.62m x 1.38m)
Lounge
12'0" x 15'4" (3.66m x 4.67m)
Reception Room
12'6" x 11'2" (3.81m x 3.41m)
Master Bedroom
10'12" x 11'12" (3.35m x 3.65m)
Bedroom 2
11'12" x 11'0" (3.65m x 3.36m)
Bedroom 3
8'8" x 8'0" (2.63m x 2.45m)
Bathroom
8'1" x 7'10" (2.46m x 2.39m)
IMPORTANT NOTE TO POTENTIAL PURCHASERS:
We endeavour to make our particulars accurate and reliable, however, they do not constitute or form part of an offer or any contract and none is to be relied upon as statements of representation or fact. The services, systems and appliances listed in this specification have not been tested by us and no guarantee as to their operating ability or efficiency is given. All photographs and measurements have been taken as a guide only and are not precise. Floor plans where included are not to scale and accuracy is not guaranteed. If you require clarification or further information on any points, please contact us, especially if you are travelling some distance to view. Fixtures and fittings other than those mentioned are to be agreed with the seller.
Logan Road, Newcastle upon Tyne, Tyne and Wear, NE6
Additional Information
-
Property refWSD260117
-
EPCC
-
TenureFreehold
-
Council TaxC
-
Local authorityNewcastle City Council
The pin shows the exact address of the property
Energy Efficiency Rating
Very energy efficient - lower running costs
Not energy efficient - higher running costs
Current
69Potential
75CO2 Rating
Very energy efficient - lower running costs
Not energy efficient - higher running costs
